アプリで簡単 物件探し 通知 共有 アプリならではの機能を使ってみる
新築一戸建て

神奈川県大和市南林間7丁目 南林間駅 新築一戸建て・分譲住宅

情報提供元
LIFULL HOME'S
神奈川県大和市南林間7丁目 南林間駅 新築一戸建て・分譲住宅
価格 4780万円
交通
所在地 神奈川県大和市南林間7丁目周辺地図
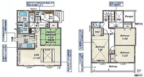
間取り 4LDK
建物面積 102.87m2 土地面積 131.06m2(実測)
築年月 2026年1月 築年数 新築
おすすめポイント
南林間まで平坦で行ける場所にあり商業施設も近くにたくさんございますので生活しやすい環境です♪間取りも広く収納もたくさん設けてあるのでお部屋も広々利用できそうです♪是非実際の現地をご確認くださいませ♪
駐車場2台分・長期優良住宅
お問い合わせ先
朝日土地建物株式会社 町田本社営業6課
物件を見たい、物件や住環境の詳しい情報やローン相談など、
お問い合わせ先
朝日土地建物株式会社 町田本社営業6課

詳細情報

価格 4780万円
所在地 神奈川県大和市南林間7丁目周辺地図
交通
  • 小田急電鉄江ノ島線 南林間駅 徒歩16分乗換案内
  • 小田急電鉄江ノ島線 鶴間駅 徒歩23分乗換案内
間取り 4LDK(洋 7・6・5.3・5) 築年月(築年数) 2026年1月新築
建物面積 102.87m2 建物構造・規模 木造2階建
土地面積 131.06m2(実測) 土地権利 所有権
私道面積 借地期間・地代
接道状況 南東4m公道 一方道路
セットバック 駐車場 空有 (2台) 無料
用途地域 1種住居 都市計画 市街化区域
建ぺい率/容積率 60%/160% 現況 未完成
地目 宅地 引渡可能時期 相談
情報提供元 LIFULL HOME'S [1369350003835] 情報公開日
情報更新日 次回更新予定日 2025年11月24日

設備など

1種低層地域 - 即入居可 - 売主・代理 -
駐車2台以上 平屋 - 本下水
都市ガス カウンターキッチン 床暖房 -
ウォークインクローゼット - バリアフリー -
設備 上水道・都市ガス・本下水・シャワー・システムキッチン・追焚機能・シャンプードレッサ・床下収納・フローリング・モニタ付インターホン・温水洗浄便座・カウンターキッチン・浴室乾燥機・シューズインクローク・オートバス
リフォーム履歴 -
リノベーション履歴 -
備考 【物件周辺の生活情報】
・学校
大和市立南林間小学校(552m)、大和市立南林間中学校(629m)
・買い物
スーパー(400m)、コンビニ(120m)、商店街(1,959m)
・その他施設
総合病院(475m)、公園(256m)
システムキッチン カウンターキッチン 浄水器 シャワー フルオートバス シャワー付き洗面化粧台 温水洗浄便座 トイレ2ヶ所 追焚き給湯 LDK15帖以上 フローリング 全居室フローリング 火災警報器(報知機)  浴室に窓 浴室乾燥機 床下収納 全居室収納スペース パントリー バルコニー ディンプルキー ペアガラス シャッター雨戸 ピッキング対策付ドア TVインターホン 外壁サイディング 長期優良住宅 24時間換気システム バス1坪以上 駐車場2台分(車種による) シックハウス対策 耐震構造 急行停車駅 南東向き道路 平坦地 住宅性能評価 シューズクローク   【設備・特記事項備考】耐震構造・全居室収納
建築確認:有/NO.第07SHC119934号
国土法届出:不要
販売戸数:1戸
述べ床面積:102.87m2
法令等制限:宅地造成工事規制区域 日影制限有 準防火地域 景観法  
特記事項 駐車場2台分・長期優良住宅

省エネ性能

エネルギー消費性能 -
断熱性能 -
目安光熱費 -

神奈川県大和市南林間7丁目 周辺地図情報

地図
※地図上に表示される物件の位置は付近住所に所在することを表すものであり、実際の物件所在地とは異なる場合がございます。
   正確な物件所在地は、取扱い不動産会社にお問い合わせください。
物件を見たい、物件や住環境の詳しい情報やローン相談など、
お問い合わせ先
朝日土地建物株式会社 町田本社営業6課

不動産会社情報

お問い合わせ先 商号:朝日土地建物株式会社 町田本社営業6課
免許番号:国土交通大臣(09)第003744号
所在地:東京都町田市原町田6丁目3番20号 TKビル町田ビル1F
取引態様:媒介
管理コード:3835
所属協会など:(公社)首都圏不動産公正取引協議会、(公社)東京都宅地建物取引業協会、(公社)神奈川県宅地建物取引業協会、(公社)埼玉県宅地建物取引業協会
共有する
QRコード

お電話でのお問い合わせ

電話をかける(携帯・PHS可)
お問い合わせダイヤル
通話無料0037-634-57340
営業時間 09:30~20:00
音声案内に従って数字を入力
お問い合わせ番号
94284-2971
不動産会社につながります
不動産会社のスタッフと
直接電話で話せます。
※不動産会社がお電話に出られなかった場合、株式会社LIFULLは電話会社が提供するサービスを介してお客様の発信者番号を受領後、折り返し専用の電話番号を発番してお問合せの不動産会社に通知します(お客様の発信者番号がお問合せの不動産会社に通知されることはございません)
※光IP電話、及びIP電話からはご利用になれません
※0037で始まる電話番号に携帯電話からお問合せいただいた方には、ショートメッセージ(SMS)によるお問合せ完了通知をお届けする場合があります
物件を見たい、物件や住環境の詳しい情報やローン相談など、
お問い合わせ先
朝日土地建物株式会社 町田本社営業6課

大和市の暮らしデータ

人口などの統計情報

世帯数 110397世帯
人口総数 245038人
転入者数 12607人
転入率(人口1000人当たり)
51.45人
転出者数 11120人
転出率(人口1000人当たり)
45.38人
土地平均価格
住宅地
206385円/m2
商業地
397600円/m2

結婚・育児の助成金

子育て関連の独自の取り組み 屋内こども広場(大型遊具や知育玩具を設置した屋内の遊び場。理由を問わない一時預かりや保育士による育児相談も実施)。送迎ステーション(幼稚園や認定こども園の教育時間の前後に預かり保育を実施し、保育所と同様の保育時間を確保する事業)。
出産祝い あり
公立保育所数 4所(うち0歳児保育を実施している保育所:4所)
私立保育所数 54所(うち0歳児保育を実施している保育所:54所)
保育所入所待機児童数 0人
認定こども園数 4園 預かり保育実施園数 公立:- 私立:13園
学校給食 【小学校】完全給食【中学校】完全給食
公立中学校の学校選択制 一部実施(一部の学区または地域において、通学区域の弾力的運用を実施)
子ども・学生等医療費助成<通院>対象年齢 18歳3月末まで 子ども・学生等医療費助成<入院>対象年齢 18歳3月末まで

大和市の治安・ごみ収集情報

公共料金・インフラ

ガス料金(22m3使用した場合の月額) 東京瓦斯株式会社(東京地区等)3926円
水道料金(口径20mmで20m3の月額) 神奈川県営水道2509円
下水道料金(20m3を使用した場合の月額) 大和市2292円
下水道普及率 95.5%

安心・安全

建物火災出火件数 29件
人口10000人当たり
1.21件
刑法犯認知件数 1787件
人口1000人当たり
7.47件
ハザード・防災マップ あり

医療

一般病院総数 8ヶ所
一般診療所総数 174ヶ所
小児科医師数 33人
小児人口10000人当たり
11.21人
産婦人科医師数 22人
15~49歳女性人口1万人当たり
4.37人
介護保険料基準額(月額) 6485円

ごみ

家庭ごみ収集(可燃ごみ) 有料
備考
指定ごみ袋有料。
家庭ごみの分別方式 3分別24種〔可燃ごみ(可燃ごみ、紙おむつ類、剪定枝、枯葉・雑草) 不燃ごみ(不燃ごみ、使い捨てライター、電池類、蛍光灯、水銀含有物、電球) 資源(新聞・折込チラシ、段ボール、雑誌・本・その他の紙、布類、紙パック、紙製容器包装、空き缶・金物類[アルミ、スチール]、空きびん[生きびん、透明びん、色付きびん]、ペットボトル、白色トレイ、容器包装プラ)〕
家庭ごみの戸別収集 実施
粗大ごみ収集 あり
備考
有料。戸別収集。事前申込制。
生ごみ処理機助成金制度 あり
上限金額
35000円
上限比率
75.0%

大和市の住まいの給付金

新築購入

利子補給制度 なし
補助/助成金制度 なし
暮らしデータ提供元:生活ガイド.com
※行政機関により公表していない地域及びデータがございます。東京23区以外の政令指定都市は、市全体のデータとして表示しています。
※提供データには細心の注意を払っておりますが、調査後に変更がある場合があります。 最新の情報につきましては各市区役所までお問い合わせいただくか、自治体HPなどをご確認ください。
OCN×ドコモ光新規お申込みで合計最大137,280円相当おトク!特典の内訳・適用条件など詳細はこちら

大和市内の各駅の住みやすさ

住宅ローンの返済額一覧

物件価格 4780万円に対して、年率 で、頭金 の場合
↓ボーナス 35年間 30年間 25年間 20年間 15年間 10年間
0万円 111,102円/月 128,053円/月 151,798円/月 187,435円/月 246,855円/月 365,731円/月
5万円 102,017円/月 119,077円/月 142,931円/月 178,677円/月 238,203円/月 357,186円/月
10万円 92,931円/月 110,101円/月 134,065円/月 169,918円/月 229,552円/月 348,641円/月
15万円 83,846円/月 101,126円/月 125,198円/月 161,159円/月 220,900円/月 340,096円/月
20万円 74,760円/月 92,150円/月 116,331円/月 152,400円/月 212,249円/月 331,551円/月
25万円 65,675円/月 83,174円/月 107,464円/月 143,642円/月 203,598円/月 323,006円/月
30万円 56,589円/月 74,198円/月 98,598円/月 134,883円/月 194,946円/月 314,461円/月
支払い利息合計 3,884,610円~ 3,317,440円~ 2,755,100円~ 2,196,880円~ 1,643,230円~ 1,094,060円~
※元利均等返済方式で試算しています。 「円」の単位以下の端数金額は「切り捨て」として計算しております。
※金利は、固定金利として計算しております。
※上記の住宅ローン返済額一覧は、あくまで試算であり、将来の金利動向により、実際のご返済額とは異なります。
※ボーナス支払総額が総支払額の50%を超えている場合、上記の表では「ローン不可」となります。
※住宅ローン返済額一覧の数値は、住宅ローンのお申し込みやご融資をお約束するものではございません。
物件を見たい、物件や住環境の詳しい情報やローン相談など、
お問い合わせ先
朝日土地建物株式会社 町田本社営業6課

掲載情報の著作権は提供元企業等に帰属します。
Copyright:(C) 2025 LIFULL Co.,Ltd.
アプリで簡単 物件探し 大手不動産サイトの情報から一括検!プッシュ通知で物件を見逃さない
App Storeからダウンロード Google Playで手に入れよう QRコード