アプリで簡単 物件探し 通知 共有 アプリならではの機能を使ってみる
新築一戸建て

神奈川県藤沢市善行6丁目 善行駅 新築一戸建て・分譲住宅

情報提供元
LIFULL HOME'S
神奈川県藤沢市善行6丁目 善行駅 新築一戸建て・分譲住宅
価格 4999万円
交通
所在地 神奈川県藤沢市善行6丁目周辺地図
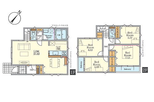
間取り 4LDK
建物面積 105.16m2 土地面積 130.16m2(公簿)
築年月 2025年11月 築年数 新築
おすすめポイント
小田急「善行」徒歩9分、全3棟の新築分譲。ZEH水準の省エネ住宅で家計に優しい暮らし。全棟4LDK+駐車2台、収納豊富で家族の空間もゆとり。耐震等級3取得で安心です。
お問い合わせ先
株式会社フォーシーズンズランド 藤沢店
物件を見たい、物件や住環境の詳しい情報やローン相談など、
お問い合わせ先
株式会社フォーシーズンズランド 藤沢店

詳細情報

価格 4999万円
所在地 神奈川県藤沢市善行6丁目周辺地図
交通
  • 小田急電鉄江ノ島線 善行駅 徒歩9分乗換案内
間取り 4LDK(LDK 21 洋 7.5・6・5.2・5) 築年月(築年数) 2025年11月新築
建物面積 105.16m2 建物構造・規模 木造2階建
土地面積 130.16m2(公簿) 土地権利 所有権
私道面積 借地期間・地代
接道状況 南西3.3m公道接面2.8m 一方道路
セットバック 8.99㎡ 駐車場 空有 無料
用途地域 1種低層 都市計画 市街化区域
建ぺい率/容積率 50%/80% 現況 未完成
地目 宅地 引渡可能時期 相談
情報提供元 LIFULL HOME'S [1365070042288] 情報公開日
情報更新日 次回更新予定日 2025年11月27日

設備など

1種低層地域 即入居可 - 売主・代理 -
駐車2台以上 - 平屋 - 本下水
都市ガス カウンターキッチン 床暖房 -
ウォークインクローゼット - バリアフリー -
設備 上水道・都市ガス・本下水・バス・トイレ別・コンロ2口以上・システムキッチン・給湯・追焚機能・シャンプードレッサ・床下収納・バルコニー・フローリング・インターネット対応・モニタ付インターホン・温水洗浄便座・カウンターキッチン・浴室乾燥機・洗面所独立・食器洗浄乾燥機・シューズボックス・照明器具
リフォーム履歴 -
リノベーション履歴 -
備考  【設備・特記事項備考】全居室収納・フラット35・S適合証明書・BELS/省エネ基準適合認定建築物
建築確認:有/NO.第25UDI1W建05239号
国土法届出:不要
販売戸数:1戸/南東
法令等制限:法第22条区域 宅地造成等工事規制区域 下水道処理区域 
特記事項

省エネ性能

エネルギー消費性能 -
断熱性能 -
目安光熱費 -

神奈川県藤沢市善行6丁目 周辺地図情報

地図
※地図上に表示される物件の位置は付近住所に所在することを表すものであり、実際の物件所在地とは異なる場合がございます。
   正確な物件所在地は、取扱い不動産会社にお問い合わせください。
物件を見たい、物件や住環境の詳しい情報やローン相談など、
お問い合わせ先
株式会社フォーシーズンズランド 藤沢店

不動産会社情報

お問い合わせ先 商号:株式会社フォーシーズンズランド 藤沢店
免許番号:神奈川県知事(5)第024919号
所在地:神奈川県藤沢市藤沢539
取引態様:媒介
管理コード:42288
所属協会など:(公社)首都圏不動産公正取引協議会、(公社)神奈川県宅地建物取引業協会
共有する
QRコード

お電話でのお問い合わせ

電話をかける(携帯・PHS可)
お問い合わせダイヤル
通話無料0037-634-44581
営業時間 09:30~20:00 (定休日:毎週水曜日 第一火曜日 第三火曜日 年末年始)
音声案内に従って数字を入力
お問い合わせ番号
62421-2975
不動産会社につながります
不動産会社のスタッフと
直接電話で話せます。
※不動産会社がお電話に出られなかった場合、株式会社LIFULLは電話会社が提供するサービスを介してお客様の発信者番号を受領後、折り返し専用の電話番号を発番してお問合せの不動産会社に通知します(お客様の発信者番号がお問合せの不動産会社に通知されることはございません)
※光IP電話、及びIP電話からはご利用になれません
※0037で始まる電話番号に携帯電話からお問合せいただいた方には、ショートメッセージ(SMS)によるお問合せ完了通知をお届けする場合があります
物件を見たい、物件や住環境の詳しい情報やローン相談など、
お問い合わせ先
株式会社フォーシーズンズランド 藤沢店

藤沢市の暮らしデータ

人口などの統計情報

世帯数 192960世帯
人口総数 445172人
転入者数 19958人
転入率(人口1000人当たり)
44.83人
転出者数 18277人
転出率(人口1000人当たり)
41.06人
土地平均価格
住宅地
230734円/m2
商業地
420444円/m2

結婚・育児の助成金

子育て関連の独自の取り組み 神奈川県が運用しているスマートフォンの子育て情報アプリを活用した「子育てアプリふじさわ」により子育て情報を配信している。
出産祝い あり
公立保育所数 14所(うち0歳児保育を実施している保育所:12所)
私立保育所数 75所(うち0歳児保育を実施している保育所:75所)
保育所入所待機児童数 11人
認定こども園数 2園 預かり保育実施園数 公立:- 私立:29園
学校給食 【小学校】完全給食【中学校】家庭弁当等との選択制/デリバリー形式[運搬:ランチボックス、内容:完全給食]
公立中学校の学校選択制 一部実施(特定地域選択制)
子ども・学生等医療費助成<通院>対象年齢 18歳3月末まで 子ども・学生等医療費助成<入院>対象年齢 18歳3月末まで

藤沢市の治安・ごみ収集情報

公共料金・インフラ

ガス料金(22m3使用した場合の月額) 東京瓦斯株式会社(東京地区等)3926円
水道料金(口径20mmで20m3の月額) 神奈川県営水道2988円
下水道料金(20m3を使用した場合の月額) 藤沢市2487円
下水道普及率 96.1%

安心・安全

建物火災出火件数 64件
人口10000人当たり
1.46件
刑法犯認知件数 2101件
人口1000人当たり
4.81件
ハザード・防災マップ あり

医療

一般病院総数 14ヶ所
一般診療所総数 437ヶ所
小児科医師数 76人
小児人口10000人当たり
13.47人
産婦人科医師数 39人
15~49歳女性人口1万人当たり
4.41人
介護保険料基準額(月額) 6300円

ごみ

家庭ごみ収集(可燃ごみ) 有料
備考
指定ごみ袋有料(可燃・不燃ごみのみ)。
家庭ごみの分別方式 3分別20種〔可燃ごみ 不燃ごみ(蛍光管、ガスボンベ・スプレー、電池類、テープ類、ライター、水銀体温計、加熱式たばこ) 資源(新聞・折込広告、本・雑紙、段ボール、飲料用紙パック、古布類、ビン、カン・鍋類、ペットボトル、廃食用油、プラスチック製容器包装、商品プラスチック、剪定枝)〕
家庭ごみの戸別収集 実施(市全域で実施。集合住宅については敷地内の専用集積所)
粗大ごみ収集 あり
備考
有料。大型ごみ500円/点。特別大型ごみ1,000円/点。
生ごみ処理機助成金制度 あり
上限金額
30000円
上限比率
75.0%

藤沢市の住まいの給付金

新築購入

利子補給制度 なし
補助/助成金制度 なし
暮らしデータ提供元:生活ガイド.com
※行政機関により公表していない地域及びデータがございます。東京23区以外の政令指定都市は、市全体のデータとして表示しています。
※提供データには細心の注意を払っておりますが、調査後に変更がある場合があります。 最新の情報につきましては各市区役所までお問い合わせいただくか、自治体HPなどをご確認ください。
OCN×ドコモ光新規お申込みで合計最大137,280円相当おトク!特典の内訳・適用条件など詳細はこちら

藤沢市内の各駅の住みやすさ

住宅ローンの返済額一覧

物件価格 4999万円に対して、年率 で、頭金 の場合
↓ボーナス 35年間 30年間 25年間 20年間 15年間 10年間
0万円 116,787円/月 134,605円/月 159,566円/月 197,026円/月 259,486円/月 384,445円/月
5万円 107,701円/月 125,629円/月 150,699円/月 188,267円/月 250,835円/月 375,900円/月
10万円 98,616円/月 116,653円/月 141,832円/月 179,509円/月 242,183円/月 367,355円/月
15万円 89,530円/月 107,678円/月 132,965円/月 170,750円/月 233,532円/月 358,810円/月
20万円 80,445円/月 98,702円/月 124,099円/月 161,991円/月 224,880円/月 350,265円/月
25万円 71,360円/月 89,726円/月 115,232円/月 153,233円/月 216,229円/月 341,720円/月
30万円 62,274円/月 80,751円/月 106,365円/月 144,474円/月 207,577円/月 333,174円/月
支払い利息合計 4,082,310円~ 3,486,520円~ 2,895,200円~ 2,308,720円~ 1,726,810円~ 1,149,620円~
※元利均等返済方式で試算しています。 「円」の単位以下の端数金額は「切り捨て」として計算しております。
※金利は、固定金利として計算しております。
※上記の住宅ローン返済額一覧は、あくまで試算であり、将来の金利動向により、実際のご返済額とは異なります。
※ボーナス支払総額が総支払額の50%を超えている場合、上記の表では「ローン不可」となります。
※住宅ローン返済額一覧の数値は、住宅ローンのお申し込みやご融資をお約束するものではございません。
物件を見たい、物件や住環境の詳しい情報やローン相談など、
お問い合わせ先
株式会社フォーシーズンズランド 藤沢店

掲載情報の著作権は提供元企業等に帰属します。
Copyright:(C) 2025 LIFULL Co.,Ltd.
アプリで簡単 物件探し 大手不動産サイトの情報から一括検!プッシュ通知で物件を見逃さない
App Storeからダウンロード Google Playで手に入れよう QRコード