アプリで簡単 物件探し 通知 共有 アプリならではの機能を使ってみる
新築一戸建て

神奈川県川崎市麻生区王禅寺東6丁目 新百合ヶ丘駅 新築一戸建て・分譲住宅

情報提供元
LIFULL HOME'S
神奈川県川崎市麻生区王禅寺東6丁目 新百合ヶ丘駅 新築一戸建て・分譲住宅
価格 5599万円
交通
所在地 神奈川県川崎市麻生区王禅寺東6丁目周辺地図
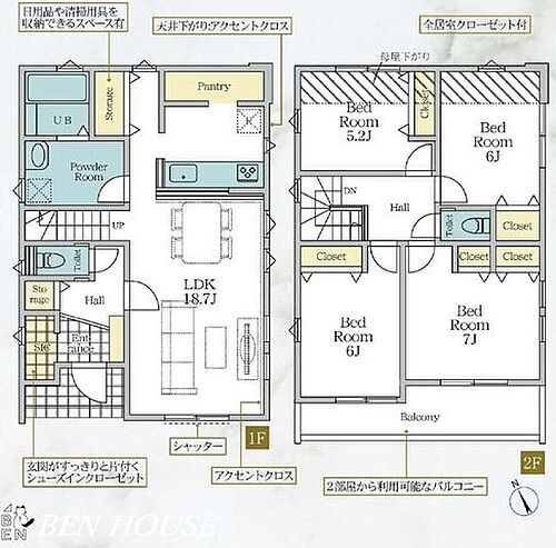
間取り 4LDK
建物面積 108.06m2 土地面積 135.66m2(実測)
築年月 2025年7月 築年数 新築
おすすめポイント
■二部屋からアクセス可能な南向きのバルコニー♪■キッチンにはパントリー、リビング収納、玄関にはシューズボックス、SIC、玄関収納と充実収納完備でどちらもスッキリ片付きます!!■各居室収納完備♪
【オープンハウス情報】
2025年11月03日(月)~2026年11月30日(月)(10:00-21:00)
完成済みで販売中の分譲地。いつでも内覧可能です。充実の仕様・設備は、是非とも現地でお確かめください。ご見学をご希望のお客様、平日・休日問わず ご対応させていただきます。お気軽にご連絡下さい。
駐車場2台分
お問い合わせ先
株式会社ベンハウス 川崎西口支店
物件を見たい、物件や住環境の詳しい情報やローン相談など、
お問い合わせ先
株式会社ベンハウス 川崎西口支店

詳細情報

価格 5599万円
所在地 神奈川県川崎市麻生区王禅寺東6丁目周辺地図
交通
  • 小田急電鉄多摩線 新百合ヶ丘駅 バス18分/「王禅寺口」バス停 停歩4分乗換案内
間取り 4LDK 築年月(築年数) 2025年7月新築
建物面積 108.06m2 建物構造・規模 木造2階建
土地面積 135.66m2(実測) 土地権利 所有権
私道面積 借地期間・地代
接道状況 南西4m公道 一方道路 駐車場 空有 (2台) 無料 物件からの距離0m カースペース
用途地域 1種低層 都市計画 市街化区域
建ぺい率/容積率 50%/80% 現況 空室
地目 宅地 引渡可能時期 即時
情報提供元 LIFULL HOME'S [1019810023817] 情報公開日
情報更新日 次回更新予定日 2025年11月21日

設備など

1種低層地域 即入居可 売主・代理 -
駐車2台以上 平屋 - 本下水
都市ガス カウンターキッチン 床暖房 -
ウォークインクローゼット - バリアフリー -
設備 上水道・都市ガス・本下水・ガスコンロ可・コンロ2口以上・システムキッチン・給湯・追焚機能・シャンプードレッサ・室内洗濯機置き場・バルコニー・フローリング・モニタ付インターホン・温水洗浄便座・カウンターキッチン・浴室乾燥機・洗面所独立・食器洗浄乾燥機・クローゼット・シューズボックス・シューズインクローク・照明器具・オートバス
リフォーム履歴 -
リノベーション履歴 -
備考 【物件周辺の生活情報】
・学校
川崎市立東柿生小学校(330m)、川崎市立柿生中学校(1,870m)
・買い物
スーパー(750m)、コンビニ(450m)、ドラッグストア(340m)
・その他施設
公園(580m)、柿の実幼稚園(800m)
oo250821-7-1 ■パノラマ写真をご覧いただけます■https://vrpanorama.athome.jp/panoramas/_NRVxZL.60/embed?from=at&user_id=00540393■・断熱性能の強化と高効率設備の導入により、快適な住環境を維持しながら省エネルギーな暮らしを実現することのできるZEH水準の省エネ住宅・完成しておりいつでも内覧可能です・是非ご確認ください■■■この物件のおすすめポイント■■■・水回り設備が集約されたプラン・シャッター付きなので防犯対策にもなり大雨・強風から窓ガラスを守ります・姿見付きシューズボックスではお出かけの際に全身チェックできます・全室二面の採光があり明るく通風も良好・洗面室が広く収納やカウンターを置いたりと工夫次第で多目的に利用できます・一坪タイプのバスルームでは足を延ばしてゆったりバスタイム・シャンプードレッサーで洗髪はもちろんお掃除もしやすいです・シャワートイレは各階にあり朝の慌ただしい時間帯もスムーズに準備できます・TVモニター付インターホンで来客を確認してから対応できま… 【駐車場備考】カースペース 【設備・特記事項備考】専用バス・専用トイレ・全居室収納
国土法届出:不要
販売戸数:3戸
述べ床面積:108.06m2/南西
法令等制限:第一種高度地区 法第22条区域 下水道処理区域 宅地造成等工事規制区域 最低敷地面積125平米 外壁後退1m(道路側を除く) 日影規制3-2h/1.5m 協定地とゴミ置場の合意書有
特記事項 駐車場2台分

省エネ性能

エネルギー消費性能 -
断熱性能 -
目安光熱費 -

神奈川県川崎市麻生区王禅寺東6丁目 周辺地図情報

地図
※地図上に表示される物件の位置は付近住所に所在することを表すものであり、実際の物件所在地とは異なる場合がございます。
   正確な物件所在地は、取扱い不動産会社にお問い合わせください。
物件を見たい、物件や住環境の詳しい情報やローン相談など、
お問い合わせ先
株式会社ベンハウス 川崎西口支店

不動産会社情報

お問い合わせ先 商号:株式会社ベンハウス 川崎西口支店
免許番号:国土交通大臣免許(04)第007179号
所在地:神奈川県川崎市幸区大宮町5番地太尾ビル1F
取引態様:媒介
管理コード:23817
所属協会など:(公社)全日本不動産協会
共有する
QRコード

お電話でのお問い合わせ

電話をかける(携帯・PHS可)
お問い合わせダイヤル
通話無料0037-634-07266
営業時間 09:30~21:00 (定休日:年中無休 年末年始)
音声案内に従って数字を入力
お問い合わせ番号
14389-2978
不動産会社につながります
不動産会社のスタッフと
直接電話で話せます。
※不動産会社がお電話に出られなかった場合、株式会社LIFULLは電話会社が提供するサービスを介してお客様の発信者番号を受領後、折り返し専用の電話番号を発番してお問合せの不動産会社に通知します(お客様の発信者番号がお問合せの不動産会社に通知されることはございません)
※光IP電話、及びIP電話からはご利用になれません
※0037で始まる電話番号に携帯電話からお問合せいただいた方には、ショートメッセージ(SMS)によるお問合せ完了通知をお届けする場合があります
物件を見たい、物件や住環境の詳しい情報やローン相談など、
お問い合わせ先
株式会社ベンハウス 川崎西口支店

川崎市麻生区の暮らしデータ

人口などの統計情報

世帯数 745988世帯
人口総数 1529136人
転入者数 105162人
転入率(人口1000人当たり)
68.77人
転出者数 96761人
転出率(人口1000人当たり)
63.28人
土地平均価格
住宅地
302136円/m2
商業地
894684円/m2

結婚・育児の助成金

子育て関連の独自の取り組み (1)産後ケアや妊娠期サポート事業、妊娠・出産SOS電話相談事業等(妊娠・出産包括支援事業として実施)。(2)産前・産後家庭支援ヘルパー派遣事業(妊娠中または産後6ヶ月[多胎の方は1年]までで、母親が体調不良等により育児や家事が困難かつ、日中ほかに育児や家事を行う者がいない家庭に、20回[多胎の方は60回]までヘルパーを派遣し、育児や家事のお手伝いを行う)。
出産祝い なし
公立保育所数 21所(うち0歳児保育を実施している保育所:20所)
私立保育所数 429所(うち0歳児保育を実施している保育所:320所)
保育所入所待機児童数 0人
認定こども園数 24園 預かり保育実施園数 公立:- 私立:56園
学校給食 【小学校】完全給食【中学校】完全給食
公立中学校の学校選択制 未実施
子ども・学生等医療費助成<通院>対象年齢 中学校卒業まで 子ども・学生等医療費助成<入院>対象年齢 中学校卒業まで

川崎市麻生区の治安・ごみ収集情報

公共料金・インフラ

ガス料金(22m3使用した場合の月額) 東京瓦斯株式会社(東京地区等)3926円
水道料金(口径20mmで20m3の月額) 川崎市2321円
下水道料金(20m3を使用した場合の月額) 川崎市2156円
下水道普及率 99.6%

安心・安全

建物火災出火件数 270件
人口10000人当たり
1.76件
刑法犯認知件数 7645件
人口1000人当たり
4.97件
ハザード・防災マップ あり

医療

一般病院総数 33ヶ所
一般診療所総数 1060ヶ所
小児科医師数 310人
小児人口10000人当たり
16.99人
産婦人科医師数 139人
15~49歳女性人口1万人当たり
4.04人
介護保険料基準額(月額) 6591円

ごみ

家庭ごみ収集(可燃ごみ) 無料
備考
許可業者による一時多量ごみの収集制度(有料)を実施。
家庭ごみの分別方式 7分別〔普通ごみ 空きびん 使用済み乾電池 ミックスペーパー プラスチック製容器包装 空き缶・ペットボトル 小物金属〕※プラスチック製容器包装については一部地域(川崎区)でプラスチック資源を実施
家庭ごみの戸別収集 一部実施(ふれあい収集[一部地域のみ実施])
粗大ごみ収集 あり
備考
有料。事前申込制。
生ごみ処理機助成金制度 あり
上限金額
10000円
上限比率
50.0%

川崎市麻生区の住まいの給付金

新築購入

利子補給制度 なし
補助/助成金制度 なし
暮らしデータ提供元:生活ガイド.com
※行政機関により公表していない地域及びデータがございます。東京23区以外の政令指定都市は、市全体のデータとして表示しています。
※提供データには細心の注意を払っておりますが、調査後に変更がある場合があります。 最新の情報につきましては各市区役所までお問い合わせいただくか、自治体HPなどをご確認ください。
OCN×ドコモ光新規お申込みで合計最大137,280円相当おトク!特典の内訳・適用条件など詳細はこちら

川崎市麻生区内の各駅の住みやすさ

住宅ローンの返済額一覧

物件価格 5599万円に対して、年率 で、頭金 の場合
↓ボーナス 35年間 30年間 25年間 20年間 15年間 10年間
0万円 132,362円/月 152,556円/月 180,846円/月 223,302円/月 294,092円/月 435,716円/月
5万円 123,277円/月 143,581円/月 171,979円/月 214,543円/月 285,440円/月 427,171円/月
10万円 114,191円/月 134,605円/月 163,112円/月 205,785円/月 276,789円/月 418,626円/月
15万円 105,106円/月 125,629円/月 154,245円/月 197,026円/月 268,138円/月 410,081円/月
20万円 96,020円/月 116,653円/月 145,379円/月 188,267円/月 259,486円/月 401,536円/月
25万円 86,935円/月 107,678円/月 136,512円/月 179,509円/月 250,835円/月 392,990円/月
30万円 77,849円/月 98,702円/月 127,645円/月 170,750円/月 242,183円/月 384,445円/月
支払い利息合計 4,623,810円~ 3,948,880円~ 3,279,200円~ 2,614,960円~ 1,955,890円~ 1,302,140円~
※元利均等返済方式で試算しています。 「円」の単位以下の端数金額は「切り捨て」として計算しております。
※金利は、固定金利として計算しております。
※上記の住宅ローン返済額一覧は、あくまで試算であり、将来の金利動向により、実際のご返済額とは異なります。
※ボーナス支払総額が総支払額の50%を超えている場合、上記の表では「ローン不可」となります。
※住宅ローン返済額一覧の数値は、住宅ローンのお申し込みやご融資をお約束するものではございません。
物件を見たい、物件や住環境の詳しい情報やローン相談など、
お問い合わせ先
株式会社ベンハウス 川崎西口支店

掲載情報の著作権は提供元企業等に帰属します。
Copyright:(C) 2025 LIFULL Co.,Ltd.
アプリで簡単 物件探し 大手不動産サイトの情報から一括検!プッシュ通知で物件を見逃さない
App Storeからダウンロード Google Playで手に入れよう QRコード