アプリで簡単 物件探し 通知 共有 アプリならではの機能を使ってみる
新築一戸建て

神奈川県横浜市旭区鶴ケ峰本町2丁目 鶴ケ峰駅 新築一戸建て・分譲住宅

情報提供元
LIFULL HOME'S
神奈川県横浜市旭区鶴ケ峰本町2丁目 鶴ケ峰駅 新築一戸建て・分譲住宅
価格 5180万円
交通
所在地 神奈川県横浜市旭区鶴ケ峰本町2丁目周辺地図
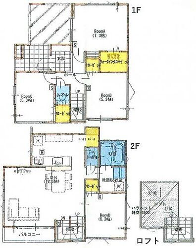
間取り 4LDK
建物面積 106.22m2 土地面積 103.41m2(実測)
築年月 2025年9月 築年数 新築
おすすめポイント
お客さまに心から「住んでよかった」と実感して頂けるよう 良質な住まいを幅広く皆さまにお届けしたい ご予約「0120-12-4362」お電話ください ◆住まい安心のおとりつぎ◆朝日土地建物二俣川店
お問い合わせ先
朝日土地建物株式会社 二俣川支店 営業2課
物件を見たい、物件や住環境の詳しい情報やローン相談など、
お問い合わせ先
朝日土地建物株式会社 二俣川支店 営業2課

詳細情報

価格 5180万円
所在地 神奈川県横浜市旭区鶴ケ峰本町2丁目周辺地図
交通
間取り 4LDK(洋 5.3×2・7.3・5.3 LDK 19.6) 築年月(築年数) 2025年9月新築
建物面積 106.22m2 建物構造・規模 木造2階建
土地面積 103.41m2(実測) 土地権利 所有権
私道面積 借地期間・地代
接道状況 南西4.4m公道 一方道路
セットバック 駐車場 空有 (1台) 無料
用途地域 1種低層 都市計画 市街化区域
建ぺい率/容積率 60%/100% 現況
地目 宅地 引渡可能時期 即時
情報提供元 LIFULL HOME'S [1418240005525] 情報公開日
情報更新日 次回更新予定日 2025年12月21日

設備など

1種低層地域 即入居可 売主・代理 -
駐車2台以上 - 平屋 - 本下水
都市ガス カウンターキッチン - 床暖房 -
ウォークインクローゼット バリアフリー -
設備 上水道・都市ガス・本下水・バス・トイレ別・シャワー・システムキッチン・追焚機能・シャンプードレッサ・ウォークインクローゼット・ロフト・フローリング・モニタ付インターホン・温水洗浄便座・浴室乾燥機・洗面所独立・食器洗浄乾燥機・クローゼット
リフォーム履歴 -
リノベーション履歴 -
備考 【物件周辺の生活情報】
・学校
横浜市立今宿小学校(1,100m)、横浜市立鶴ケ峯中学校(280m)
・買い物
スーパー(693m)、コンビニ(565m)
・その他施設
総合病院(696m)、公園(524m)
朝日土地建物 二俣川支店は二俣川駅北口から徒歩1分の立地!青い看板が目印です!開放的な接客スペースとDVDや遊び道具が揃ったキッズコーナーやおむつ交換台も完備!お子様連れでも安心です。 お車の際には近隣に無料提携駐車場もございます。ご来場の際は、事前にご予約をお願いします。「見学予約する」ボタンよりご予約頂くとスムーズです♪
建築確認:有/NO.第25KAK建確00118号
国土法届出:不要
販売戸数:1戸
述べ床面積:106.22m2
法令等制限:宅地造成工事規制区域 敷地面積最低限度有 日影制限有 隅切り有 準防火地域 景観法 高度地区 緑化地域   
特記事項

省エネ性能

エネルギー消費性能 -
断熱性能 -
目安光熱費 -

神奈川県横浜市旭区鶴ケ峰本町2丁目 周辺地図情報

地図
※地図上に表示される物件の位置は付近住所に所在することを表すものであり、実際の物件所在地とは異なる場合がございます。
   正確な物件所在地は、取扱い不動産会社にお問い合わせください。
物件を見たい、物件や住環境の詳しい情報やローン相談など、
お問い合わせ先
朝日土地建物株式会社 二俣川支店 営業2課

不動産会社情報

お問い合わせ先 商号:朝日土地建物株式会社 二俣川支店 営業2課
免許番号:国土交通大臣(09)第003744号
所在地:神奈川県横浜市旭区二俣川1丁目6-1 二俣川北口ビル1階
取引態様:媒介
管理コード:5525
所属協会など:(公財)東日本不動産流通機構、(公社)首都圏不動産公正取引協議会、(公社)神奈川県宅地建物取引業協会
共有する
QRコード

お電話でのお問い合わせ

電話をかける(携帯・PHS可)
お問い合わせダイヤル
通話無料0037-634-62467
営業時間 09:30~20:30 (定休日:毎週火曜・水曜)
音声案内に従って数字を入力
お問い合わせ番号
87787-2973
不動産会社につながります
不動産会社のスタッフと
直接電話で話せます。
※不動産会社がお電話に出られなかった場合、株式会社LIFULLは電話会社が提供するサービスを介してお客様の発信者番号を受領後、折り返し専用の電話番号を発番してお問合せの不動産会社に通知します(お客様の発信者番号がお問合せの不動産会社に通知されることはございません)
※光IP電話、及びIP電話からはご利用になれません
※0037で始まる電話番号に携帯電話からお問合せいただいた方には、ショートメッセージ(SMS)によるお問合せ完了通知をお届けする場合があります
物件を見たい、物件や住環境の詳しい情報やローン相談など、
お問い合わせ先
朝日土地建物株式会社 二俣川支店 営業2課

横浜市旭区の暮らしデータ

人口などの統計情報

世帯数 1744208世帯
人口総数 3752969人
転入者数 217258人
転入率(人口1000人当たり)
57.89人
転出者数 201570人
転出率(人口1000人当たり)
53.71人
土地平均価格
住宅地
254434円/m2
商業地
1043863円/m2

結婚・育児の助成金

子育て関連の独自の取り組み 横浜市私立幼稚園等預かり保育事業(横浜市が定めた基準(実施日、時間、職員配置等)を満たし、横浜市の認定を受けた幼稚園・認定こども園が実施する事業。市内在住の園児の保護者が就労や病気等で、園の正規教育時間の前後に家庭で保育ができない場合に、利用可能。3歳児~5歳児は無料、満3歳児は(a)私学助成を受ける幼稚園の場合、月額9,000円、(b)新制度に移行した園の場合、0円~9,000円)。
出産祝い あり
公立保育所数 56所(うち0歳児保育を実施している保育所:41所)
私立保育所数 813所(うち0歳児保育を実施している保育所:716所)
保育所入所待機児童数 5人
認定こども園数 70園 預かり保育実施園数 公立:- 私立:213園
学校給食 【小学校】完全給食【中学校】家庭弁当等・業者弁当との選択制/デリバリー形式[運搬:ランチボックス、内容:完全給食]
公立中学校の学校選択制 一部実施(特定地域選択制[特別調整通学区域])
子ども・学生等医療費助成<通院>対象年齢 中学校卒業まで 子ども・学生等医療費助成<入院>対象年齢 中学校卒業まで

横浜市旭区の治安・ごみ収集情報

公共料金・インフラ

ガス料金(22m3使用した場合の月額) 東京瓦斯株式会社(東京地区等)3926円
水道料金(口径20mmで20m3の月額) 横浜市3017円
下水道料金(20m3を使用した場合の月額) 横浜市2035円
下水道普及率 100.0%

安心・安全

建物火災出火件数 438件
人口10000人当たり
1.16件
刑法犯認知件数 16059件
人口1000人当たり
4.25件
ハザード・防災マップ あり

医療

一般病院総数 113ヶ所
一般診療所総数 3201ヶ所
小児科医師数 682人
小児人口10000人当たり
15.98人
産婦人科医師数 346人
15~49歳女性人口1万人当たり
4.58人
介護保険料基準額(月額) 6620円

ごみ

家庭ごみ収集(可燃ごみ) 無料
備考
-
家庭ごみの分別方式 7分別9種〔燃やすごみ 燃えないごみ スプレー缶 乾電池 プラスチック製容器包装 缶・びん・ペットボトル(缶、びん、ペットボトル) 小さな金属類〕
家庭ごみの戸別収集 一部実施(【ふれあい収集】家庭ごみ・粗大ごみを集積場所まで持ち出すことができない高齢者や障害のある方などを対象にごみ出しの支援を実施。【狭あい道路収集】道路が狭く収集車が通行することができないため、集積場所が自宅近くに設けられない地域において、軽四輪車でごみを収集)
粗大ごみ収集 あり
備考
有料。事前申込制。自宅近くまでもしくは市内4ヶ所に設置されている自己搬入ヤードへ持ち込み。申し込みは電話、またはインターネット。
生ごみ処理機助成金制度 なし
上限金額
-
上限比率
-

横浜市旭区の住まいの給付金

新築購入

利子補給制度 なし
補助/助成金制度 なし
暮らしデータ提供元:生活ガイド.com
※行政機関により公表していない地域及びデータがございます。東京23区以外の政令指定都市は、市全体のデータとして表示しています。
※提供データには細心の注意を払っておりますが、調査後に変更がある場合があります。 最新の情報につきましては各市区役所までお問い合わせいただくか、自治体HPなどをご確認ください。
OCN×ドコモ光新規お申込みで合計最大137,280円相当おトク!特典の内訳・適用条件など詳細はこちら

横浜市旭区内の各駅の住みやすさ

住宅ローンの返済額一覧

物件価格 5180万円に対して、年率 で、頭金 の場合
↓ボーナス 35年間 30年間 25年間 20年間 15年間 10年間
0万円 121,485円/月 140,020円/月 165,985円/月 204,953円/月 269,926円/月 399,912円/月
5万円 112,400円/月 131,045円/月 157,118円/月 196,194円/月 261,274円/月 391,367円/月
10万円 103,314円/月 122,069円/月 148,252円/月 187,435円/月 252,623円/月 382,822円/月
15万円 94,229円/月 113,093円/月 139,385円/月 178,677円/月 243,971円/月 374,277円/月
20万円 85,144円/月 104,117円/月 130,518円/月 169,918円/月 235,320円/月 365,731円/月
25万円 76,058円/月 95,142円/月 121,651円/月 161,159円/月 226,668円/月 357,186円/月
30万円 66,973円/月 86,166円/月 112,785円/月 152,400円/月 218,017円/月 348,641円/月
支払い利息合計 4,245,890円~ 3,625,920円~ 3,011,200円~ 2,400,960円~ 1,796,010円~ 1,195,660円~
※元利均等返済方式で試算しています。 「円」の単位以下の端数金額は「切り捨て」として計算しております。
※金利は、固定金利として計算しております。
※上記の住宅ローン返済額一覧は、あくまで試算であり、将来の金利動向により、実際のご返済額とは異なります。
※ボーナス支払総額が総支払額の50%を超えている場合、上記の表では「ローン不可」となります。
※住宅ローン返済額一覧の数値は、住宅ローンのお申し込みやご融資をお約束するものではございません。
物件を見たい、物件や住環境の詳しい情報やローン相談など、
お問い合わせ先
朝日土地建物株式会社 二俣川支店 営業2課

掲載情報の著作権は提供元企業等に帰属します。
Copyright:(C) 2025 LIFULL Co.,Ltd.
アプリで簡単 物件探し 大手不動産サイトの情報から一括検!プッシュ通知で物件を見逃さない
App Storeからダウンロード Google Playで手に入れよう QRコード