アプリで簡単 物件探し 通知 共有 アプリならではの機能を使ってみる
新築一戸建て

東京都東大和市新堀1丁目 東大和市駅 新築一戸建て・分譲住宅

情報提供元
LIFULL HOME'S
東京都東大和市新堀1丁目 東大和市駅 新築一戸建て・分譲住宅
価格 3380万円
交通
所在地 東京都東大和市新堀1丁目周辺地図
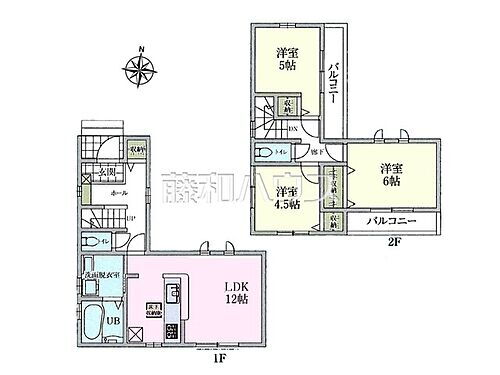
間取り 3LDK
建物面積 71.28m2 土地面積 95.66m2(実測)
築年月 2025年9月 築年数 新築
おすすめポイント
周辺環境も併せてご案内させていただきます。 お問い合わせお待ちしております。
バリアフリー・設計住宅性能評価取得
お問い合わせ先
株式会社藤和ハウス インターネットお問い合わせセンター
物件を見たい、物件や住環境の詳しい情報やローン相談など、
お問い合わせ先
株式会社藤和ハウス インターネットお問い合わせセンター

詳細情報

価格 3380万円
所在地 東京都東大和市新堀1丁目周辺地図
交通
  • 西武鉄道拝島線 東大和市駅 バス5分/「大和第三小学校」バス停 停歩8分乗換案内
  • 西武鉄道拝島線 東大和市駅 徒歩25分乗換案内
間取り 3LDK 築年月(築年数) 2025年9月新築
建物面積 71.28m2 建物構造・規模 木造2階建
土地面積 95.66m2(実測) 土地権利 所有権
私道面積 82m2 借地期間・地代
接道状況 北4.5m私道 一方道路
セットバック 駐車場 空有 無料
用途地域 1種低層 都市計画 市街化区域
建ぺい率/容積率 40%/80% 現況 空室
地目 宅地 引渡可能時期 即時
情報提供元 LIFULL HOME'S [1000980097912] 情報公開日
情報更新日 次回更新予定日 2025年12月21日

設備など

1種低層地域 即入居可 売主・代理 -
駐車2台以上 - 平屋 - 本下水
都市ガス - カウンターキッチン 床暖房 -
ウォークインクローゼット - バリアフリー
設備 上水道・プロパンガス・本下水・システムキッチン・給湯・モニタ付インターホン・温水洗浄便座・カウンターキッチン・浴室乾燥機・太陽光システム
リフォーム履歴 -
リノベーション履歴 -
備考 ●西武拝島線「東大和市」駅 バス5分「大和第三小学校」停歩8分 ●隙間のないなめらかな人造大理石の一体型システムキッチン ●雨の日の強い味方!浴室換気乾燥機付きユニットバスで洗濯物が乾かせます。 ●温水洗浄機能付きトイレで清潔にご使用いただけます。 ●24時間換気システムにより、花粉・PM2.5などの微小粒子物質の侵入を防ぎ、快適な室内を保ちます。 ●いつでもおいしいお水が飲める浄水器一体型水栓も完備 ●遮熱性の高いLow‐E複層ガラスを採用、夏冬の冷暖房効率を高めます。  【設備・特記事項備考】耐震構造・浴室1.6×2.0M以上・全居室収納・フラット35・S適合証明書
建築確認:有/NO.第25UDI1W第00757号
国土法届出:不要
販売戸数:1戸
述べ床面積:71.28m2
特記事項 バリアフリー・設計住宅性能評価取得

省エネ性能

エネルギー消費性能 -
断熱性能 -
目安光熱費 -

東京都東大和市新堀1丁目 周辺地図情報

地図
※地図上に表示される物件の位置は付近住所に所在することを表すものであり、実際の物件所在地とは異なる場合がございます。
   正確な物件所在地は、取扱い不動産会社にお問い合わせください。
物件を見たい、物件や住環境の詳しい情報やローン相談など、
お問い合わせ先
株式会社藤和ハウス インターネットお問い合わせセンター

不動産会社情報

お問い合わせ先 商号:株式会社藤和ハウス インターネットお問い合わせセンター
免許番号:国土交通大臣(8)第4224号
所在地:東京都西東京市田無町4丁目16-2
取引態様:媒介
管理コード:97912
所属協会など:(公社)首都圏不動産公正取引協議会、(一社)全国住宅産業協会、(一社)不動産流通経営協会、(公社)全日本不動産協会
共有する
QRコード

お電話でのお問い合わせ

電話をかける(携帯・PHS可)
お問い合わせダイヤル
通話無料0037-634-08779
営業時間 09:30~17:30 (定休日:毎週水曜日 ※藤和ハウス インターネットお問合せセンターの定休日です)
音声案内に従って数字を入力
お問い合わせ番号
35813-2975
不動産会社につながります
不動産会社のスタッフと
直接電話で話せます。
※不動産会社がお電話に出られなかった場合、株式会社LIFULLは電話会社が提供するサービスを介してお客様の発信者番号を受領後、折り返し専用の電話番号を発番してお問合せの不動産会社に通知します(お客様の発信者番号がお問合せの不動産会社に通知されることはございません)
※光IP電話、及びIP電話からはご利用になれません
※0037で始まる電話番号に携帯電話からお問合せいただいた方には、ショートメッセージ(SMS)によるお問合せ完了通知をお届けする場合があります
物件を見たい、物件や住環境の詳しい情報やローン相談など、
お問い合わせ先
株式会社藤和ハウス インターネットお問い合わせセンター

東大和市の暮らしデータ

人口などの統計情報

世帯数 36291世帯
人口総数 85085人
転入者数 3883人
転入率(人口1000人当たり)
45.64人
転出者数 3209人
転出率(人口1000人当たり)
37.72人
土地平均価格
住宅地
170200円/m2
商業地
189000円/m2

結婚・育児の助成金

子育て関連の独自の取り組み (1)病児・病後児保育室の「お迎えサービス」(病児・病後児保育室の保育士等が保護者に代わって保育園に児童をお迎えに行き、ドクターの診察の上病児・病後児保育室で保育を行う。タクシー代無料)。(2)保育士の人材派遣会社からの紹介料の補助(紹介料[60万円程度]の半額)。(3)保育士等が通勤に利用する駐車場利用料を施設が負担している場合にその半額を補助(施設負担額の1/2、1施設最大5万円/月)。(4)保育に関する相談を行う保育コンシェルジュを配置。(5)学童保育所の開所時間を午後7時まで延長。また、学童保育所事業以外に児童館等でランドセル来館事業を実施している。
出産祝い あり
公立保育所数 1所(うち0歳児保育を実施している保育所:0所)
私立保育所数 16所(うち0歳児保育を実施している保育所:15所)
保育所入所待機児童数 0人
認定こども園数 2園 預かり保育実施園数 公立:- 私立:2園
学校給食 【小学校】完全給食【中学校】完全給食
公立中学校の学校選択制 未実施
子ども・学生等医療費助成<通院>対象年齢 18歳3月末まで 子ども・学生等医療費助成<入院>対象年齢 18歳3月末まで

東大和市の治安・ごみ収集情報

公共料金・インフラ

ガス料金(22m3使用した場合の月額) 東京瓦斯株式会社(東京地区等)3926円
水道料金(口径20mmで20m3の月額) 東京都水道局2816円
下水道料金(20m3を使用した場合の月額) 東大和市2017円
下水道普及率 100.0%

安心・安全

建物火災出火件数 9件
人口10000人当たり
1.07件
刑法犯認知件数 471件
人口1000人当たり
5.61件
ハザード・防災マップ あり

医療

一般病院総数 2ヶ所
一般診療所総数 53ヶ所
小児科医師数 21人
小児人口10000人当たり
20.73人
産婦人科医師数 1人
15~49歳女性人口1万人当たり
0.63人
介護保険料基準額(月額) 5400円

ごみ

家庭ごみ収集(可燃ごみ) 有料
備考
可燃ごみ・不燃ごみ及び容器包装プラスチックは有料。それ以外の資源物は無料。
家庭ごみの分別方式 4分別15種〔可燃ごみ 不燃ごみ 資源物(容器包装プラスチック、ペットボトル、びん、缶、新聞紙、雑誌・雑がみ、段ボール、布類、スプレー缶類) 有害ごみ(乾電池、蛍光管、ライター、水銀体温計等)〕 拠点回収:使用済小型家電 使用済インクカートリッジ 使用済携帯電話 紙パック 不用食器 缶 ペットボトル 乾電池 蛍光管 使い捨てコンタクトレンズ空ケース 使用済みプラスチック容器
家庭ごみの戸別収集 実施
粗大ごみ収集 あり
備考
有料。事前申込制。
生ごみ処理機助成金制度 あり
上限金額
20000円
上限比率
50.0%

東大和市の住まいの給付金

新築購入

利子補給制度 なし
補助/助成金制度 なし
暮らしデータ提供元:生活ガイド.com
※行政機関により公表していない地域及びデータがございます。東京23区以外の政令指定都市は、市全体のデータとして表示しています。
※提供データには細心の注意を払っておりますが、調査後に変更がある場合があります。 最新の情報につきましては各市区役所までお問い合わせいただくか、自治体HPなどをご確認ください。
OCN×ドコモ光新規お申込みで合計最大137,280円相当おトク!特典の内訳・適用条件など詳細はこちら

東大和市内の各駅の住みやすさ

住宅ローンの返済額一覧

物件価格 3380万円に対して、年率 で、頭金 の場合
↓ボーナス 35年間 30年間 25年間 20年間 15年間 10年間
0万円 74,760円/月 86,166円/月 102,144円/月 126,124円/月 166,108円/月 246,099円/月
5万円 65,675円/月 77,190円/月 93,278円/月 117,366円/月 157,456円/月 237,554円/月
10万円 56,589円/月 68,215円/月 84,411円/月 108,607円/月 148,805円/月 229,009円/月
15万円 47,504円/月 59,239円/月 75,544円/月 99,848円/月 140,153円/月 220,464円/月
20万円 38,418円/月 50,263円/月 66,677円/月 91,090円/月 131,502円/月 211,919円/月
25万円 ローン不可 ローン不可 57,811円/月 82,331円/月 122,850円/月 203,374円/月
30万円 ローン不可 ローン不可 ローン不可 73,572円/月 114,199円/月 194,829円/月
支払い利息合計 2,613,690円~ 2,232,120円~ 1,856,400円~ 1,482,240円~ 1,108,770円~ 738,220円~
※元利均等返済方式で試算しています。 「円」の単位以下の端数金額は「切り捨て」として計算しております。
※金利は、固定金利として計算しております。
※上記の住宅ローン返済額一覧は、あくまで試算であり、将来の金利動向により、実際のご返済額とは異なります。
※ボーナス支払総額が総支払額の50%を超えている場合、上記の表では「ローン不可」となります。
※住宅ローン返済額一覧の数値は、住宅ローンのお申し込みやご融資をお約束するものではございません。
物件を見たい、物件や住環境の詳しい情報やローン相談など、
お問い合わせ先
株式会社藤和ハウス インターネットお問い合わせセンター

掲載情報の著作権は提供元企業等に帰属します。
Copyright:(C) 2025 LIFULL Co.,Ltd.
アプリで簡単 物件探し 大手不動産サイトの情報から一括検!プッシュ通知で物件を見逃さない
App Storeからダウンロード Google Playで手に入れよう QRコード