アプリで簡単 物件探し 通知 共有 アプリならではの機能を使ってみる
新築一戸建て

東京都府中市四谷4丁目5 中河原駅 新築一戸建て・分譲住宅

情報提供元
LIFULL HOME'S
東京都府中市四谷4丁目5 中河原駅 新築一戸建て・分譲住宅
価格 4930万円
交通
所在地 東京都府中市四谷4丁目5周辺地図
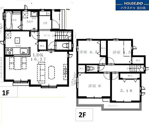
間取り 4LDK
建物面積 89.7m2 土地面積 113m2(公簿)
築年月 2025年9月 築年数 新築
おすすめポイント
【仲介ゼロキャンペーン対象物件】手数料無料+保険付売買は全国725店舗展開中のハウスドゥ立川北
駐車場2台分・制震構造・設計住宅性能評価取得・長期優良住宅・建設住宅性能評価取得
お問い合わせ先
ハウスドゥ 立川北 株式会社シティリノベーション
物件を見たい、物件や住環境の詳しい情報やローン相談など、
お問い合わせ先
ハウスドゥ 立川北 株式会社シティリノベーション

詳細情報

価格 4930万円
所在地 東京都府中市四谷4丁目5周辺地図
交通
  • 京王電鉄京王線 中河原駅 徒歩20分乗換案内
間取り 4LDK 築年月(築年数) 2025年9月新築
建物面積 89.7m2 建物構造・規模 木造2階建
土地面積 113m2(公簿) 土地権利 所有権
私道面積 162.92m2 借地期間・地代
接道状況 南4.5m私道
セットバック 駐車場 空有 (2台) 無料 物件からの距離0m カースペース
用途地域 1種低層 都市計画 市街化区域
建ぺい率/容積率 40%/80% 現況 空室
地目 宅地 引渡可能時期 即時
情報提供元 LIFULL HOME'S [1365310011784] 情報公開日
情報更新日 次回更新予定日 2025年11月20日

設備など

1種低層地域 即入居可 売主・代理 -
駐車2台以上 平屋 - 本下水
都市ガス カウンターキッチン 床暖房
ウォークインクローゼット バリアフリー -
設備 上水道・都市ガス・本下水・コンロ2口以上・システムキッチン・給湯・追焚機能・シャンプードレッサ・床下収納・ウォークインクローゼット・ロフト・室内洗濯機置き場・フローリング・床暖房・モニタ付インターホン・温水洗浄便座・カウンターキッチン・浴室乾燥機・洗面所独立・食器洗浄乾燥機・クローゼット・シューズボックス
リフォーム履歴 -
リノベーション履歴 -
備考 【物件周辺の生活情報】
・学校
日新小学校(540m)、府中第八中学校(1,210m)
・その他施設
駅(1,600m)
【仲介手数料無料】のゼロキャンペーン対象物件です。ご購入のお客様は仲介手数料無料にて!中古戸建【50キャンペーン対象物件】で仲介手数料半額キャンペーンも同時開催!さらにハウスドゥ立川北の売買契約は安心の宅地建物取引士賠償責任保険付き/1億円の保険が付帯されます。・住宅ローン相談もファイナンシャルプランナー(2級FP技能士)によるローンシュミレーションからライフプランの設計まで無料で作成 【駐車場備考】カースペース 【設備・特記事項備考】専用バス・耐震構造・耐震基準適合証明書・建築確認完了検査済証・新築時・増改築時の設計図書
国土法届出:不要
販売戸数:13戸
述べ床面積:89.7m2/南
法令等制限:高度地区・景観法・準防火地域・公有地拡大推進法
特記事項 駐車場2台分・制震構造・設計住宅性能評価取得・長期優良住宅・建設住宅性能評価取得

省エネ性能

エネルギー消費性能 -
断熱性能 -
目安光熱費 -

東京都府中市四谷4丁目5 周辺地図情報

地図
※地図上に表示される物件の位置は付近住所に所在することを表すものであり、実際の物件所在地とは異なる場合がございます。
   正確な物件所在地は、取扱い不動産会社にお問い合わせください。
物件を見たい、物件や住環境の詳しい情報やローン相談など、
お問い合わせ先
ハウスドゥ 立川北 株式会社シティリノベーション

不動産会社情報

お問い合わせ先 商号:ハウスドゥ 立川北 株式会社シティリノベーション
免許番号:東京都知事(2)第100954号
所在地:東京都立川市柏町3丁目19-14 フレンテ1F
取引態様:媒介
管理コード:11784
所属協会など:(公財)東日本不動産流通機構
共有する
QRコード

お電話でのお問い合わせ

電話をかける(携帯・PHS可)
お問い合わせダイヤル
通話無料0037-634-61103
営業時間 09:00~18:00 (定休日:毎週水曜日 夏季休暇 年末年始)
音声案内に従って数字を入力
お問い合わせ番号
57355-2977
不動産会社につながります
不動産会社のスタッフと
直接電話で話せます。
※不動産会社がお電話に出られなかった場合、株式会社LIFULLは電話会社が提供するサービスを介してお客様の発信者番号を受領後、折り返し専用の電話番号を発番してお問合せの不動産会社に通知します(お客様の発信者番号がお問合せの不動産会社に通知されることはございません)
※光IP電話、及びIP電話からはご利用になれません
※0037で始まる電話番号に携帯電話からお問合せいただいた方には、ショートメッセージ(SMS)によるお問合せ完了通知をお届けする場合があります
物件を見たい、物件や住環境の詳しい情報やローン相談など、
お問い合わせ先
ハウスドゥ 立川北 株式会社シティリノベーション

府中市の暮らしデータ

人口などの統計情報

世帯数 123766世帯
人口総数 260078人
転入者数 15231人
転入率(人口1000人当たり)
58.56人
転出者数 14174人
転出率(人口1000人当たり)
54.50人
土地平均価格
住宅地
329579円/m2
商業地
599125円/m2

結婚・育児の助成金

子育て関連の独自の取り組み (1)子育て情報誌(子育てのたまて箱)の発行。(2)子育て情報配信アプリの運営。(3)産前産後家庭サポート事業(出産前後の妊産婦のいる家庭等に援助員を派遣し、育児や家事等の支援を行う事業)の実施。
出産祝い なし
公立保育所数 11所(うち0歳児保育を実施している保育所:11所)
私立保育所数 45所(うち0歳児保育を実施している保育所:44所)
保育所入所待機児童数 0人
認定こども園数 0園 預かり保育実施園数 公立:- 私立:16園
学校給食 【小学校】完全給食【中学校】完全給食
公立中学校の学校選択制 未実施
子ども・学生等医療費助成<通院>対象年齢 18歳3月末まで 子ども・学生等医療費助成<入院>対象年齢 18歳3月末まで

府中市の治安・ごみ収集情報

公共料金・インフラ

ガス料金(22m3使用した場合の月額) 東京瓦斯株式会社(東京地区等)3926円
水道料金(口径20mmで20m3の月額) 東京都水道局2816円
下水道料金(20m3を使用した場合の月額) 府中市908円
下水道普及率 100.0%

安心・安全

建物火災出火件数 43件
人口10000人当たり
1.64件
刑法犯認知件数 1002件
人口1000人当たり
3.81件
ハザード・防災マップ あり

医療

一般病院総数 12ヶ所
一般診療所総数 188ヶ所
小児科医師数 170人
小児人口10000人当たり
53.58人
産婦人科医師数 46人
15~49歳女性人口1万人当たり
8.50人
介護保険料基準額(月額) 5995円

ごみ

家庭ごみ収集(可燃ごみ) 有料
備考
指定ごみ袋有料。指定ごみ袋にごみ処理手数料を含む。
家庭ごみの分別方式 12分別15種別〔可燃ごみ 不燃ごみ 容器包装プラスチック 有害ごみ びん かん ペットボトル 古布 紙類(段ボール、古紙、新聞、紙パック) 危険ごみ おむつ 落ち葉・下草〕 拠点回収:携帯電話・スマートフォン はがき 家庭廃食用油
家庭ごみの戸別収集 実施
粗大ごみ収集 あり
備考
有料。品目別料金(粗大ごみシール)設定。粗大ごみコールセンターで、電話・インターネットで事前申し込み制。直接持込みは通常料金の半額。
生ごみ処理機助成金制度 あり
上限金額
20000円
上限比率
50.0%

府中市の住まいの給付金

新築購入

利子補給制度 なし
補助/助成金制度 なし
暮らしデータ提供元:生活ガイド.com
※行政機関により公表していない地域及びデータがございます。東京23区以外の政令指定都市は、市全体のデータとして表示しています。
※提供データには細心の注意を払っておりますが、調査後に変更がある場合があります。 最新の情報につきましては各市区役所までお問い合わせいただくか、自治体HPなどをご確認ください。
OCN×ドコモ光新規お申込みで合計最大137,280円相当おトク!特典の内訳・適用条件など詳細はこちら

府中市内の各駅の住みやすさ

住宅ローンの返済額一覧

物件価格 4930万円に対して、年率 で、頭金 の場合
↓ボーナス 35年間 30年間 25年間 20年間 15年間 10年間
0万円 114,996円/月 132,540円/月 157,118円/月 194,004円/月 255,506円/月 378,549円/月
5万円 105,910円/月 123,565円/月 148,252円/月 185,246円/月 246,855円/月 370,004円/月
10万円 96,825円/月 114,589円/月 139,385円/月 176,487円/月 238,203円/月 361,459円/月
15万円 87,739円/月 105,613円/月 130,518円/月 167,728円/月 229,552円/月 352,914円/月
20万円 78,654円/月 96,638円/月 121,651円/月 158,970円/月 220,900円/月 344,369円/月
25万円 69,568円/月 87,662円/月 112,785円/月 150,211円/月 212,249円/月 335,823円/月
30万円 60,483円/月 78,686円/月 103,918円/月 141,452円/月 203,598円/月 327,278円/月
支払い利息合計 4,020,090円~ 3,433,120円~ 2,851,100円~ 2,273,440円~ 1,700,590円~ 1,132,100円~
※元利均等返済方式で試算しています。 「円」の単位以下の端数金額は「切り捨て」として計算しております。
※金利は、固定金利として計算しております。
※上記の住宅ローン返済額一覧は、あくまで試算であり、将来の金利動向により、実際のご返済額とは異なります。
※ボーナス支払総額が総支払額の50%を超えている場合、上記の表では「ローン不可」となります。
※住宅ローン返済額一覧の数値は、住宅ローンのお申し込みやご融資をお約束するものではございません。
物件を見たい、物件や住環境の詳しい情報やローン相談など、
お問い合わせ先
ハウスドゥ 立川北 株式会社シティリノベーション

掲載情報の著作権は提供元企業等に帰属します。
Copyright:(C) 2025 LIFULL Co.,Ltd.
アプリで簡単 物件探し 大手不動産サイトの情報から一括検!プッシュ通知で物件を見逃さない
App Storeからダウンロード Google Playで手に入れよう QRコード