アプリで簡単 物件探し 通知 共有 アプリならではの機能を使ってみる
新築一戸建て

東京都府中市白糸台4丁目7-3 武蔵野台駅 新築一戸建て・分譲住宅

情報提供元
LIFULL HOME'S
東京都府中市白糸台4丁目7-3 武蔵野台駅 新築一戸建て・分譲住宅
価格 5790万円
交通
所在地 東京都府中市白糸台4丁目7-3周辺地図
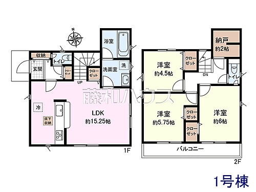
間取り 3LDK
建物面積 78.56m2 土地面積 102.92m2(実測)
築年月 2025年6月 築年数 新築
おすすめポイント
不動産は一生一度のお買い物になりますので、納得いくまでご見学していただき満足のいく住宅をご購入頂きたいと思っております。参考までにご見学したいでも、もちろん大歓迎です!
設計住宅性能評価取得
お問い合わせ先
株式会社藤和ハウス インターネットお問い合わせセンター
物件を見たい、物件や住環境の詳しい情報やローン相談など、
お問い合わせ先
株式会社藤和ハウス インターネットお問い合わせセンター

詳細情報

価格 5790万円
所在地 東京都府中市白糸台4丁目7-3周辺地図
交通
  • 京王電鉄京王線 武蔵野台駅 徒歩4分乗換案内
  • 西武鉄道多摩川線 白糸台駅 徒歩5分乗換案内
間取り 3LDK 築年月(築年数) 2025年6月新築
建物面積 78.56m2 建物構造・規模 木造2階建
土地面積 102.92m2(実測) 土地権利 所有権
私道面積 借地期間・地代
接道状況 西4m公道 一方道路
セットバック 駐車場 空有 無料
用途地域 1種低層 都市計画 市街化区域
建ぺい率/容積率 40%/80% 現況 空室
地目 引渡可能時期 即時
情報提供元 LIFULL HOME'S [1000980097754] 情報公開日
情報更新日 次回更新予定日 2025年11月21日

設備など

1種低層地域 即入居可 売主・代理 -
駐車2台以上 - 平屋 - 本下水
都市ガス カウンターキッチン 床暖房 -
ウォークインクローゼット - バリアフリー -
設備 上水道・都市ガス・本下水・システムキッチン・給湯・追焚機能・バルコニー・モニタ付インターホン・温水洗浄便座・カウンターキッチン・浴室乾燥機
リフォーム履歴 -
リノベーション履歴 -
備考 ●対面キッチンを採用したLDKは15帖超え ●コミュニケーション重視のリビングイン階段 ●色々なものを収納しておけるサービスルーム ●あると便利でうれしいリビング収納♪ ●バスルーム内の防カビ対策にも役立つ浴室乾燥機 ●玄関灯は、夜間の帰宅時に大変便利な人感センサー ●洗濯物もお布団もたっぷり干せる南向きバルコニー ●防犯に役立つTVモニター付インターホン ●日々の安全を守る防犯カメラ ●断熱性に優れ冷暖房の効率を高めるペアガラス ●周辺環境も合わせてご案内いたします! ●ぜひお気軽にお問い合わせください♪  【間取り備考】+納戸 【設備・特記事項備考】耐震構造・浴室1.6×2.0M以上・全居室収納
建築確認:有/NO.第R07SHC100450号
国土法届出:不要
販売戸数:1戸
述べ床面積:78.56m2
法令等制限:地目:畑(現況宅地) 
特記事項 設計住宅性能評価取得

省エネ性能

エネルギー消費性能 -
断熱性能 -
目安光熱費 -

東京都府中市白糸台4丁目7-3 周辺地図情報

地図
※地図上に表示される物件の位置は付近住所に所在することを表すものであり、実際の物件所在地とは異なる場合がございます。
   正確な物件所在地は、取扱い不動産会社にお問い合わせください。
物件を見たい、物件や住環境の詳しい情報やローン相談など、
お問い合わせ先
株式会社藤和ハウス インターネットお問い合わせセンター

不動産会社情報

お問い合わせ先 商号:株式会社藤和ハウス インターネットお問い合わせセンター
免許番号:国土交通大臣(8)第4224号
所在地:東京都西東京市田無町4丁目16-2
取引態様:媒介
管理コード:97754
所属協会など:(公社)首都圏不動産公正取引協議会、(一社)全国住宅産業協会、(一社)不動産流通経営協会、(公社)全日本不動産協会
共有する
QRコード

お電話でのお問い合わせ

電話をかける(携帯・PHS可)
お問い合わせダイヤル
通話無料0037-634-08779
営業時間 09:30~17:30 (定休日:毎週水曜日 ※藤和ハウス インターネットお問合せセンターの定休日です)
音声案内に従って数字を入力
お問い合わせ番号
56306-2971
不動産会社につながります
不動産会社のスタッフと
直接電話で話せます。
※不動産会社がお電話に出られなかった場合、株式会社LIFULLは電話会社が提供するサービスを介してお客様の発信者番号を受領後、折り返し専用の電話番号を発番してお問合せの不動産会社に通知します(お客様の発信者番号がお問合せの不動産会社に通知されることはございません)
※光IP電話、及びIP電話からはご利用になれません
※0037で始まる電話番号に携帯電話からお問合せいただいた方には、ショートメッセージ(SMS)によるお問合せ完了通知をお届けする場合があります
物件を見たい、物件や住環境の詳しい情報やローン相談など、
お問い合わせ先
株式会社藤和ハウス インターネットお問い合わせセンター

府中市の暮らしデータ

人口などの統計情報

世帯数 123766世帯
人口総数 260078人
転入者数 15231人
転入率(人口1000人当たり)
58.56人
転出者数 14174人
転出率(人口1000人当たり)
54.50人
土地平均価格
住宅地
329579円/m2
商業地
599125円/m2

結婚・育児の助成金

子育て関連の独自の取り組み (1)子育て情報誌(子育てのたまて箱)の発行。(2)子育て情報配信アプリの運営。(3)産前産後家庭サポート事業(出産前後の妊産婦のいる家庭等に援助員を派遣し、育児や家事等の支援を行う事業)の実施。
出産祝い なし
公立保育所数 11所(うち0歳児保育を実施している保育所:11所)
私立保育所数 45所(うち0歳児保育を実施している保育所:44所)
保育所入所待機児童数 0人
認定こども園数 0園 預かり保育実施園数 公立:- 私立:16園
学校給食 【小学校】完全給食【中学校】完全給食
公立中学校の学校選択制 未実施
子ども・学生等医療費助成<通院>対象年齢 18歳3月末まで 子ども・学生等医療費助成<入院>対象年齢 18歳3月末まで

府中市の治安・ごみ収集情報

公共料金・インフラ

ガス料金(22m3使用した場合の月額) 東京瓦斯株式会社(東京地区等)3926円
水道料金(口径20mmで20m3の月額) 東京都水道局2816円
下水道料金(20m3を使用した場合の月額) 府中市908円
下水道普及率 100.0%

安心・安全

建物火災出火件数 43件
人口10000人当たり
1.64件
刑法犯認知件数 1002件
人口1000人当たり
3.81件
ハザード・防災マップ あり

医療

一般病院総数 12ヶ所
一般診療所総数 188ヶ所
小児科医師数 170人
小児人口10000人当たり
53.58人
産婦人科医師数 46人
15~49歳女性人口1万人当たり
8.50人
介護保険料基準額(月額) 5995円

ごみ

家庭ごみ収集(可燃ごみ) 有料
備考
指定ごみ袋有料。指定ごみ袋にごみ処理手数料を含む。
家庭ごみの分別方式 12分別15種別〔可燃ごみ 不燃ごみ 容器包装プラスチック 有害ごみ びん かん ペットボトル 古布 紙類(段ボール、古紙、新聞、紙パック) 危険ごみ おむつ 落ち葉・下草〕 拠点回収:携帯電話・スマートフォン はがき 家庭廃食用油
家庭ごみの戸別収集 実施
粗大ごみ収集 あり
備考
有料。品目別料金(粗大ごみシール)設定。粗大ごみコールセンターで、電話・インターネットで事前申し込み制。直接持込みは通常料金の半額。
生ごみ処理機助成金制度 あり
上限金額
20000円
上限比率
50.0%

府中市の住まいの給付金

新築購入

利子補給制度 なし
補助/助成金制度 なし
暮らしデータ提供元:生活ガイド.com
※行政機関により公表していない地域及びデータがございます。東京23区以外の政令指定都市は、市全体のデータとして表示しています。
※提供データには細心の注意を払っておりますが、調査後に変更がある場合があります。 最新の情報につきましては各市区役所までお問い合わせいただくか、自治体HPなどをご確認ください。
OCN×ドコモ光新規お申込みで合計最大137,280円相当おトク!特典の内訳・適用条件など詳細はこちら

府中市内の各駅の住みやすさ

住宅ローンの返済額一覧

物件価格 5790万円に対して、年率 で、頭金 の場合
↓ボーナス 35年間 30年間 25年間 20年間 15年間 10年間
0万円 137,320円/月 158,271円/月 187,620円/月 231,667円/月 305,108円/月 452,037円/月
5万円 128,235円/月 149,295円/月 178,753円/月 222,908円/月 296,457円/月 443,492円/月
10万円 119,149円/月 140,319円/月 169,886円/月 214,149円/月 287,805円/月 434,947円/月
15万円 110,064円/月 131,344円/月 161,020円/月 205,390円/月 279,154円/月 426,402円/月
20万円 100,978円/月 122,368円/月 152,153円/月 196,632円/月 270,502円/月 417,857円/月
25万円 91,893円/月 113,392円/月 143,286円/月 187,873円/月 261,851円/月 409,312円/月
30万円 82,807円/月 104,417円/月 134,419円/月 179,114円/月 253,199円/月 400,766円/月
支払い利息合計 4,796,170円~ 4,096,280円~ 3,401,400円~ 2,712,320円~ 2,028,770円~ 1,350,660円~
※元利均等返済方式で試算しています。 「円」の単位以下の端数金額は「切り捨て」として計算しております。
※金利は、固定金利として計算しております。
※上記の住宅ローン返済額一覧は、あくまで試算であり、将来の金利動向により、実際のご返済額とは異なります。
※ボーナス支払総額が総支払額の50%を超えている場合、上記の表では「ローン不可」となります。
※住宅ローン返済額一覧の数値は、住宅ローンのお申し込みやご融資をお約束するものではございません。
物件を見たい、物件や住環境の詳しい情報やローン相談など、
お問い合わせ先
株式会社藤和ハウス インターネットお問い合わせセンター

掲載情報の著作権は提供元企業等に帰属します。
Copyright:(C) 2025 LIFULL Co.,Ltd.
アプリで簡単 物件探し 大手不動産サイトの情報から一括検!プッシュ通知で物件を見逃さない
App Storeからダウンロード Google Playで手に入れよう QRコード