アプリで簡単 物件探し 通知 共有 アプリならではの機能を使ってみる
新築一戸建て

東京都青梅市長淵3丁目 河辺駅 新築一戸建て・分譲住宅

情報提供元
LIFULL HOME'S
東京都青梅市長淵3丁目 河辺駅 新築一戸建て・分譲住宅
価格 2780万円
交通
所在地 東京都青梅市長淵3丁目周辺地図
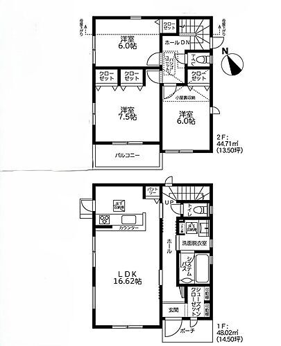
間取り 4LDK
建物面積 101.24m2(壁芯) 土地面積 140.17m2(公簿)
築年月 2025年9月 築年数 新築
おすすめポイント
◆敷地40坪以上◆ 理想のお家と余裕のカースペースを実現可能
駐車場2台分・設計住宅性能評価取得
物件を見たい、物件や住環境の詳しい情報やローン相談など、
お問い合わせ先
株式会社山一ホーム

詳細情報

価格 2780万円
所在地 東京都青梅市長淵3丁目周辺地図
交通
  • 青梅線 河辺駅 バス15分/「長淵駐在」バス停 停歩6分乗換案内
  • 青梅線 東青梅駅 徒歩23分乗換案内
間取り 4LDK(LDK 18 洋 4・5.3・8・8.5) 築年月(築年数) 2025年9月新築
建物面積 101.24m2(壁芯) 建物構造・規模 木造2階建
土地面積 140.17m2(公簿) 土地権利 所有権
私道面積 借地期間・地代
接道状況 北東4.6m公道 一方道路
セットバック 駐車場 空有 (2台) 無料
用途地域 1種住居 都市計画 市街化区域
建ぺい率/容積率 60%/150% 現況 未完成
地目 宅地 引渡可能時期 相談
情報提供元 LIFULL HOME'S [1073280015594] 情報公開日
情報更新日 次回更新予定日 2025年11月14日

設備など

1種低層地域 - 即入居可 - 売主・代理 -
駐車2台以上 平屋 - 本下水
都市ガス - カウンターキッチン - 床暖房 -
ウォークインクローゼット - バリアフリー -
設備 上水道・プロパンガス・本下水・バス・トイレ別・シャワー・給湯・追焚機能・床下収納・室内洗濯機置き場・モニタ付インターホン
リフォーム履歴 -
リノベーション履歴 -
備考 【物件周辺の生活情報】
・学校
青梅市立第二小学校(790m)、青梅市立第二中学校(1,400m)
・買い物
スーパー(1,061m)、コンビニ(457m)、ドラッグストア(1,003m)
・その他施設
銀行(1,224m)
 【設備・特記事項備考】耐震構造・フラット35・S適合証明書
建築確認:有/NO.第25UDI1W建00977
国土法届出:不要
特記事項 駐車場2台分・設計住宅性能評価取得

省エネ性能

エネルギー消費性能 -
断熱性能 -
目安光熱費 -

東京都青梅市長淵3丁目 周辺地図情報

地図
※地図上に表示される物件の位置は付近住所に所在することを表すものであり、実際の物件所在地とは異なる場合がございます。
   正確な物件所在地は、取扱い不動産会社にお問い合わせください。
物件を見たい、物件や住環境の詳しい情報やローン相談など、
お問い合わせ先
株式会社山一ホーム

不動産会社情報

お問い合わせ先 商号:株式会社山一ホーム
免許番号:東京都知事(10)第47202号
所在地:東京都福生市加美平2丁目14-1
取引態様:媒介
管理コード:15594
所属協会など:(公社)首都圏不動産公正取引協議会、(公社)東京都宅地建物取引業協会
共有する
QRコード

お電話でのお問い合わせ

電話をかける(携帯・PHS可)
お問い合わせダイヤル
通話無料0037-634-08696
営業時間 10:00~19:30 (定休日:年末年始)
音声案内に従って数字を入力
お問い合わせ番号
94612-2975
不動産会社につながります
不動産会社のスタッフと
直接電話で話せます。
※不動産会社がお電話に出られなかった場合、株式会社LIFULLは電話会社が提供するサービスを介してお客様の発信者番号を受領後、折り返し専用の電話番号を発番してお問合せの不動産会社に通知します(お客様の発信者番号がお問合せの不動産会社に通知されることはございません)
※光IP電話、及びIP電話からはご利用になれません
※0037で始まる電話番号に携帯電話からお問合せいただいた方には、ショートメッセージ(SMS)によるお問合せ完了通知をお届けする場合があります
物件を見たい、物件や住環境の詳しい情報やローン相談など、
お問い合わせ先
株式会社山一ホーム

青梅市の暮らしデータ

人口などの統計情報

世帯数 56354世帯
人口総数 129468人
転入者数 5229人
転入率(人口1000人当たり)
40.39人
転出者数 4677人
転出率(人口1000人当たり)
36.12人
土地平均価格
住宅地
90181円/m2
商業地
175750円/m2

結婚・育児の助成金

子育て関連の独自の取り組み -
出産祝い あり
公立保育所数 0所(うち0歳児保育を実施している保育所:-)
私立保育所数 31所(うち0歳児保育を実施している保育所:31所)
保育所入所待機児童数 2人
認定こども園数 3園 預かり保育実施園数 公立:- 私立:-
学校給食 【小学校】完全給食(15校) 給食なし(1校)【中学校】完全給食
公立中学校の学校選択制 一部実施(小規模特別認定校制1校)
子ども・学生等医療費助成<通院>対象年齢 18歳3月末まで 子ども・学生等医療費助成<入院>対象年齢 18歳3月末まで

青梅市の治安・ごみ収集情報

公共料金・インフラ

ガス料金(22m3使用した場合の月額) 青梅ガス株式会社4327円
水道料金(口径20mmで20m3の月額) 東京都水道局2816円
下水道料金(20m3を使用した場合の月額) 青梅市2126円
下水道普及率 98.2%

安心・安全

建物火災出火件数 32件
人口10000人当たり
2.40件
刑法犯認知件数 620件
人口1000人当たり
4.64件
ハザード・防災マップ あり

医療

一般病院総数 8ヶ所
一般診療所総数 91ヶ所
小児科医師数 23人
小児人口10000人当たり
18.64人
産婦人科医師数 12人
15~49歳女性人口1万人当たり
5.49人
介護保険料基準額(月額) 5800円

ごみ

家庭ごみ収集(可燃ごみ) 有料
備考
指定ごみ袋有料。
家庭ごみの分別方式 5分別14種〔燃やすごみ 燃やさないごみ 容器包装プラスチックごみ 有害ごみ 資源ごみ(新聞・折込チラシ、雑誌・雑紙、段ボール、紙パック、繊維類、ビン、カン、ペットボトル、ガラス、陶磁器)〕
家庭ごみの戸別収集 実施
粗大ごみ収集 あり
備考
有料。戸別収集。事前申込制。持ち込み受付も可(祝日、年末年始を除く月曜~金曜と日曜)。
生ごみ処理機助成金制度 なし
上限金額
-
上限比率
-

青梅市の住まいの給付金

新築購入

利子補給制度 なし
補助/助成金制度 なし
暮らしデータ提供元:生活ガイド.com
※行政機関により公表していない地域及びデータがございます。東京23区以外の政令指定都市は、市全体のデータとして表示しています。
※提供データには細心の注意を払っておりますが、調査後に変更がある場合があります。 最新の情報につきましては各市区役所までお問い合わせいただくか、自治体HPなどをご確認ください。
OCN×ドコモ光新規お申込みで合計最大137,280円相当おトク!特典の内訳・適用条件など詳細はこちら

青梅市内の各駅の住みやすさ

他のエリアから探す

青梅市の詳細地域から新築一戸建て物件を探す

天ヶ瀬町今井河辺町木野下新町大門長淵野上町東青梅

近辺の市区から探す

飯能市入間市昭島市福生市武蔵村山市羽村市あきる野市西多摩郡瑞穂町西多摩郡日の出町

周辺の駅から探す

青梅線
牛浜福生羽村小作河辺東青梅青梅宮ノ平日向和田

住宅ローンの返済額一覧

物件価格 2780万円に対して、年率 で、頭金 の場合
↓ボーナス 35年間 30年間 25年間 20年間 15年間 10年間
0万円 59,185円/月 68,215円/月 80,864円/月 99,848円/月 131,502円/月 194,829円/月
5万円 50,099円/月 59,239円/月 71,997円/月 91,090円/月 122,850円/月 186,284円/月
10万円 41,014円/月 50,263円/月 63,131円/月 82,331円/月 114,199円/月 177,738円/月
15万円 31,929円/月 41,288円/月 54,264円/月 73,572円/月 105,547円/月 169,193円/月
20万円 ローン不可 ローン不可 45,397円/月 64,814円/月 96,896円/月 160,648円/月
25万円 ローン不可 ローン不可 ローン不可 56,055円/月 88,245円/月 152,103円/月
30万円 ローン不可 ローン不可 ローン不可 ローン不可 79,593円/月 143,558円/月
支払い利息合計 2,068,760円~ 1,766,760円~ 1,469,550円~ 1,174,000円~ 879,690円~ 585,700円~
※元利均等返済方式で試算しています。 「円」の単位以下の端数金額は「切り捨て」として計算しております。
※金利は、固定金利として計算しております。
※上記の住宅ローン返済額一覧は、あくまで試算であり、将来の金利動向により、実際のご返済額とは異なります。
※ボーナス支払総額が総支払額の50%を超えている場合、上記の表では「ローン不可」となります。
※住宅ローン返済額一覧の数値は、住宅ローンのお申し込みやご融資をお約束するものではございません。
物件を見たい、物件や住環境の詳しい情報やローン相談など、
お問い合わせ先
株式会社山一ホーム

掲載情報の著作権は提供元企業等に帰属します。
Copyright:(C) 2025 LIFULL Co.,Ltd.
アプリで簡単 物件探し 大手不動産サイトの情報から一括検!プッシュ通知で物件を見逃さない
App Storeからダウンロード Google Playで手に入れよう QRコード