アプリで簡単 物件探し 通知 共有 アプリならではの機能を使ってみる
新築一戸建て

東京都足立区本木東町11 扇大橋駅 新築一戸建て・分譲住宅

情報提供元
LIFULL HOME'S
周辺環境
価格 4990万円
交通
所在地 東京都足立区本木東町11周辺地図
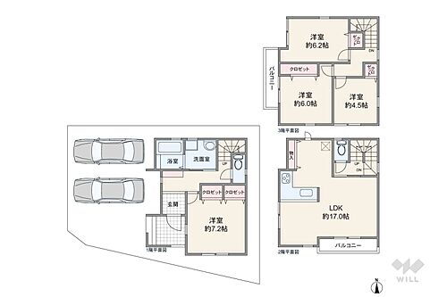
間取り 4LDK
建物面積 97.45m2 土地面積 120.02m2(公簿)
築年月 2026年1月 築年数 新築
おすすめポイント
【即対応可・定休日無し】 ◇LDKは約17帖!ご家族揃ってゆったりとお寛ぎいただけます! ◆開放感を演出してくれる対面式キッチンが採用されています ◇来客時にも心強い!駐車2台可能です!(車種による)
お問い合わせ先
株式会社ウィル 北千住営業所
物件を見たい、物件や住環境の詳しい情報やローン相談など、
お問い合わせ先
株式会社ウィル 北千住営業所

詳細情報

価格 4990万円
所在地 東京都足立区本木東町11周辺地図
交通
  • 日暮里舎人ライナー 扇大橋駅 徒歩16分乗換案内
  • 東武伊勢崎・大師線 西新井駅 徒歩25分乗換案内
間取り 4LDK 築年月(築年数) 2026年1月新築
建物面積 97.45m2 建物構造・規模 木造2階建
土地面積 120.02m2(公簿) 土地権利 所有権
私道面積 借地期間・地代
接道状況 北6.3m公道 一方道路
セットバック 駐車場 空有 無料
用途地域 準工業 都市計画 市街化区域
建ぺい率/容積率 80%/200% 現況 未完成
地目 宅地 引渡可能時期 相談
情報提供元 LIFULL HOME'S [1516150002133] 情報公開日
情報更新日 次回更新予定日 2025年11月24日

設備など

1種低層地域 - 即入居可 - 売主・代理 -
駐車2台以上 - 平屋 - 本下水 -
都市ガス - カウンターキッチン 床暖房 -
ウォークインクローゼット バリアフリー -
設備 バス・トイレ別・床下収納・ウォークインクローゼット・バルコニー・カウンターキッチン・洗面所独立・クローゼット・シューズボックス
リフォーム履歴 -
リノベーション履歴 -
備考 【物件周辺の生活情報】
・学校
本木小学校(271m)、第六中学校(465m)
◆LDKは約17帖!家族が自然と集まる広々とした空間◆リビング階段を採用し、自然と家族のコミュニケーションが生まれる間取り◆キッチンには調味料等のストックにも便利な床下収納有り◆LDKの隣に洋室を設けており、来客時やお子様の遊び場、寝室等ライフスタイルに合わせて活用可能◆主寝室にはウォークインクローゼット付きで収納力充実!◆南に面したバルコニーを2箇所設置!◆駐車スペース2台分(車種による)!来客時やセカンドカー、自転車等の置き場としても使用可能◆「本木小学校」まで徒歩約4分、お子様も無理なく通学できます◆「まいばすけっと足立本木店」まで徒歩約4分!【営業時間 10:00~19:00】上記時間はお電話が繋がりやすくなっております。ぜひお気軽にご連絡下さい!現地を見学される場合は「室内・現地を見学する(無料)」ボタンよりご希望の日時をご記入いただけますとスムーズにご案内が可能です。【ウィル不動産販売はここが強み】(1)住宅ローンに精通したローン専門部署があります!(2)施工実績多数のリフォーム部門も社内にあります!(3)定休日なし! 【設備・特記事項備考】耐震構造・全居室収納
建築確認:有/NO.第HPA-25-09812-1号
国土法届出:不要
販売戸数:2戸
特記事項

省エネ性能

エネルギー消費性能 -
断熱性能 -
目安光熱費 -

東京都足立区本木東町11 周辺地図情報

地図
※地図上に表示される物件の位置は付近住所に所在することを表すものであり、実際の物件所在地とは異なる場合がございます。
   正確な物件所在地は、取扱い不動産会社にお問い合わせください。
物件を見たい、物件や住環境の詳しい情報やローン相談など、
お問い合わせ先
株式会社ウィル 北千住営業所

不動産会社情報

お問い合わせ先 商号:株式会社ウィル 北千住営業所
免許番号:国土交通大臣(05)第006447号
所在地:東京都足立区千住2丁目4 オカバツインタワービルイースト1階
取引態様:媒介
管理コード:2133
所属協会など:所属団体未加入
共有する
QRコード

お電話でのお問い合わせ

電話をかける(携帯・PHS可)
お問い合わせダイヤル
通話無料0037-619-22952
営業時間 10:00~19:00
音声案内に従って数字を入力
お問い合わせ番号
45367-2977
不動産会社につながります
不動産会社のスタッフと
直接電話で話せます。
※不動産会社がお電話に出られなかった場合、株式会社LIFULLは電話会社が提供するサービスを介してお客様の発信者番号を受領後、折り返し専用の電話番号を発番してお問合せの不動産会社に通知します(お客様の発信者番号がお問合せの不動産会社に通知されることはございません)
※光IP電話、及びIP電話からはご利用になれません
※0037で始まる電話番号に携帯電話からお問合せいただいた方には、ショートメッセージ(SMS)によるお問合せ完了通知をお届けする場合があります
物件を見たい、物件や住環境の詳しい情報やローン相談など、
お問い合わせ先
株式会社ウィル 北千住営業所

足立区の暮らしデータ

人口などの統計情報

世帯数 345010世帯
人口総数 693223人
転入者数 44256人
転入率(人口1000人当たり)
63.84人
転出者数 35899人
転出率(人口1000人当たり)
51.79人
土地平均価格
住宅地
371926円/m2
商業地
646909円/m2

結婚・育児の助成金

子育て関連の独自の取り組み (1)病児保育(在宅型)利用料金の助成。(2)あだちはじめてえほん事業。(3)あだち幼保小接続期カリキュラム。(4)あだちっ子歯科健診。(5)保育士・幼稚園教諭奨学金返済支援事業補助金。(6)保育士・幼稚園教諭住居借上げ支援事業補助金。(7)保育従事者永年勤続褒賞。(8)足立区教育・保育の質ガイドライン。(9)病児保育(施設型)。
出産祝い あり
公立保育所数 40所(うち0歳児保育を実施している保育所:21所)
私立保育所数 113所(うち0歳児保育を実施している保育所:106所)
保育所入所待機児童数 5人
認定こども園数 7園 預かり保育実施園数 公立:- 私立:45園
学校給食 【小学校】完全給食【中学校】完全給食
公立中学校の学校選択制 実施(自由選択制)
子ども・学生等医療費助成<通院>対象年齢 18歳3月末まで 子ども・学生等医療費助成<入院>対象年齢 18歳3月末まで

足立区の治安・ごみ収集情報

公共料金・インフラ

ガス料金(22m3使用した場合の月額) 東京瓦斯株式会社(東京地区等)3926円
水道料金(口径20mmで20m3の月額) 東京都水道局2816円
下水道料金(20m3を使用した場合の月額) 東京都下水道局2068円
下水道普及率 99.9%

安心・安全

建物火災出火件数 142件
人口10000人当たり
2.04件
刑法犯認知件数 4222件
人口1000人当たり
6.07件
ハザード・防災マップ あり

医療

一般病院総数 54ヶ所
一般診療所総数 454ヶ所
小児科医師数 144人
小児人口10000人当たり
19.86人
産婦人科医師数 26人
15~49歳女性人口1万人当たり
1.79人
介護保険料基準額(月額) 6750円

ごみ

家庭ごみ収集(可燃ごみ) 無料
備考
引越し等に伴う臨時ごみは有料。45リットルのごみ袋1袋あたり300円。
家庭ごみの分別方式 3分別10種〔可燃ごみ 不燃ごみ 資源(古紙[新聞、雑誌類、雑がみ、段ボール、紙パック]、びん、缶、ペットボトル)〕千住、新田、宮城・小台のみ4分別12種〔可燃ごみ 不燃ごみ 資源(古紙[新聞、雑誌類、雑がみ、段ボール、紙パック]、びん、缶、ペットボトル) プラスチック(プラスチック製容器包装、製品プラスチック)〕
家庭ごみの戸別収集 一部実施(次のいずれか位に該当する者のみで構成される世帯で、世帯員が集積所までごみを持ち出すことが困難であり、かつ、世帯員以外の者の協力を得ることが出来ない方。[1]要介護2以上に認定されている者。[2]身体障害者手帳1級又は2級に認定されている者。[3]その他自ら集積所にごみを出すことが困難であると区長が認める者)
粗大ごみ収集 あり
備考
有料。事前申込制。ただし、指定場所への持込が可能な場合は年度内2回、1回につき10点まで無料。
生ごみ処理機助成金制度 あり
上限金額
20000円
上限比率
50.0%

足立区の住まいの給付金

新築購入

利子補給制度 なし
補助/助成金制度 なし
暮らしデータ提供元:生活ガイド.com
※行政機関により公表していない地域及びデータがございます。東京23区以外の政令指定都市は、市全体のデータとして表示しています。
※提供データには細心の注意を払っておりますが、調査後に変更がある場合があります。 最新の情報につきましては各市区役所までお問い合わせいただくか、自治体HPなどをご確認ください。
OCN×ドコモ光新規お申込みで合計最大137,280円相当おトク!特典の内訳・適用条件など詳細はこちら

足立区内の各駅の住みやすさ

住宅ローンの返済額一覧

物件価格 4990万円に対して、年率 で、頭金 の場合
↓ボーナス 35年間 30年間 25年間 20年間 15年間 10年間
0万円 116,553円/月 134,336円/月 159,246円/月 196,632円/月 258,967円/月 383,676円/月
5万円 107,468円/月 125,360円/月 150,380円/月 187,873円/月 250,315円/月 375,131円/月
10万円 98,382円/月 116,384円/月 141,513円/月 179,114円/月 241,664円/月 366,586円/月
15万円 89,297円/月 107,409円/月 132,646円/月 170,356円/月 233,013円/月 358,041円/月
20万円 80,211円/月 98,433円/月 123,779円/月 161,597円/月 224,361円/月 349,496円/月
25万円 71,126円/月 89,457円/月 114,913円/月 152,838円/月 215,710円/月 340,951円/月
30万円 62,040円/月 80,481円/月 106,046円/月 144,080円/月 207,058円/月 332,405円/月
支払い利息合計 4,074,030円~ 3,479,320円~ 2,889,500円~ 2,304,160円~ 1,723,390円~ 1,147,340円~
※元利均等返済方式で試算しています。 「円」の単位以下の端数金額は「切り捨て」として計算しております。
※金利は、固定金利として計算しております。
※上記の住宅ローン返済額一覧は、あくまで試算であり、将来の金利動向により、実際のご返済額とは異なります。
※ボーナス支払総額が総支払額の50%を超えている場合、上記の表では「ローン不可」となります。
※住宅ローン返済額一覧の数値は、住宅ローンのお申し込みやご融資をお約束するものではございません。
物件を見たい、物件や住環境の詳しい情報やローン相談など、
お問い合わせ先
株式会社ウィル 北千住営業所

掲載情報の著作権は提供元企業等に帰属します。
Copyright:(C) 2025 LIFULL Co.,Ltd.
アプリで簡単 物件探し 大手不動産サイトの情報から一括検!プッシュ通知で物件を見逃さない
App Storeからダウンロード Google Playで手に入れよう QRコード