アプリで簡単 物件探し 通知 共有 アプリならではの機能を使ってみる
新築一戸建て

埼玉県久喜市本町6丁目635-36他 久喜駅 新築一戸建て・分譲住宅

情報提供元
LIFULL HOME'S
埼玉県久喜市本町6丁目635-36他 久喜駅 新築一戸建て・分譲住宅
価格 3899万円
交通
所在地 埼玉県久喜市本町6丁目635-36他周辺地図
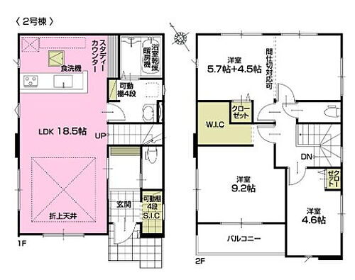
間取り 3LDK
建物面積 97.05m2 土地面積 112.63m2(公簿)
築年月 2025年9月 築年数 新築
おすすめポイント
\陽光降り注ぐ明るいお家/久喜駅徒歩15分■4LDK対応可■生活便利な立地 ▽小・中学校徒歩8分圏内 ▽周辺に買い物施設豊富 ▽LDK18.5帖の広々空間
【オープンハウス情報】
2025年12月01日(月)~2025年12月26日(金)(10:00 ~ 19:00)
■ご見学について.。o○24時間365日お問い合わせ受付中 「ちょこっと、見たい」もちろん大歓迎です! 平日はもちろん土日祝日いつでもご見学が可能です。時間外もご相談ください。
角地
物件を見たい、物件や住環境の詳しい情報やローン相談など、
お問い合わせ先
でざいん不動産株式会社

詳細情報

価格 3899万円
所在地 埼玉県久喜市本町6丁目635-36他周辺地図
交通
間取り 3LDK(LDK 18.5 洋 10.2・9.2・4.6) 築年月(築年数) 2025年9月新築
建物面積 97.05m2 建物構造・規模 木造2階建
土地面積 112.63m2(公簿) 土地権利 所有権
私道面積 借地期間・地代
接道状況 北西6m公道 南西6m公道 角地
セットバック 駐車場 空有 無料
用途地域 2種中高 都市計画 市街化区域
建ぺい率/容積率 60%/200% 現況 空室
地目 宅地 引渡可能時期 即時
情報提供元 LIFULL HOME'S [1497150002279] 情報公開日
情報更新日 次回更新予定日 2025年12月19日

設備など

1種低層地域 - 即入居可 売主・代理 -
駐車2台以上 - 平屋 - 本下水
都市ガス カウンターキッチン 床暖房 -
ウォークインクローゼット バリアフリー -
設備 上水道・都市ガス・本下水・ガスコンロ可・コンロ2口以上・システムキッチン・追焚機能・床下収納・ウォークインクローゼット・バルコニー・フローリング・モニタ付インターホン・温水洗浄便座・カウンターキッチン・浴室乾燥機・食器洗浄乾燥機・クローゼット・オートバス
リフォーム履歴 -
リノベーション履歴 -
備考 【物件周辺の生活情報】
・学校
久喜市立久喜小学校(640m)、久喜市立久喜中学校(519m)
・買い物
スーパー(1,083m)、コンビニ(443m)、ドラッグストア(272m)、商店街(1,110m)
・その他施設
公園(199m)、そらにとどくき認定こども園ののの(838m)
容積率備考: 
《住まいのことなら【楽ラク×不動産】でざいん不動産へ!》  ▼当店は宅建士、FPなどの不動産や資金の将来設計に関する有資格者がおり、お客様に寄り添った住まい探しができます。 ▼自己資金0円からの家探しできます。 ▼住宅ローンに自信あり!過去にお断りされた方ご相談ください。 ▼当日、平日、時間外もご見学・ご案内可能です。 見学予約は0120-25-1373【通話無料】までお気軽にお電話ください。 【設備・特記事項備考】専用バス・専用トイレ・全居室収納
建築確認:有/NO.第25UDI1W建01367号
国土法届出:不要
販売戸数:2戸/南西
特記事項 角地

省エネ性能

エネルギー消費性能 -
断熱性能 -
目安光熱費 -

埼玉県久喜市本町6丁目635-36他 周辺地図情報

地図
※地図上に表示される物件の位置は付近住所に所在することを表すものであり、実際の物件所在地とは異なる場合がございます。
   正確な物件所在地は、取扱い不動産会社にお問い合わせください。
物件を見たい、物件や住環境の詳しい情報やローン相談など、
お問い合わせ先
でざいん不動産株式会社

不動産会社情報

お問い合わせ先 商号:でざいん不動産株式会社
免許番号:埼玉県知事(01)第024643号
所在地:埼玉県熊谷市中央2丁目251
取引態様:媒介
管理コード:2279
所属協会など:(公財)東日本不動産流通機構、(公社)首都圏不動産公正取引協議会、(公社)埼玉県宅地建物取引業協会
共有する
QRコード

お電話でのお問い合わせ

電話をかける(携帯・PHS可)
お問い合わせダイヤル
通話無料0037-634-43683
営業時間 10:00~19:00 (定休日:水曜日)
音声案内に従って数字を入力
お問い合わせ番号
19793-2973
不動産会社につながります
不動産会社のスタッフと
直接電話で話せます。
※不動産会社がお電話に出られなかった場合、株式会社LIFULLは電話会社が提供するサービスを介してお客様の発信者番号を受領後、折り返し専用の電話番号を発番してお問合せの不動産会社に通知します(お客様の発信者番号がお問合せの不動産会社に通知されることはございません)
※光IP電話、及びIP電話からはご利用になれません
※0037で始まる電話番号に携帯電話からお問合せいただいた方には、ショートメッセージ(SMS)によるお問合せ完了通知をお届けする場合があります
物件を見たい、物件や住環境の詳しい情報やローン相談など、
お問い合わせ先
でざいん不動産株式会社

久喜市の暮らしデータ

人口などの統計情報

世帯数 62497世帯
人口総数 150913人
転入者数 6837人
転入率(人口1000人当たり)
45.30人
転出者数 5588人
転出率(人口1000人当たり)
37.03人
土地平均価格
住宅地
59060円/m2
商業地
90350円/m2

結婚・育児の助成金

子育て関連の独自の取り組み (1)赤ちゃんスマイル祝金(2023年4月1日以降に出生した児童のうち、出生した日から申請日まで久喜市の住民登録基本台帳に記載されている児童に対し、健やかな成長を応援するための祝金)。(2)おもちゃ図書館(発達障がい児向けの学習施設)。(3)子育て支援ホームヘルパー派遣事業(出産後間もないお母さんへ、ホームヘルパーを派遣。所得に応じて利用料の支払いあり)。
出産祝い あり
公立保育所数 4所(うち0歳児保育を実施している保育所:3所)
私立保育所数 14所(うち0歳児保育を実施している保育所:14所)
保育所入所待機児童数 0人
認定こども園数 11園 預かり保育実施園数 公立:2園 私立:1園
学校給食 【小学校】完全給食【中学校】完全給食
公立中学校の学校選択制 未実施
子ども・学生等医療費助成<通院>対象年齢 18歳3月末まで 子ども・学生等医療費助成<入院>対象年齢 18歳3月末まで

久喜市の治安・ごみ収集情報

公共料金・インフラ

ガス料金(22m3使用した場合の月額) 東京瓦斯株式会社(東京地区等)3926円
東彩ガス株式会社(越谷・春日部地区)4893円
東彩ガス株式会社(北本・桶川地区)4609円
鷲宮ガス株式会社5094円
幸手都市ガス株式会社5459円
水道料金(口径20mmで20m3の月額) 久喜市3388円
下水道料金(20m3を使用した場合の月額) 久喜市1870円
下水道普及率 70.1%

安心・安全

建物火災出火件数 31件
人口10000人当たり
2.06件
刑法犯認知件数 946件
人口1000人当たり
6.28件
ハザード・防災マップ あり

医療

一般病院総数 6ヶ所
一般診療所総数 83ヶ所
小児科医師数 17人
小児人口10000人当たり
10.65人
産婦人科医師数 0人
15~49歳女性人口1万人当たり
0.00人
介護保険料基準額(月額) 5355円

ごみ

家庭ごみ収集(可燃ごみ) 無料
備考
指定ごみ袋有料(燃やせるごみ・燃やせないごみ)だが、袋代にごみ収集・処理料金等を含まず。ただし、引越しごみ、臨時ごみ、大量ごみ等をごみ処理施設に直接搬入する場合は有料(10kgにつき220円)。
家庭ごみの分別方式 【久喜地区】5分別16種【菖蒲地区】5分別16種【栗橋・鷲宮地区】5分別17種〔燃やせるごみ 燃やせないごみ(不燃物、割れたガラス、傘) 資源プラスチック・プラスチック製容器包装 有害ごみ(スプレー缶、乾電池類、ライター類、蛍光灯、水銀式体温計・血圧計等、充電式小型家電、モバイルバッテリー等) 資源リサイクル(新聞、飲料用紙パック、ダンボール、雑誌・雑紙、布・衣類、びん・缶・ペットボトル[※栗橋・鷲宮地区のみびん・缶とペットボトルを別に出す])〕
家庭ごみの戸別収集 一部実施(久喜市ふれあい収集事業)
粗大ごみ収集 あり
備考
有料。事前申込制(5点まで/回予約可)。引越しごみ、臨時ごみ、大量ごみ等を施設に直接搬入する場合も有料。
生ごみ処理機助成金制度 あり
上限金額
30000円
上限比率
50.0%

久喜市の住まいの給付金

新築購入

利子補給制度 なし
補助/助成金制度 なし
暮らしデータ提供元:生活ガイド.com
※行政機関により公表していない地域及びデータがございます。東京23区以外の政令指定都市は、市全体のデータとして表示しています。
※提供データには細心の注意を払っておりますが、調査後に変更がある場合があります。 最新の情報につきましては各市区役所までお問い合わせいただくか、自治体HPなどをご確認ください。
OCN×ドコモ光新規お申込みで合計最大137,280円相当おトク!特典の内訳・適用条件など詳細はこちら

久喜市内の各駅の住みやすさ

他のエリアから探す

久喜市の詳細地域から新築一戸建て物件を探す

青毛青葉伊坂南上内太田袋上町久喜中央久喜東久喜本栗橋東栗原佐間菖蒲町下栢間菖蒲町菖蒲菖蒲町新堀西野久喜本町南栗橋吉羽鷲宮

近辺の市区から探す

猿島郡五霞町猿島郡境町さいたま市岩槻区加須市春日部市鴻巣市上尾市桶川市北本市蓮田市幸手市白岡市北足立郡伊奈町南埼玉郡宮代町北葛飾郡杉戸町

周辺の駅から探す

東北本線
東大宮蓮田白岡新白岡久喜東鷲宮栗橋古河野木

住宅ローンの返済額一覧

物件価格 3899万円に対して、年率 で、頭金 の場合
↓ボーナス 35年間 30年間 25年間 20年間 15年間 10年間
0万円 88,233円/月 101,694円/月 120,552円/月 148,853円/月 196,042円/月 290,449円/月
5万円 79,147円/月 92,718円/月 111,685円/月 140,095円/月 187,390円/月 281,904円/月
10万円 70,062円/月 83,743円/月 102,818円/月 131,336円/月 178,739円/月 273,358円/月
15万円 60,976円/月 74,767円/月 93,952円/月 122,577円/月 170,087円/月 264,813円/月
20万円 51,891円/月 65,791円/月 85,085円/月 113,819円/月 161,436円/月 256,268円/月
25万円 ローン不可 56,816円/月 76,218円/月 105,060円/月 152,785円/月 247,723円/月
30万円 ローン不可 ローン不可 67,351円/月 96,301円/月 144,133円/月 239,178円/月
支払い利息合計 3,082,350円~ 2,635,560円~ 2,191,000円~ 1,747,200円~ 1,306,890円~ 870,100円~
※元利均等返済方式で試算しています。 「円」の単位以下の端数金額は「切り捨て」として計算しております。
※金利は、固定金利として計算しております。
※上記の住宅ローン返済額一覧は、あくまで試算であり、将来の金利動向により、実際のご返済額とは異なります。
※ボーナス支払総額が総支払額の50%を超えている場合、上記の表では「ローン不可」となります。
※住宅ローン返済額一覧の数値は、住宅ローンのお申し込みやご融資をお約束するものではございません。
物件を見たい、物件や住環境の詳しい情報やローン相談など、
お問い合わせ先
でざいん不動産株式会社

掲載情報の著作権は提供元企業等に帰属します。
Copyright:(C) 2025 LIFULL Co.,Ltd.
アプリで簡単 物件探し 大手不動産サイトの情報から一括検!プッシュ通知で物件を見逃さない
App Storeからダウンロード Google Playで手に入れよう QRコード