アプリで簡単 物件探し 通知 共有 アプリならではの機能を使ってみる
新築一戸建て

埼玉県越谷市千間台西6丁目 せんげん台駅 新築一戸建て・分譲住宅

情報提供元
LIFULL HOME'S
埼玉県越谷市千間台西6丁目 せんげん台駅 新築一戸建て・分譲住宅
価格 4280万円
交通
所在地 埼玉県越谷市千間台西6丁目周辺地図
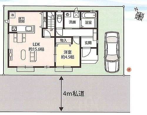
間取り 4LDK
建物面積 99.77m2 土地面積 147.9m2
築年月 2025年12月 築年数 新築
おすすめポイント
本日見学できます未完成物件の場合、周辺の同仕様物件をご見学いただけます 物件資料はメール又はショートメールでお送りします ローンが不安の方ご相談ください
設計住宅性能評価取得・長期優良住宅・建設住宅性能評価取得
お問い合わせ先
株式会社ハウスネットパートナー 越谷店
物件を見たい、物件や住環境の詳しい情報やローン相談など、
お問い合わせ先
株式会社ハウスネットパートナー 越谷店

詳細情報

価格 4280万円
所在地 埼玉県越谷市千間台西6丁目周辺地図
交通
  • 東武伊勢崎・大師線 せんげん台駅 バス4分/「千間台西六丁目」バス停 停歩6分乗換案内
  • 東武伊勢崎・大師線 せんげん台駅 徒歩25分乗換案内
間取り 4LDK 築年月(築年数) 2025年12月新築
建物面積 99.77m2 建物構造・規模 木造2階建
土地面積 147.9m2 土地権利 所有権
私道面積 借地期間・地代
接道状況 北西6m公道接面9.8m 一方道路 駐車場
用途地域 1種中高 都市計画 市街化区域
建ぺい率/容積率 60%/200% 現況 未完成
地目 宅地 引渡可能時期 2025年12月下旬
情報提供元 LIFULL HOME'S [1523090002556] 情報公開日
情報更新日 次回更新予定日 2025年11月23日

設備など

1種低層地域 - 即入居可 - 売主・代理 -
駐車2台以上 - 平屋 - 本下水
都市ガス カウンターキッチン 床暖房 -
ウォークインクローゼット バリアフリー -
設備 上水道・都市ガス・本下水・バス・トイレ別・シャワー・ガスコンロ可・コンロ2口以上・システムキッチン・給湯・追焚機能・シャンプードレッサ・床下収納・ウォークインクローゼット・室内洗濯機置き場・バルコニー・フローリング・モニタ付インターホン・温水洗浄便座・カウンターキッチン・浴室乾燥機・洗面所独立・クローゼット・シューズボックス・照明器具
リフォーム履歴 -
リノベーション履歴 -
備考 ◆◆仲介手数料0円(無料)◆◆   ハウスネットパートナーの特徴→「新築戸建専門店」 「仲介手数料0円(無料)」 「県内トップクラスの金利優遇(提携銀行多数)」 「川口店・大宮店・越谷店で営業中」   通常仲介手数料っていくら? 購入物件が4000万円なら約138万円 5000万円なら約171万円  ハウスネットパートナーなら0円(無料)です。 ◆◆仲介手数料0円(無料)◆◆  【設備・特記事項備考】専用バス・専用トイレ・耐震構造・浴室1.6×2.0M以上・全居室収納・フラット35・S適合証明書・建築確認完了検査済証
建築確認:有/NO.第25UDI1W建02277号
国土法届出:不要
販売戸数:1戸
述べ床面積:99.77m2
特記事項 設計住宅性能評価取得・長期優良住宅・建設住宅性能評価取得

省エネ性能

エネルギー消費性能 -
断熱性能 -
目安光熱費 -

埼玉県越谷市千間台西6丁目 周辺地図情報

地図
※地図上に表示される物件の位置は付近住所に所在することを表すものであり、実際の物件所在地とは異なる場合がございます。
   正確な物件所在地は、取扱い不動産会社にお問い合わせください。
物件を見たい、物件や住環境の詳しい情報やローン相談など、
お問い合わせ先
株式会社ハウスネットパートナー 越谷店

不動産会社情報

お問い合わせ先 商号:株式会社ハウスネットパートナー 越谷店
免許番号:埼玉県知事(02)第023376号
所在地:埼玉県越谷市千間台東1丁目19-4
取引態様:媒介
管理コード:2556
所属協会など:(公社)首都圏不動産公正取引協議会、(公社)全日本不動産協会埼玉県本部
共有する
QRコード

お電話でのお問い合わせ

電話をかける(携帯・PHS可)
お問い合わせダイヤル
通話無料0037-619-89753
営業時間 08:30~18:00 (定休日:水曜日定休(事前予約でご案内可)◆仲介手数料無料相談受付◆)
音声案内に従って数字を入力
お問い合わせ番号
20248-2976
不動産会社につながります
不動産会社のスタッフと
直接電話で話せます。
※不動産会社がお電話に出られなかった場合、株式会社LIFULLは電話会社が提供するサービスを介してお客様の発信者番号を受領後、折り返し専用の電話番号を発番してお問合せの不動産会社に通知します(お客様の発信者番号がお問合せの不動産会社に通知されることはございません)
※光IP電話、及びIP電話からはご利用になれません
※0037で始まる電話番号に携帯電話からお問合せいただいた方には、ショートメッセージ(SMS)によるお問合せ完了通知をお届けする場合があります
物件を見たい、物件や住環境の詳しい情報やローン相談など、
お問い合わせ先
株式会社ハウスネットパートナー 越谷店

越谷市の暮らしデータ

人口などの統計情報

世帯数 142590世帯
人口総数 343062人
転入者数 13809人
転入率(人口1000人当たり)
40.25人
転出者数 12936人
転出率(人口1000人当たり)
37.71人
土地平均価格
住宅地
142558円/m2
商業地
323143円/m2

結婚・育児の助成金

子育て関連の独自の取り組み こしがや「プラス保育」幼稚園事業(保育施設希望者にやさしい長時間預かり保育を行う私立幼稚園と認定こども園[教育部分]をこしがや「プラス保育」幼稚園と認定。「プラス保育枠」[保育所等の条件を満たす就労・就学等の方が利用できる。園ごとに定員あり]として利用する場合、8時~18時の預かり保育を原則無料で行う)。
出産祝い なし
公立保育所数 18所(うち0歳児保育を実施している保育所:14所)
私立保育所数 21所(うち0歳児保育を実施している保育所:19所)
保育所入所待機児童数 4人
認定こども園数 10園 預かり保育実施園数 公立:- 私立:19園
学校給食 【小学校】完全給食【中学校】完全給食
公立中学校の学校選択制 一部実施(1年生のみ)
子ども・学生等医療費助成<通院>対象年齢 18歳3月末まで 子ども・学生等医療費助成<入院>対象年齢 18歳3月末まで

越谷市の治安・ごみ収集情報

公共料金・インフラ

ガス料金(22m3使用した場合の月額) 東京瓦斯株式会社(東京地区等)3926円
東彩ガス株式会社(越谷・春日部地区)4893円
水道料金(口径20mmで20m3の月額) 越谷・松伏水道企業団2805円
下水道料金(20m3を使用した場合の月額) 越谷市2574円
下水道普及率 84.3%

安心・安全

建物火災出火件数 50件
人口10000人当たり
1.46件
刑法犯認知件数 2772件
人口1000人当たり
8.11件
ハザード・防災マップ あり

医療

一般病院総数 12ヶ所
一般診療所総数 200ヶ所
小児科医師数 73人
小児人口10000人当たり
17.66人
産婦人科医師数 39人
15~49歳女性人口1万人当たり
5.67人
介護保険料基準額(月額) 6000円

ごみ

家庭ごみ収集(可燃ごみ) 無料
備考
-
家庭ごみの分別方式 10分別14区別〔可燃ごみ 不燃ごみ 古紙類(新聞紙、雑誌、段ボール、雑紙、紙パック) ペットボトル 缶 びん 古着類 危険ごみ 白色トレイ せん定枝・刈草〕
家庭ごみの戸別収集 一部実施(【ふれあい収集】ごみ集積所に排出することが困難な高齢者のみの世帯・障がい者のみの世帯に対し戸別収集を行う)
粗大ごみ収集 あり
備考
有料。戸別収集。事前申込制。一辺の長さが50cm以上または、重量が10kg以上のものが粗大ごみ。
生ごみ処理機助成金制度 なし
上限金額
-
上限比率
-

越谷市の住まいの給付金

新築購入

利子補給制度 なし
補助/助成金制度 なし
暮らしデータ提供元:生活ガイド.com
※行政機関により公表していない地域及びデータがございます。東京23区以外の政令指定都市は、市全体のデータとして表示しています。
※提供データには細心の注意を払っておりますが、調査後に変更がある場合があります。 最新の情報につきましては各市区役所までお問い合わせいただくか、自治体HPなどをご確認ください。
OCN×ドコモ光新規お申込みで合計最大137,280円相当おトク!特典の内訳・適用条件など詳細はこちら

越谷市内の各駅の住みやすさ

住宅ローンの返済額一覧

物件価格 4280万円に対して、年率 で、頭金 の場合
↓ボーナス 35年間 30年間 25年間 20年間 15年間 10年間
0万円 98,123円/月 113,093円/月 134,065円/月 165,539円/月 218,017円/月 323,006円/月
5万円 89,037円/月 104,117円/月 125,198円/月 156,780円/月 209,365円/月 314,461円/月
10万円 79,952円/月 95,142円/月 116,331円/月 148,021円/月 200,714円/月 305,915円/月
15万円 70,866円/月 86,166円/月 107,464円/月 139,262円/月 192,062円/月 297,370円/月
20万円 61,781円/月 77,190円/月 98,598円/月 130,504円/月 183,411円/月 288,825円/月
25万円 52,695円/月 68,215円/月 89,731円/月 121,745円/月 174,759円/月 280,280円/月
30万円 ローン不可 59,239円/月 80,864円/月 112,986円/月 166,108円/月 271,735円/月
支払い利息合計 3,429,580円~ 2,932,200円~ 2,434,900円~ 1,941,600円~ 1,452,390円~ 966,940円~
※元利均等返済方式で試算しています。 「円」の単位以下の端数金額は「切り捨て」として計算しております。
※金利は、固定金利として計算しております。
※上記の住宅ローン返済額一覧は、あくまで試算であり、将来の金利動向により、実際のご返済額とは異なります。
※ボーナス支払総額が総支払額の50%を超えている場合、上記の表では「ローン不可」となります。
※住宅ローン返済額一覧の数値は、住宅ローンのお申し込みやご融資をお約束するものではございません。
物件を見たい、物件や住環境の詳しい情報やローン相談など、
お問い合わせ先
株式会社ハウスネットパートナー 越谷店

掲載情報の著作権は提供元企業等に帰属します。
Copyright:(C) 2025 LIFULL Co.,Ltd.
アプリで簡単 物件探し 大手不動産サイトの情報から一括検!プッシュ通知で物件を見逃さない
App Storeからダウンロード Google Playで手に入れよう QRコード