アプリで簡単 物件探し 通知 共有 アプリならではの機能を使ってみる
新築一戸建て

埼玉県草加市遊馬町 見沼代親水公園駅 新築一戸建て・分譲住宅

情報提供元
LIFULL HOME'S
埼玉県草加市遊馬町 見沼代親水公園駅 新築一戸建て・分譲住宅
価格 4980万円
交通
所在地 埼玉県草加市遊馬町周辺地図
間取り 4LDK
建物面積 99.57m2 土地面積 150.9m2(実測)
築年月 2025年12月 築年数 新築
おすすめポイント
駐車場2台分
お問い合わせ先
エムイーPLUS城東 株式会社
物件を見たい、物件や住環境の詳しい情報やローン相談など、
お問い合わせ先
エムイーPLUS城東 株式会社

詳細情報

価格 4980万円
所在地 埼玉県草加市遊馬町周辺地図
交通
  • 日暮里舎人ライナー 見沼代親水公園駅 徒歩15分乗換案内
  • 日暮里舎人ライナー 舎人駅 徒歩22分乗換案内
間取り 4LDK 築年月(築年数) 2025年12月新築
建物面積 99.57m2 建物構造・規模 木造2階建
土地面積 150.9m2(実測) 土地権利 所有権
私道面積 借地期間・地代
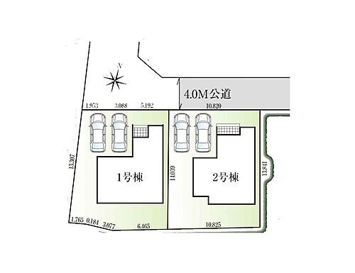
接道状況 北4m公道 一方道路
セットバック 駐車場 空有 (2台) 無料
用途地域 1種中高 都市計画 市街化区域
建ぺい率/容積率 60%/160% 現況 未完成
地目 宅地 引渡可能時期 2026年1月上旬
情報提供元 LIFULL HOME'S [1230340080209] 情報公開日
情報更新日 次回更新予定日 2025年11月23日

設備など

1種低層地域 - 即入居可 - 売主・代理 -
駐車2台以上 平屋 - 本下水
都市ガス カウンターキッチン 床暖房 -
ウォークインクローゼット バリアフリー -
設備 上水道・都市ガス・本下水・バス・トイレ別・シャワー・コンロ2口以上・システムキッチン・追焚機能・床下収納・ウォークインクローゼット・室内洗濯機置き場・バルコニー・フローリング・バイク置き場・モニタ付インターホン・温水洗浄便座・カウンターキッチン・クローゼット・シューズボックス・照明器具・オートバス
リフォーム履歴 -
リノベーション履歴 -
備考 【物件周辺の生活情報】
・学校
草加市立新里小学校(840m)、草加市立両新田中学校(1,210m)
・その他施設
総合病院(2,020m)
法22条区域 宅地造成等工事規制区域 容積率:前面道路幅員制限 景観法 農地法  【設備・特記事項備考】専用バス・専用トイレ・耐震構造・全居室収納
建築確認:有/NO.第HPA-25-10312-1号
国土法届出:不要
販売戸数:1戸
特記事項 駐車場2台分

省エネ性能

エネルギー消費性能 -
断熱性能 -
目安光熱費 -

埼玉県草加市遊馬町 周辺地図情報

地図
※地図上に表示される物件の位置は付近住所に所在することを表すものであり、実際の物件所在地とは異なる場合がございます。
   正確な物件所在地は、取扱い不動産会社にお問い合わせください。
物件を見たい、物件や住環境の詳しい情報やローン相談など、
お問い合わせ先
エムイーPLUS城東 株式会社

不動産会社情報

お問い合わせ先 商号:エムイーPLUS城東 株式会社
免許番号:東京都知事(3)第95782号
所在地:東京都足立区南花畑2丁目7-8
取引態様:媒介
管理コード:80209
所属協会など:(公社)首都圏不動産公正取引協議会、(公社)全日本不動産協会東京都本部
共有する
QRコード

お電話でのお問い合わせ

電話をかける(携帯・PHS可)
お問い合わせダイヤル
通話無料0037-634-68370
営業時間 09:00~21:00 (定休日:年中無休)
音声案内に従って数字を入力
お問い合わせ番号
28526-2976
不動産会社につながります
不動産会社のスタッフと
直接電話で話せます。
※不動産会社がお電話に出られなかった場合、株式会社LIFULLは電話会社が提供するサービスを介してお客様の発信者番号を受領後、折り返し専用の電話番号を発番してお問合せの不動産会社に通知します(お客様の発信者番号がお問合せの不動産会社に通知されることはございません)
※光IP電話、及びIP電話からはご利用になれません
※0037で始まる電話番号に携帯電話からお問合せいただいた方には、ショートメッセージ(SMS)によるお問合せ完了通知をお届けする場合があります
物件を見たい、物件や住環境の詳しい情報やローン相談など、
お問い合わせ先
エムイーPLUS城東 株式会社

草加市の暮らしデータ

人口などの統計情報

世帯数 111692世帯
人口総数 251219人
転入者数 12986人
転入率(人口1000人当たり)
51.69人
転出者数 11161人
転出率(人口1000人当たり)
44.43人
土地平均価格
住宅地
154794円/m2
商業地
228500円/m2

結婚・育児の助成金

子育て関連の独自の取り組み (1)0歳から15歳までの子どもの育ちを園・学校・家庭・地域が共に支える、一人ひとりを大切にする幼保小中を一貫した教育の推進。(2)そうか子育て応援・情報サイト「ぼっくるん」で、子育て関連の行政情報、イベント情報、遊び場や預け先、さらに子育てを応援している団体・個人等幅広く紹介。(3)出産一時金を受け取ることができる市町村民税非課税世帯の妊産婦に対し、実際の出産費用が出産一時金の額を上回った場合、差額を助成する入院助産制度を拡充。
出産祝い あり
公立保育所数 18所(うち0歳児保育を実施している保育所:13所)
私立保育所数 21所(うち0歳児保育を実施している保育所:17所)
保育所入所待機児童数 24人
認定こども園数 2園 預かり保育実施園数 公立:- 私立:15園
学校給食 【小学校】完全給食【中学校】完全給食
公立中学校の学校選択制 未実施
子ども・学生等医療費助成<通院>対象年齢 18歳3月末まで 子ども・学生等医療費助成<入院>対象年齢 18歳3月末まで

草加市の治安・ごみ収集情報

公共料金・インフラ

ガス料金(22m3使用した場合の月額) 東京瓦斯株式会社(東京地区等)3926円
東彩ガス株式会社(越谷・春日部地区)4893円
水道料金(口径20mmで20m3の月額) 草加市2475円
下水道料金(20m3を使用した場合の月額) 草加市1947円
下水道普及率 98.1%

安心・安全

建物火災出火件数 37件
人口10000人当たり
1.49件
刑法犯認知件数 2122件
人口1000人当たり
8.55件
ハザード・防災マップ あり

医療

一般病院総数 6ヶ所
一般診療所総数 134ヶ所
小児科医師数 35人
小児人口10000人当たり
12.72人
産婦人科医師数 7人
15~49歳女性人口1万人当たり
1.38人
介護保険料基準額(月額) 5980円

ごみ

家庭ごみ収集(可燃ごみ) 無料
備考
-
家庭ごみの分別方式 4分別21種〔可燃ごみ 不燃ごみ 有害ごみ(ライター、スプレー缶、蛍光灯、乾電池、水銀体温計) 資源物(飲料用のびん、かん、ペットボトル、古紙類[新聞紙、雑誌、紙パック、チラシ類、段ボール類、厚紙、カタログ、コピー用紙、本、牛乳パック]、雑紙類)〕 拠点回収:使用済小型家電 古着 牛乳パック 乾電池 家庭用廃食油 せともの類
家庭ごみの戸別収集 未実施
粗大ごみ収集 あり
備考
有料。事前申込制。品目により処理手数料が異なる。
生ごみ処理機助成金制度 あり
上限金額
30000円
上限比率
50.0%

草加市の住まいの給付金

新築購入

利子補給制度 なし
補助/助成金制度 なし
暮らしデータ提供元:生活ガイド.com
※行政機関により公表していない地域及びデータがございます。東京23区以外の政令指定都市は、市全体のデータとして表示しています。
※提供データには細心の注意を払っておりますが、調査後に変更がある場合があります。 最新の情報につきましては各市区役所までお問い合わせいただくか、自治体HPなどをご確認ください。
OCN×ドコモ光新規お申込みで合計最大137,280円相当おトク!特典の内訳・適用条件など詳細はこちら

草加市内の各駅の住みやすさ

住宅ローンの返済額一覧

物件価格 4980万円に対して、年率 で、頭金 の場合
↓ボーナス 35年間 30年間 25年間 20年間 15年間 10年間
0万円 116,294円/月 134,036円/月 158,892円/月 196,194円/月 258,390円/月 382,822円/月
5万円 107,208円/月 125,061円/月 150,025円/月 187,435円/月 249,739円/月 374,277円/月
10万円 98,123円/月 116,085円/月 141,158円/月 178,677円/月 241,087円/月 365,731円/月
15万円 89,037円/月 107,109円/月 132,291円/月 169,918円/月 232,436円/月 357,186円/月
20万円 79,952円/月 98,134円/月 123,425円/月 161,159円/月 223,784円/月 348,641円/月
25万円 70,866円/月 89,158円/月 114,558円/月 152,400円/月 215,133円/月 340,096円/月
30万円 61,781円/月 80,182円/月 105,691円/月 143,642円/月 206,481円/月 331,551円/月
支払い利息合計 4,065,250円~ 3,471,680円~ 2,883,000円~ 2,299,040円~ 1,719,530円~ 1,144,860円~
※元利均等返済方式で試算しています。 「円」の単位以下の端数金額は「切り捨て」として計算しております。
※金利は、固定金利として計算しております。
※上記の住宅ローン返済額一覧は、あくまで試算であり、将来の金利動向により、実際のご返済額とは異なります。
※ボーナス支払総額が総支払額の50%を超えている場合、上記の表では「ローン不可」となります。
※住宅ローン返済額一覧の数値は、住宅ローンのお申し込みやご融資をお約束するものではございません。
物件を見たい、物件や住環境の詳しい情報やローン相談など、
お問い合わせ先
エムイーPLUS城東 株式会社

掲載情報の著作権は提供元企業等に帰属します。
Copyright:(C) 2025 LIFULL Co.,Ltd.
アプリで簡単 物件探し 大手不動産サイトの情報から一括検!プッシュ通知で物件を見逃さない
App Storeからダウンロード Google Playで手に入れよう QRコード