アプリで簡単 物件探し 通知 共有 アプリならではの機能を使ってみる
新築一戸建て

埼玉県上尾市二ツ宮 上尾駅 新築一戸建て・分譲住宅

情報提供元
LIFULL HOME'S
埼玉県上尾市二ツ宮 上尾駅 新築一戸建て・分譲住宅
価格 3998万円
交通
所在地 埼玉県上尾市二ツ宮周辺地図
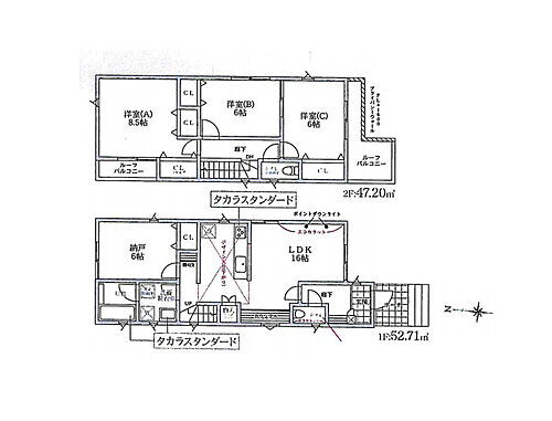
間取り 3LDK
建物面積 102.88m2(壁芯) 土地面積 113.15m2(実測)
築年月 2025年8月 築年数 新築
おすすめポイント
上尾市二ツ宮 新築一戸建て 3LDK 南東向き 駐車2台 土間収納 パントリー 食器洗浄乾燥機 WIC3カ所 リビングスルー階段 JR高崎線 上尾駅 東小学校 上尾中学校
駐車場2台分・24時間ゴミ出し可・設計住宅性能評価取得・長期優良住宅・建設住宅性能評価取得
物件を見たい、物件や住環境の詳しい情報やローン相談など、
お問い合わせ先
株式会社こもれびハウス

詳細情報

価格 3998万円
所在地 埼玉県上尾市二ツ宮周辺地図
交通
間取り 3LDK(LDK 18.7 洋 11.2・6・5.2) 築年月(築年数) 2025年8月新築
建物面積 102.88m2(壁芯) 建物構造・規模 木造2階建
土地面積 113.15m2(実測) 土地権利 所有権
私道面積 借地期間・地代
接道状況 南東4.5m公道 一方道路
セットバック 駐車場 空有 (2台) 無料
用途地域 1種住居 都市計画 市街化区域
建ぺい率/容積率 60%/200% 現況 空室
地目 宅地 引渡可能時期 即時
情報提供元 LIFULL HOME'S [1503460003397] 情報公開日
情報更新日 次回更新予定日 2025年11月15日

設備など

1種低層地域 - 即入居可 売主・代理 -
駐車2台以上 平屋 - 本下水
都市ガス カウンターキッチン 床暖房 -
ウォークインクローゼット バリアフリー -
設備 上水道・都市ガス・本下水・シャワー・システムキッチン・給湯・追焚機能・床下収納・ウォークインクローゼット・室内洗濯機置き場・バルコニー・フローリング・駐輪場・バイク置き場・モニタ付インターホン・温水洗浄便座・カウンターキッチン・浴室乾燥機・洗面所独立・食器洗浄乾燥機・クローゼット・シューズボックス・シューズインクローク
リフォーム履歴 -
リノベーション履歴 -
備考 【物件周辺の生活情報】
・学校
上尾市立東町小学校(861m)、上尾市立上尾中学校(1,807m)
・買い物
スーパー(708m)、コンビニ(166m)、ドラッグストア(427m)、商店街(2,185m)
・その他施設
総合病院(1,767m)、公園(1,745m)、銀行(913m)、ひかわ幼稚園(321m)
【Komorebi house】ご成約家電プレゼントキャンペーン♪ ~対象物件・条件はスタッフまでご確認ください~  お問い合わせは「0120-788-767」まで!  お問合せからご来店いただいた方にAmazonギフト3 000円分プレゼント♪  【宅地建物取引士】・【大手ハウスメーカー経験者】・【住宅ローンアドバイザー】・【不動産歴の長い経験豊富なスタッフ】がサポートさせていただきます! 【設備・特記事項備考】専用バス・専用トイレ・耐震構造・全居室収納
建築確認:有/NO.第25UDI1W建00417号
国土法届出:不要/南東
特記事項 駐車場2台分・24時間ゴミ出し可・設計住宅性能評価取得・長期優良住宅・建設住宅性能評価取得

省エネ性能

エネルギー消費性能 -
断熱性能 -
目安光熱費 -

埼玉県上尾市二ツ宮 周辺地図情報

地図
※地図上に表示される物件の位置は付近住所に所在することを表すものであり、実際の物件所在地とは異なる場合がございます。
   正確な物件所在地は、取扱い不動産会社にお問い合わせください。
物件を見たい、物件や住環境の詳しい情報やローン相談など、
お問い合わせ先
株式会社こもれびハウス

不動産会社情報

お問い合わせ先 商号:株式会社こもれびハウス
免許番号:埼玉県知事(01)第025102号
所在地:埼玉県上尾市泉台2丁目6-9
取引態様:媒介
管理コード:3397
所属協会など:(公財)東日本不動産流通機構、(公社)首都圏不動産公正取引協議会、(公社)埼玉県宅地建物取引業協会
共有する
QRコード

お電話でのお問い合わせ

電話をかける(携帯・PHS可)
お問い合わせダイヤル
通話無料0037-634-24768
営業時間 09:00~20:00 (定休日:毎週水曜日)
音声案内に従って数字を入力
お問い合わせ番号
27472-2971
不動産会社につながります
不動産会社のスタッフと
直接電話で話せます。
※不動産会社がお電話に出られなかった場合、株式会社LIFULLは電話会社が提供するサービスを介してお客様の発信者番号を受領後、折り返し専用の電話番号を発番してお問合せの不動産会社に通知します(お客様の発信者番号がお問合せの不動産会社に通知されることはございません)
※光IP電話、及びIP電話からはご利用になれません
※0037で始まる電話番号に携帯電話からお問合せいただいた方には、ショートメッセージ(SMS)によるお問合せ完了通知をお届けする場合があります
物件を見たい、物件や住環境の詳しい情報やローン相談など、
お問い合わせ先
株式会社こもれびハウス

上尾市の暮らしデータ

人口などの統計情報

世帯数 96347世帯
人口総数 230167人
転入者数 10136人
転入率(人口1000人当たり)
44.04人
転出者数 8904人
転出率(人口1000人当たり)
38.68人
土地平均価格
住宅地
114716円/m2
商業地
346333円/m2

結婚・育児の助成金

子育て関連の独自の取り組み (1)民間保育所の設備整備を支援。(2)18歳年度末までの子どもの医療費を助成。(3)多子世帯に対する小・中学校の学校給食費の負担軽減。(4)ひとり親家庭や生活困窮者学習支援(模試受験料、大学受験料を一部助成)。(5)ヤングケアラーコーディネーターの配置。(6)子どもの読書活動の推進(学校×図書館の連携)。(7)子育てガイドブックの発行。(8)子ども・子育て情報をワンストップで紹介する「子ども・子育て応援ページ」を公開。(9)あげおリトルベビーハンドブック(小さく生まれた赤ちゃんと家族の母子健康手帳のサブブック)、オンライン母子保健相談・カウンセリングの開始。(10)from AGE-0(0歳から輝くまち)をスローガンに子育てのまちのプロモーション。
出産祝い なし
公立保育所数 12所(うち0歳児保育を実施している保育所:11所)
私立保育所数 27所(うち0歳児保育を実施している保育所:27所)
保育所入所待機児童数 6人
認定こども園数 5園 預かり保育実施園数 公立:- 私立:16園
学校給食 【小学校】完全給食【中学校】完全給食
公立中学校の学校選択制 一部実施(特定地域選択制)
子ども・学生等医療費助成<通院>対象年齢 18歳3月末まで 子ども・学生等医療費助成<入院>対象年齢 18歳3月末まで

上尾市の治安・ごみ収集情報

公共料金・インフラ

ガス料金(22m3使用した場合の月額) 東京瓦斯株式会社(東京地区等)3926円
水道料金(口径20mmで20m3の月額) 上尾市2970円
下水道料金(20m3を使用した場合の月額) 上尾市2156円
下水道普及率 85.5%

安心・安全

建物火災出火件数 28件
人口10000人当たり
1.23件
刑法犯認知件数 1385件
人口1000人当たり
6.10件
ハザード・防災マップ あり

医療

一般病院総数 4ヶ所
一般診療所総数 123ヶ所
小児科医師数 25人
小児人口10000人当たり
9.49人
産婦人科医師数 14人
15~49歳女性人口1万人当たり
3.16人
介護保険料基準額(月額) 6297円

ごみ

家庭ごみ収集(可燃ごみ) 無料
備考
一時多量ごみ等はごみ集積所に出さず、原則排出者本人または二親等以内の親族が直接環境センターへ搬入(有料)。もしくは一般廃棄物収集運搬業許可業者に依頼。
家庭ごみの分別方式 6分別10種〔可燃ごみ(プラスチックを含む) 金属・陶器(充電式小型家電) ペットボトル 飲料缶・スプレー缶 ガラス 布類・紙類(新聞紙、雑誌・雑紙、段ボール、布類)〕 拠点回収:有害ごみ(乾電池 蛍光管・水銀体温計) 使い捨てライター 小型家電 牛乳パック
家庭ごみの戸別収集 一部実施(【ふれあい収集】高齢者・障害者を対象)
粗大ごみ収集 あり
備考
有料。事前申込制(電話、電子申請)。月3点まで。1点につき1m以内250円、1m超2m以内500円、2m超3m以内750円、処理困難物(スプリング入マットレス、ソファー)は、 1点につき1,000円加算。
生ごみ処理機助成金制度 あり
上限金額
20000円
上限比率
50.0%

上尾市の住まいの給付金

新築購入

利子補給制度 なし
補助/助成金制度 なし
暮らしデータ提供元:生活ガイド.com
※行政機関により公表していない地域及びデータがございます。東京23区以外の政令指定都市は、市全体のデータとして表示しています。
※提供データには細心の注意を払っておりますが、調査後に変更がある場合があります。 最新の情報につきましては各市区役所までお問い合わせいただくか、自治体HPなどをご確認ください。
OCN×ドコモ光新規お申込みで合計最大137,280円相当おトク!特典の内訳・適用条件など詳細はこちら

上尾市内の各駅の住みやすさ

住宅ローンの返済額一覧

物件価格 3998万円に対して、年率 で、頭金 の場合
↓ボーナス 35年間 30年間 25年間 20年間 15年間 10年間
0万円 90,802円/月 104,656円/月 124,063円/月 153,189円/月 201,752円/月 298,908円/月
5万円 81,717円/月 95,680円/月 115,196円/月 144,430円/月 193,100円/月 290,363円/月
10万円 72,631円/月 86,705円/月 106,330円/月 135,671円/月 184,449円/月 281,818円/月
15万円 63,546円/月 77,729円/月 97,463円/月 126,913円/月 175,797円/月 273,273円/月
20万円 54,461円/月 68,753円/月 88,596円/月 118,154円/月 167,146円/月 264,728円/月
25万円 ローン不可 59,778円/月 79,729円/月 109,395円/月 158,495円/月 256,183円/月
30万円 ローン不可 ローン不可 70,863円/月 100,637円/月 149,843円/月 247,638円/月
支払い利息合計 3,171,750円~ 2,711,880円~ 2,254,600円~ 1,797,840円~ 1,344,690円~ 895,300円~
※元利均等返済方式で試算しています。 「円」の単位以下の端数金額は「切り捨て」として計算しております。
※金利は、固定金利として計算しております。
※上記の住宅ローン返済額一覧は、あくまで試算であり、将来の金利動向により、実際のご返済額とは異なります。
※ボーナス支払総額が総支払額の50%を超えている場合、上記の表では「ローン不可」となります。
※住宅ローン返済額一覧の数値は、住宅ローンのお申し込みやご融資をお約束するものではございません。
物件を見たい、物件や住環境の詳しい情報やローン相談など、
お問い合わせ先
株式会社こもれびハウス

掲載情報の著作権は提供元企業等に帰属します。
Copyright:(C) 2025 LIFULL Co.,Ltd.
アプリで簡単 物件探し 大手不動産サイトの情報から一括検!プッシュ通知で物件を見逃さない
App Storeからダウンロード Google Playで手に入れよう QRコード