アプリで簡単 物件探し 通知 共有 アプリならではの機能を使ってみる
新築一戸建て

埼玉県深谷市榛沢新田947-1他 岡部駅 新築一戸建て・分譲住宅

情報提供元
LIFULL HOME'S
周辺環境
価格 2790万円
交通
所在地 埼玉県深谷市榛沢新田947-1他周辺地図
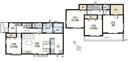
間取り 4LDK
建物面積 94.81m2 土地面積 270.74m2(公簿)
築年月 2026年3月 築年数 新築
おすすめポイント
\スムーズな生活動線が魅力の平屋/ ▽安心・快適に長く住み続けられる長期優良住宅 ▽耐震+制震の地震に強い家 ▽シャッター標準装備 ▽夏涼しく、冬暖かいZEH水準
制震構造・設計住宅性能評価取得・長期優良住宅・建設住宅性能評価取得・角地
物件を見たい、物件や住環境の詳しい情報やローン相談など、
お問い合わせ先
でざいん不動産株式会社

詳細情報

価格 2790万円
所在地 埼玉県深谷市榛沢新田947-1他周辺地図
交通
間取り 4LDK(LDK 17 洋 6・5.2×2・4.5) 築年月(築年数) 2026年3月新築
建物面積 94.81m2 建物構造・規模 木造平屋建て
土地面積 270.74m2(公簿) 土地権利 所有権
私道面積 借地期間・地代
接道状況 南4.8m公道 東4m公道 角地
セットバック 駐車場 空有 無料
用途地域 無指定 都市計画 調整区域
建ぺい率/容積率 60%/200% 現況 未完成
地目 宅地 引渡可能時期 2026年4月中旬
情報提供元 LIFULL HOME'S [1497150002715] 情報公開日
情報更新日 次回更新予定日 2025年12月19日

設備など

1種低層地域 - 即入居可 - 売主・代理 -
駐車2台以上 - 平屋 本下水 -
都市ガス - カウンターキッチン 床暖房 -
ウォークインクローゼット バリアフリー -
設備 上水道・プロパンガス・浄化槽・ガスコンロ可・コンロ2口以上・システムキッチン・追焚機能・床下収納・ウォークインクローゼット・フローリング・モニタ付インターホン・温水洗浄便座・カウンターキッチン・浴室乾燥機・食器洗浄乾燥機・クローゼット・オートバス
リフォーム履歴 -
リノベーション履歴 -
備考 【物件周辺の生活情報】
・学校
深谷市立榛沢小学校(695m)、深谷市立岡部中学校(2,103m)
・買い物
スーパー(2,192m)、コンビニ(831m)、ドラッグストア(2,353m)、商店街(4,726m)
・その他施設
「 岡部」駅(2,016m)
《住まいのことなら【楽ラク×不動産】でざいん不動産へ!》  ▼当店は宅建士、FPなどの不動産や資金の将来設計に関する有資格者がおり、お客様に寄り添った住まい探しができます。 ▼自己資金0円からの家探しできます。 ▼住宅ローンに自信あり!過去にお断りされた方ご相談ください。 ▼当日、平日、時間外もご見学・ご案内可能です。 見学予約は0120-25-1373【通話無料】までお気軽にお電話ください。 【設備・特記事項備考】専用バス・専用トイレ・耐震構造・全居室収納
建築確認:有/NO.第25UDI1W建08940号
国土法届出:不要/南
特記事項 制震構造・設計住宅性能評価取得・長期優良住宅・建設住宅性能評価取得・角地

省エネ性能

エネルギー消費性能 -
断熱性能 -
目安光熱費 -

埼玉県深谷市榛沢新田947-1他 周辺地図情報

地図
※地図上に表示される物件の位置は付近住所に所在することを表すものであり、実際の物件所在地とは異なる場合がございます。
   正確な物件所在地は、取扱い不動産会社にお問い合わせください。
物件を見たい、物件や住環境の詳しい情報やローン相談など、
お問い合わせ先
でざいん不動産株式会社

不動産会社情報

お問い合わせ先 商号:でざいん不動産株式会社
免許番号:埼玉県知事(01)第024643号
所在地:埼玉県熊谷市中央2丁目251
取引態様:媒介
管理コード:2715
所属協会など:(公財)東日本不動産流通機構、(公社)首都圏不動産公正取引協議会、(公社)埼玉県宅地建物取引業協会
共有する
QRコード

お電話でのお問い合わせ

電話をかける(携帯・PHS可)
お問い合わせダイヤル
通話無料0037-634-43683
営業時間 10:00~19:00 (定休日:水曜日)
音声案内に従って数字を入力
お問い合わせ番号
93363-2974
不動産会社につながります
不動産会社のスタッフと
直接電話で話せます。
※不動産会社がお電話に出られなかった場合、株式会社LIFULLは電話会社が提供するサービスを介してお客様の発信者番号を受領後、折り返し専用の電話番号を発番してお問合せの不動産会社に通知します(お客様の発信者番号がお問合せの不動産会社に通知されることはございません)
※光IP電話、及びIP電話からはご利用になれません
※0037で始まる電話番号に携帯電話からお問合せいただいた方には、ショートメッセージ(SMS)によるお問合せ完了通知をお届けする場合があります
物件を見たい、物件や住環境の詳しい情報やローン相談など、
お問い合わせ先
でざいん不動産株式会社

深谷市の暮らしデータ

人口などの統計情報

世帯数 55713世帯
人口総数 141419人
転入者数 5356人
転入率(人口1000人当たり)
37.87人
転出者数 4361人
転出率(人口1000人当たり)
30.84人
土地平均価格
住宅地
35311円/m2
商業地
70850円/m2

結婚・育児の助成金

子育て関連の独自の取り組み -
出産祝い あり
公立保育所数 2所(うち0歳児保育を実施している保育所:2所)
私立保育所数 33所(うち0歳児保育を実施している保育所:33所)
保育所入所待機児童数 0人
認定こども園数 3園 預かり保育実施園数 公立:7園 私立:1園
学校給食 【小学校】完全給食【中学校】完全給食
公立中学校の学校選択制 未実施
子ども・学生等医療費助成<通院>対象年齢 18歳3月末まで 子ども・学生等医療費助成<入院>対象年齢 18歳3月末まで

深谷市の治安・ごみ収集情報

公共料金・インフラ

ガス料金(22m3使用した場合の月額) 東京瓦斯株式会社(東京地区等)3926円
武州瓦斯株式会社4281円
埼玉ガス株式会社4852円
水道料金(口径20mmで20m3の月額) 深谷市2948円
下水道料金(20m3を使用した場合の月額) 深谷市3520円
下水道普及率 62.1%

安心・安全

建物火災出火件数 35件
人口10000人当たり
2.48件
刑法犯認知件数 876件
人口1000人当たり
6.20件
ハザード・防災マップ あり

医療

一般病院総数 8ヶ所
一般診療所総数 92ヶ所
小児科医師数 18人
小児人口10000人当たり
11.37人
産婦人科医師数 10人
15~49歳女性人口1万人当たり
3.87人
介護保険料基準額(月額) 6100円

ごみ

家庭ごみ収集(可燃ごみ) 無料
備考
-
家庭ごみの分別方式 5分別12種〔燃やせるごみ 燃やせないごみ 使用済小型家電 有害ごみ 資源物(かん類、びん類、ペットボトル、紙類[新聞、雑誌、ダンボール、雑紙、紙パック])〕
家庭ごみの戸別収集 未実施
粗大ごみ収集 あり
備考
週1回。
生ごみ処理機助成金制度 なし
上限金額
-
上限比率
-

深谷市の住まいの給付金

新築購入

利子補給制度 なし
補助/助成金制度 なし
暮らしデータ提供元:生活ガイド.com
※行政機関により公表していない地域及びデータがございます。東京23区以外の政令指定都市は、市全体のデータとして表示しています。
※提供データには細心の注意を払っておりますが、調査後に変更がある場合があります。 最新の情報につきましては各市区役所までお問い合わせいただくか、自治体HPなどをご確認ください。
OCN×ドコモ光新規お申込みで合計最大137,280円相当おトク!特典の内訳・適用条件など詳細はこちら

深谷市内の各駅の住みやすさ

他のエリアから探す

深谷市の詳細地域から新築一戸建て物件を探す

荒川上野台岡里小前田上柴町西上柴町東萱場国済寺栄町下手計宿根田所町田中田谷天神町西大沼西島針ヶ谷榛沢新田東大沼東方東方町普済寺武蔵野

近辺の市区から探す

邑楽郡大泉町熊谷市本庄市児玉郡美里町大里郡寄居町

周辺の駅から探す

高崎線
行田熊谷籠原深谷岡部本庄神保原新町倉賀野
上越新幹線
東京上野大宮熊谷本庄早稲田高崎|上毛高原

住宅ローンの返済額一覧

物件価格 2790万円に対して、年率 で、頭金 の場合
↓ボーナス 35年間 30年間 25年間 20年間 15年間 10年間
0万円 59,445円/月 68,514円/月 81,219円/月 100,286円/月 132,079円/月 195,683円/月
5万円 50,359円/月 59,538円/月 72,352円/月 91,528円/月 123,427円/月 187,138円/月
10万円 41,274円/月 50,563円/月 63,485円/月 82,769円/月 114,776円/月 178,593円/月
15万円 32,188円/月 41,587円/月 54,619円/月 74,010円/月 106,124円/月 170,048円/月
20万円 ローン不可 ローン不可 45,752円/月 65,252円/月 97,473円/月 161,503円/月
25万円 ローン不可 ローン不可 ローン不可 56,493円/月 88,821円/月 152,957円/月
30万円 ローン不可 ローン不可 ローン不可 ローン不可 80,170円/月 144,412円/月
支払い利息合計 2,077,540円~ 1,774,400円~ 1,476,050円~ 1,179,120円~ 883,550円~ 588,180円~
※元利均等返済方式で試算しています。 「円」の単位以下の端数金額は「切り捨て」として計算しております。
※金利は、固定金利として計算しております。
※上記の住宅ローン返済額一覧は、あくまで試算であり、将来の金利動向により、実際のご返済額とは異なります。
※ボーナス支払総額が総支払額の50%を超えている場合、上記の表では「ローン不可」となります。
※住宅ローン返済額一覧の数値は、住宅ローンのお申し込みやご融資をお約束するものではございません。
物件を見たい、物件や住環境の詳しい情報やローン相談など、
お問い合わせ先
でざいん不動産株式会社

掲載情報の著作権は提供元企業等に帰属します。
Copyright:(C) 2025 LIFULL Co.,Ltd.
アプリで簡単 物件探し 大手不動産サイトの情報から一括検!プッシュ通知で物件を見逃さない
App Storeからダウンロード Google Playで手に入れよう QRコード