アプリで簡単 物件探し 通知 共有 アプリならではの機能を使ってみる
新築一戸建て

埼玉県所沢市大字下安松 新秋津駅 新築一戸建て・分譲住宅

情報提供元
LIFULL HOME'S
埼玉県所沢市大字下安松 新秋津駅 新築一戸建て・分譲住宅
価格 2890万円
交通
所在地 埼玉県所沢市大字下安松周辺地図
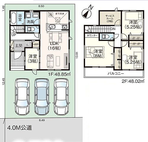
間取り 3LDK
建物面積 72.04m2(内法) 土地面積 91.04m2(実測)
築年月 2025年6月 築年数 新築
おすすめポイント
ソライエなら貯金0円OK!家具代もローンOK♪即日内覧はお電話から♪他物件もあわせて紹介頂けます!オプション工事に太陽光パネル、オール電化も一緒にいかがですか?資料請求のみでのお問い合わせも大歓迎です!
設計住宅性能評価取得・建設住宅性能評価取得
物件を見たい、物件や住環境の詳しい情報やローン相談など、
お問い合わせ先
株式会社ソライエ

詳細情報

価格 2890万円
所在地 埼玉県所沢市大字下安松周辺地図
交通
間取り 3LDK(LDK 14 洋 6・4×2) 築年月(築年数) 2025年6月新築
建物面積 72.04m2(内法) 建物構造・規模 木造2階建
土地面積 91.04m2(実測) 土地権利 所有権
私道面積 242m2 借地期間・地代
接道状況 南6m私道接面9.3m位置指定あり 一方道路 駐車場 空有 (1台) 無料
用途地域 1種低層 都市計画 市街化区域
建ぺい率/容積率 50%/80% 現況 空室
地目 宅地 引渡可能時期 即時
情報提供元 LIFULL HOME'S [1520380000836] 情報公開日
情報更新日 次回更新予定日 2025年11月23日

設備など

1種低層地域 即入居可 売主・代理 -
駐車2台以上 - 平屋 - 本下水
都市ガス カウンターキッチン 床暖房 -
ウォークインクローゼット - バリアフリー -
設備 上水道・都市ガス・本下水・バス・トイレ別・ガスコンロ可・コンロ2口以上・システムキッチン・追焚機能・床下収納・室内洗濯機置き場・バルコニー・モニタ付インターホン・温水洗浄便座・カウンターキッチン・浴室乾燥機・洗面所独立・クローゼット・シューズボックス
リフォーム履歴 -
リノベーション履歴 -
備考 【物件周辺の生活情報】
・学校
所沢市立安松小学校(1,033m)、所沢市立安松中学校(1,587m)
・買い物
スーパー(2,258m)、コンビニ(2,257m)、ドラッグストア(2,400m)、商店街(3,865m)
・その他施設
総合病院(3,903m)、公園(1,995m)、けやき幼稚園(2,088m)
所沢市の物件探しは、丁寧、迅速対応のソライエへお任せください!新規物件の情報をイチ早くご紹介できます! ■『今週末に見てみたい』などのご予約もお電話ください!近隣の物件もまとめてご覧になれますので、購入されたお客様から大変ご好評をいただいております! 【設備・特記事項備考】専用バス・専用トイレ・耐震構造・全居室収納
建築確認:有/NO.第SJK-KX245125690号
国土法届出:不要
販売戸数:1戸
述べ床面積:72.04m2
法令等制限:22条区域
特記事項 設計住宅性能評価取得・建設住宅性能評価取得

省エネ性能

エネルギー消費性能 -
断熱性能 -
目安光熱費 -

埼玉県所沢市大字下安松 周辺地図情報

地図
※地図上に表示される物件の位置は付近住所に所在することを表すものであり、実際の物件所在地とは異なる場合がございます。
   正確な物件所在地は、取扱い不動産会社にお問い合わせください。
物件を見たい、物件や住環境の詳しい情報やローン相談など、
お問い合わせ先
株式会社ソライエ

不動産会社情報

お問い合わせ先 商号:株式会社ソライエ
免許番号:埼玉県知事(01)第025302号
所在地:埼玉県狭山市中央1丁目46-6 狭山台桂ビル1F
取引態様:媒介
管理コード:836
所属協会など:(公社)首都圏不動産公正取引協議会、(公社)埼玉県宅地建物取引業協会
共有する
QRコード

お電話でのお問い合わせ

電話をかける(携帯・PHS可)
お問い合わせダイヤル
通話無料0037-619-64490
営業時間 10:00~19:00 (定休日:毎週火曜日・水曜日)
音声案内に従って数字を入力
お問い合わせ番号
10823-2979
不動産会社につながります
不動産会社のスタッフと
直接電話で話せます。
※不動産会社がお電話に出られなかった場合、株式会社LIFULLは電話会社が提供するサービスを介してお客様の発信者番号を受領後、折り返し専用の電話番号を発番してお問合せの不動産会社に通知します(お客様の発信者番号がお問合せの不動産会社に通知されることはございません)
※光IP電話、及びIP電話からはご利用になれません
※0037で始まる電話番号に携帯電話からお問合せいただいた方には、ショートメッセージ(SMS)によるお問合せ完了通知をお届けする場合があります
物件を見たい、物件や住環境の詳しい情報やローン相談など、
お問い合わせ先
株式会社ソライエ

所沢市の暮らしデータ

人口などの統計情報

世帯数 152510世帯
人口総数 343529人
転入者数 15623人
転入率(人口1000人当たり)
45.48人
転出者数 14079人
転出率(人口1000人当たり)
40.98人
土地平均価格
住宅地
177192円/m2
商業地
416667円/m2

結婚・育児の助成金

子育て関連の独自の取り組み (1)大学との連携による「ところっこ・親子で楽しむ運動遊び」を実施。(2)「ところっこ子育てガイド」を配布。
出産祝い なし
公立保育所数 19所(うち0歳児保育を実施している保育所:10所)
私立保育所数 36所(うち0歳児保育を実施している保育所:36所)
保育所入所待機児童数 6人
認定こども園数 9園 預かり保育実施園数 公立:1園 私立:18園
学校給食 【小学校】完全給食【中学校】完全給食
公立中学校の学校選択制 未実施(所沢市区域外就学・指定校変更承認基準により、特例を認める場合あり)。
子ども・学生等医療費助成<通院>対象年齢 18歳3月末まで 子ども・学生等医療費助成<入院>対象年齢 18歳3月末まで

所沢市の治安・ごみ収集情報

公共料金・インフラ

ガス料金(22m3使用した場合の月額) 東京瓦斯株式会社(東京地区等)3926円
武州瓦斯株式会社4281円
大東ガス株式会社4335円
水道料金(口径20mmで20m3の月額) 所沢市2332円
下水道料金(20m3を使用した場合の月額) 所沢市1639円
下水道普及率 95.2%

安心・安全

建物火災出火件数 37件
人口10000人当たり
1.08件
刑法犯認知件数 1944件
人口1000人当たり
5.68件
ハザード・防災マップ あり

医療

一般病院総数 20ヶ所
一般診療所総数 225ヶ所
小児科医師数 62人
小児人口10000人当たり
16.41人
産婦人科医師数 36人
15~49歳女性人口1万人当たり
5.34人
介護保険料基準額(月額) 5634円

ごみ

家庭ごみ収集(可燃ごみ) 無料
備考
-
家庭ごみの分別方式 4分別12種〔燃やせるごみ 資源物(容器包装プラスチック、ペットボトル、びん・かん・スプレー缶、新聞、雑誌、雑がみ、段ボール、小型家電製品、古着・古布) 破砕ごみ類 有害ごみ〕集団資源回収:新聞、雑誌・雑がみ、段ボール、布類、スチール缶、アルミ缶、紙パック、生きびん
家庭ごみの戸別収集 一部実施(【ふれあい収集】毎週1回/要支援2以上の65歳以上の高齢者のみ及び障害者手帳2級以上の方のみの、身近な人の協力を得ることができない世帯が対象)
粗大ごみ収集 あり
備考
有料。事前申込制。納付済シール貼付し、収集日に排出。三分類定額制(品目により金額が異なる500円・1,000円・2,000円)。
生ごみ処理機助成金制度 なし
上限金額
-
上限比率
-

所沢市の住まいの給付金

新築購入

利子補給制度 なし
補助/助成金制度 なし
暮らしデータ提供元:生活ガイド.com
※行政機関により公表していない地域及びデータがございます。東京23区以外の政令指定都市は、市全体のデータとして表示しています。
※提供データには細心の注意を払っておりますが、調査後に変更がある場合があります。 最新の情報につきましては各市区役所までお問い合わせいただくか、自治体HPなどをご確認ください。
OCN×ドコモ光新規お申込みで合計最大137,280円相当おトク!特典の内訳・適用条件など詳細はこちら

所沢市内の各駅の住みやすさ

住宅ローンの返済額一覧

物件価格 2890万円に対して、年率 で、頭金 の場合
↓ボーナス 35年間 30年間 25年間 20年間 15年間 10年間
0万円 62,040円/月 71,506円/月 84,766円/月 104,666円/月 137,846円/月 204,228円/月
5万円 52,955円/月 62,530円/月 75,899円/月 95,907円/月 129,195円/月 195,683円/月
10万円 43,869円/月 53,554円/月 67,032円/月 87,148円/月 120,543円/月 187,138円/月
15万円 34,784円/月 44,579円/月 58,165円/月 78,390円/月 111,892円/月 178,593円/月
20万円 ローン不可 ローン不可 49,299円/月 69,631円/月 103,240円/月 170,048円/月
25万円 ローン不可 ローン不可 ローン不可 60,872円/月 94,589円/月 161,503円/月
30万円 ローン不可 ローン不可 ローン不可 ローン不可 85,937円/月 152,957円/月
支払い利息合計 2,167,860円~ 1,851,520円~ 1,540,150円~ 1,230,080円~ 921,610円~ 613,580円~
※元利均等返済方式で試算しています。 「円」の単位以下の端数金額は「切り捨て」として計算しております。
※金利は、固定金利として計算しております。
※上記の住宅ローン返済額一覧は、あくまで試算であり、将来の金利動向により、実際のご返済額とは異なります。
※ボーナス支払総額が総支払額の50%を超えている場合、上記の表では「ローン不可」となります。
※住宅ローン返済額一覧の数値は、住宅ローンのお申し込みやご融資をお約束するものではございません。
物件を見たい、物件や住環境の詳しい情報やローン相談など、
お問い合わせ先
株式会社ソライエ

掲載情報の著作権は提供元企業等に帰属します。
Copyright:(C) 2025 LIFULL Co.,Ltd.
アプリで簡単 物件探し 大手不動産サイトの情報から一括検!プッシュ通知で物件を見逃さない
App Storeからダウンロード Google Playで手に入れよう QRコード