アプリで簡単 物件探し 通知 共有 アプリならではの機能を使ってみる
新築一戸建て

大阪府羽曳野市南恵我之荘2 恵我ノ荘駅 新築一戸建て・分譲住宅

情報提供元
SUUMO
大阪府羽曳野市南恵我之荘2 恵我ノ荘駅 新築一戸建て・分譲住宅
価格 2998万円
交通
所在地 大阪府羽曳野市南恵我之荘2周辺地図
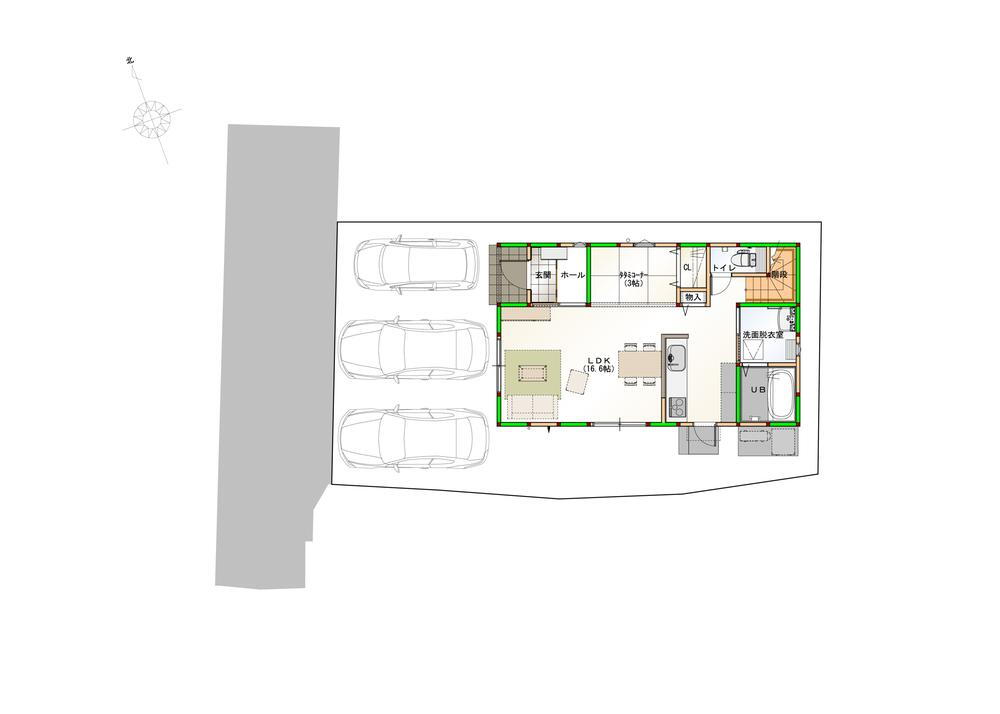
間取り 3LDK
建物面積 97.49m2(登記) 土地面積 121.43m2(登記)
築年月 2026年2月 築年数 新築
おすすめポイント
【建築中物件限定特典】■リビングエアコンプレゼント(契約期間:2026年4月30日まで)建築中物件ならこんなメリットも■希望エリアの人気物件を、早めに押さえられる■他エリアでいえとち本舗の実際の完成物件を見学できます【物件の特徴】■家事ラク設計で効率的な水回り動線■天候に左右されないインナーバルコニー■駐車スペース3台分【周辺環境の特徴】サンディ恵我之荘店 徒歩10分(768m)セブンイレブン羽曳野高鷲店m 徒歩6分(420m)気になったら「お気に入りに追加」で再検索不要に♪
セットバック済・駐車場3台分以上・オール電化・整形地・浴室1坪以上
お問い合わせ先
いえとち本舗 大阪本店(株)グリーンエナジー・ライフ
物件を見たい、物件や住環境の詳しい情報やローン相談など、
お問い合わせ先
いえとち本舗 大阪本店(株)グリーンエナジー・ライフ

詳細情報

価格 2998万円
所在地 大阪府羽曳野市南恵我之荘2周辺地図
交通
間取り 3LDK 築年月(築年数) 2026年2月新築
建物面積 97.49m2(登記) 建物構造・規模 木造2階建
土地面積 121.43m2(登記) 土地権利 所有権
私道面積 借地期間・地代
接道状況 西3.5m 駐車場
用途地域 2種中高 都市計画
建ぺい率/容積率 60%/200% 現況
地目 引渡可能時期 相談
情報提供元 SUUMO [060Z78321330] 情報公開日
情報更新日 次回更新予定日 随時

設備など

1種低層地域 - 即入居可 - 売主・代理
駐車2台以上 平屋 - 本下水
都市ガス - カウンターキッチン - 床暖房 -
ウォークインクローゼット バリアフリー -
設備 バルコニー・トイレ・収納スペース・洗面所・浴室乾燥機・ウォークインクローゼット・シャンプードレッサ・温水洗浄便座・システムキッチン・風呂・対面K・トイレ2ヶ所・床下収納・IHクッキングヒータ・浄水器・衣類乾燥機・食器洗浄乾燥機・複層ガラス・上水道・本下水・フローリング・太陽光システム・省エネ給湯器
リフォーム履歴 -
リノベーション履歴 -
備考 <物件名>南恵我之荘2(恵我ノ荘駅) 2998万円/<駐車場>カースペース/<土地権利>所有権/<間取り>3LDK/<その他制限事項>その際の価格は+100万円になります。 ※お客様の屋根を当社にお貸しいただき太陽光発電システムを設置する「屋根貸しシステム」をご利用頂く事が価格の条件です。 ※太陽光発電システムは発電開始して10年経過後に無償で譲渡します。 ※太陽光発電付きでの購入も可能で、その場合は太陽光売電収入はお客様が得る事になります。【建築中物件フェア注意事項】 ■2026/4/30までのご契約のお客様 ■対象の建築中建売物件を購入された方 ■契約後、お客様の都合により解約に至った場合、権利は無効。 ■本権利の他人に譲渡や金銭や他の物品との交換は不可 ■その他のキャンペーンと併用不可、建築基準法43条2項第2号許可済/<特徴>月々7万円台で始める新居生活。建築中物件限定でリビングエアコンプレゼント!、エコポイント対象住宅・省エネルギー対策・フラット35Sに対応・太陽光発電システム・地盤調査済
建築確認:有/NO.第J25-20175号
販売戸数:1戸
法令等制限:景観法、太陽光発電システム6.16kW込みでの販売も可能
特記事項 セットバック済・駐車場3台分以上・オール電化・整形地・浴室1坪以上

省エネ性能

エネルギー消費性能 ★★★★★★(削減率50%達成)
断熱性能 5段階/7段階中
目安光熱費 約12万円/年

大阪府羽曳野市南恵我之荘2 周辺地図情報

地図
※地図上に表示される物件の位置は付近住所に所在することを表すものであり、実際の物件所在地とは異なる場合がございます。
   正確な物件所在地は、取扱い不動産会社にお問い合わせください。
物件を見たい、物件や住環境の詳しい情報やローン相談など、
お問い合わせ先
いえとち本舗 大阪本店(株)グリーンエナジー・ライフ

不動産会社情報

お問い合わせ先 商号:いえとち本舗 大阪本店(株)グリーンエナジー・ライフ
免許番号:国土交通大臣(1)第010603号
所在地:大阪府大東市氷野1-14-38
TEL:0120-856299
取引態様:売主
管理コード:30S-01_3
共有する
QRコード
物件を見たい、物件や住環境の詳しい情報やローン相談など、
お問い合わせ先
いえとち本舗 大阪本店(株)グリーンエナジー・ライフ

羽曳野市の暮らしデータ

人口などの統計情報

世帯数 44917世帯
人口総数 108213人
転入者数 3702人
転入率(人口1000人当たり)
34.21人
転出者数 3631人
転出率(人口1000人当たり)
33.55人
土地平均価格
住宅地
92111円/m2
商業地
195000円/m2

結婚・育児の助成金

子育て関連の独自の取り組み (1)英会話教室はびきのE-Kids!事業(はびきのイーキッズ)。(2)認可保育施設に通う第2子以降の保育料無償化事業。(3)認可保育施設における物価高騰に伴う給食材料費支援事業。
出産祝い なし
公立保育所数 3所(うち0歳児保育を実施している保育所:3所)
私立保育所数 6所(うち0歳児保育を実施している保育所:6所)
保育所入所待機児童数 0人
認定こども園数 6園 預かり保育実施園数 公立:1園 私立:1園
学校給食 【小学校】完全給食【中学校】家庭弁当等との選択制/デリバリー形式[運搬:ランチボックス、内容:完全給食]
公立中学校の学校選択制 一部実施(小規模特認校[校区を区切らない])
子ども・学生等医療費助成<通院>対象年齢 18歳3月末まで 子ども・学生等医療費助成<入院>対象年齢 18歳3月末まで

羽曳野市の治安・ごみ収集情報

公共料金・インフラ

ガス料金(22m3使用した場合の月額) 大阪瓦斯株式会社4544円
水道料金(口径20mmで20m3の月額) 羽曳野市2744円
下水道料金(20m3を使用した場合の月額) 羽曳野市2780円
下水道普及率 86.2%

安心・安全

建物火災出火件数 19件
人口10000人当たり
1.75件
刑法犯認知件数 537件
人口1000人当たり
4.94件
ハザード・防災マップ あり

医療

一般病院総数 6ヶ所
一般診療所総数 69ヶ所
小児科医師数 22人
小児人口10000人当たり
18.60人
産婦人科医師数 7人
15~49歳女性人口1万人当たり
3.53人
介護保険料基準額(月額) 6496円

ごみ

家庭ごみ収集(可燃ごみ) 無料
備考
引っ越し時や整理整頓に伴い多量に発生したごみ等は有料。
家庭ごみの分別方式 3分別4種〔可燃ごみ 不燃ごみ 資源ごみ(飲料用かん類、びん類)〕 拠点回収:ペットボトル 電池 水銀体温計 蛍光管
家庭ごみの戸別収集 実施
粗大ごみ収集 あり
備考
もえる大きなごみを2ヶ月に1回奇数月に収集。もえないごみを2ヶ月に1回偶数月に収集。
生ごみ処理機助成金制度 なし
上限金額
-
上限比率
-

羽曳野市の住まいの給付金

新築購入

利子補給制度 なし
補助/助成金制度 なし
暮らしデータ提供元:生活ガイド.com
※行政機関により公表していない地域及びデータがございます。東京23区以外の政令指定都市は、市全体のデータとして表示しています。
※提供データには細心の注意を払っておりますが、調査後に変更がある場合があります。 最新の情報につきましては各市区役所までお問い合わせいただくか、自治体HPなどをご確認ください。
OCN×ドコモ光新規お申込みで合計最大137,280円相当おトク!特典の内訳・適用条件など詳細はこちら

羽曳野市内の各駅の住みやすさ

住宅ローンの返済額一覧

物件価格 2998万円に対して、年率 で、頭金 の場合
↓ボーナス 35年間 30年間 25年間 20年間 15年間 10年間
0万円 64,844円/月 74,737円/月 88,596円/月 109,395円/月 144,075円/月 213,457円/月
5万円 55,758円/月 65,761円/月 79,729円/月 100,637円/月 135,424円/月 204,912円/月
10万円 46,673円/月 56,786円/月 70,863円/月 91,878円/月 126,772円/月 196,367円/月
15万円 37,587円/月 47,810円/月 61,996円/月 83,119円/月 118,121円/月 187,822円/月
20万円 ローン不可 38,834円/月 53,129円/月 74,361円/月 109,469円/月 179,277円/月
25万円 ローン不可 ローン不可 ローン不可 65,602円/月 100,818円/月 170,731円/月
30万円 ローン不可 ローン不可 ローン不可 56,843円/月 92,167円/月 162,186円/月
支払い利息合計 2,265,120円~ 1,937,680円~ 1,609,150円~ 1,287,280円~ 963,010円~ 641,060円~
※元利均等返済方式で試算しています。 「円」の単位以下の端数金額は「切り捨て」として計算しております。
※金利は、固定金利として計算しております。
※上記の住宅ローン返済額一覧は、あくまで試算であり、将来の金利動向により、実際のご返済額とは異なります。
※ボーナス支払総額が総支払額の50%を超えている場合、上記の表では「ローン不可」となります。
※住宅ローン返済額一覧の数値は、住宅ローンのお申し込みやご融資をお約束するものではございません。
物件を見たい、物件や住環境の詳しい情報やローン相談など、
お問い合わせ先
いえとち本舗 大阪本店(株)グリーンエナジー・ライフ

掲載情報の著作権は提供元企業等に帰属します。
Copyright:(C) 2025 Recruit Co., Ltd.
アプリで簡単 物件探し 大手不動産サイトの情報から一括検!プッシュ通知で物件を見逃さない
App Storeからダウンロード Google Playで手に入れよう QRコード