アプリで簡単 物件探し 通知 共有 アプリならではの機能を使ってみる
新築一戸建て

大阪府大阪市住吉区遠里小野4 我孫子前駅 新築一戸建て・分譲住宅

情報提供元
SUUMO
画像
価格 4480万円
交通
所在地 大阪府大阪市住吉区遠里小野4周辺地図
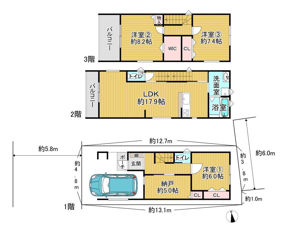
間取り 3LDK
建物面積 121.56m2(36.77坪)、うち1階車庫12.09m2 土地面積 63.49m2(19.20坪)(登記)
築年月 2025年12月 築年数 新築
おすすめポイント
住まいのプロがご紹介!『大阪市住吉区遠里小野四丁目』の知っておきたい魅力!●南海高野線「我孫子前」駅まで徒歩3分!●木造3階建「3LDK」の新築一戸建住宅です。●全居室6帖以上!●2階に配置されたLDKは、3面採光!●キッチンは対面式です。●洗面室はキッチンに隣接、家事動線が考慮されています。●各洋室・納戸に、WICを含む収納スペースが備わっています。●2階・3階の西側に、バルコニー有。●駐車1台可能です。●周辺環境・遠里小野小学校:徒歩6分(約450m)・大和川中学校:徒歩7分(約550m)・スーパーナショナルおりおの店:徒歩4分(約250m)
お問い合わせ先
積水ハウス不動産(株)大阪南第二営業所
物件を見たい、物件や住環境の詳しい情報やローン相談など、
お問い合わせ先
積水ハウス不動産(株)大阪南第二営業所

詳細情報

価格 4480万円
所在地 大阪府大阪市住吉区遠里小野4周辺地図
交通
間取り 3LDK 築年月(築年数) 2025年12月新築
建物面積 121.56m2(36.77坪)、うち1階車庫12.09m2 建物構造・規模 木造3階建
土地面積 63.49m2(19.20坪)(登記) 土地権利 所有権
私道面積 借地期間・地代
接道状況 西5.8m接面4.8m 東6m接面3.8m 駐車場
用途地域 1種住居 都市計画
建ぺい率/容積率 80%/200% 現況
地目 引渡可能時期 2026年1月
情報提供元 SUUMO [060Z78505087] 情報公開日
情報更新日 次回更新予定日 随時

設備など

1種低層地域 - 即入居可 - 売主・代理 -
駐車2台以上 - 平屋 - 本下水
都市ガス カウンターキッチン - 床暖房 -
ウォークインクローゼット バリアフリー -
設備 都市ガス・ウォークインクローゼット・システムキッチン・風呂・対面K・トイレ2ヶ所・上水道・本下水・フローリング
リフォーム履歴 -
リノベーション履歴 -
備考 <物件名>遠里小野4(我孫子前駅) 4480万円/<駐車場>車庫/<土地権利>所有権/<間取り>3LDK/<特徴>【12/1更新☆】新築◆LDK約17.9帖◆全居室フローリング◆WIC付き、スーパー 徒歩10分以内・システムキッチン・LDK15畳以上・前道6m以上・対面式キッチン
建築確認:有/NO.第トラスト25-0122号
販売戸数:1戸
法令等制限:準防火地域、日影制限有、■車庫1台分(車種制限有)
特記事項

省エネ性能

エネルギー消費性能 -
断熱性能 -
目安光熱費 -

大阪府大阪市住吉区遠里小野4 周辺地図情報

地図
※地図上に表示される物件の位置は付近住所に所在することを表すものであり、実際の物件所在地とは異なる場合がございます。
   正確な物件所在地は、取扱い不動産会社にお問い合わせください。
物件を見たい、物件や住環境の詳しい情報やローン相談など、
お問い合わせ先
積水ハウス不動産(株)大阪南第二営業所

不動産会社情報

お問い合わせ先 商号:積水ハウス不動産(株)大阪南第二営業所
免許番号:国土交通大臣(13)第002343号
所在地:大阪府大阪市浪速区湊町1-2-3 マルイト難波ビル16階
TEL:0800-1001929
取引態様:一般媒介
管理コード:10023811
共有する
QRコード
物件を見たい、物件や住環境の詳しい情報やローン相談など、
お問い合わせ先
積水ハウス不動産(株)大阪南第二営業所

大阪市住吉区の暮らしデータ

人口などの統計情報

世帯数 1464615世帯
人口総数 2757642人
転入者数 225000人
転入率(人口1000人当たり)
81.59人
転出者数 188180人
転出率(人口1000人当たり)
68.24人
土地平均価格
住宅地
270839円/m2
商業地
1966607円/m2

結婚・育児の助成金

子育て関連の独自の取り組み (1)子ども・子育てプラザ(在宅での子育て家庭や地域での子育て活動を支援し、また乳幼児期の親子や子育て支援者、就学期の子どもが集い交流する機会を提供する等、地域福祉活動の推進を図る)。(2)習い事・塾代助成事業(学習塾や家庭教師、文化・スポーツ教室等学校外教育にかかる費用を、1人当たり月額1万円まで助成。所得制限あり)。
出産祝い なし
公立保育所数 53所(うち0歳児保育を実施している保育所:52所)
私立保育所数 395所(うち0歳児保育を実施している保育所:385所)
保育所入所待機児童数 2人
認定こども園数 117園 預かり保育実施園数 公立:52園 私立:-
学校給食 【小学校】完全給食【中学校】完全給食
公立中学校の学校選択制 実施
子ども・学生等医療費助成<通院>対象年齢 18歳3月末まで 子ども・学生等医療費助成<入院>対象年齢 18歳3月末まで

大阪市住吉区の治安・ごみ収集情報

公共料金・インフラ

ガス料金(22m3使用した場合の月額) 大阪瓦斯株式会社4544円
水道料金(口径20mmで20m3の月額) 大阪市2112円
下水道料金(20m3を使用した場合の月額) 大阪市1276円
下水道普及率 100.0%

安心・安全

建物火災出火件数 553件
人口10000人当たり
2.01件
刑法犯認知件数 39408件
人口1000人当たり
14.32件
ハザード・防災マップ あり

医療

一般病院総数 170ヶ所
一般診療所総数 3734ヶ所
小児科医師数 659人
小児人口10000人当たり
22.80人
産婦人科医師数 380人
15~49歳女性人口1万人当たり
6.15人
介護保険料基準額(月額) 9249円

ごみ

家庭ごみ収集(可燃ごみ) 無料
備考
-
家庭ごみの分別方式 4分別11種〔普通ごみ(普通ごみ、危険ごみ[竹串、ガラス片、カミソリの刃]) 資源ごみ(空き缶・空きびん・金属製の生活用品・ペットボトル、スプレー缶・カセットボンベ) 容器包装プラスチック 古紙・衣類(新聞紙・折込チラシ、段ボール、紙パック、雑誌、衣類、その他の紙類)〕
家庭ごみの戸別収集 一部実施(【ふれあい収集】65歳以上の一人暮らしの高齢者または高齢者だけの世帯、障がいがある方が居住される家庭で、ごみ出しが困難な人が対象)
粗大ごみ収集 あり
備考
有料。戸別収集。事前申込制。申込時に収集日を決定。
生ごみ処理機助成金制度 なし
上限金額
-
上限比率
-

大阪市住吉区の住まいの給付金

新築購入

利子補給制度 あり
上限金額
50万円
備考
【大阪市新婚・子育て世帯向け分譲住宅購入融資利子補給制度】新婚世帯(夫婦ともに満40歳未満かつ婚姻届出後5年以内の世帯)または子育て世帯(小学校6年生以下の子どもがいる世帯)で、市内で住宅を民間金融機関などの融資を受けて初めて建築・取得したものが対象。住宅ローンに対して年0.5%以内(融資利率を上限とする)、最長5年間の利子補給を行う。
補助/助成金制度 なし
暮らしデータ提供元:生活ガイド.com
※行政機関により公表していない地域及びデータがございます。東京23区以外の政令指定都市は、市全体のデータとして表示しています。
※提供データには細心の注意を払っておりますが、調査後に変更がある場合があります。 最新の情報につきましては各市区役所までお問い合わせいただくか、自治体HPなどをご確認ください。
OCN×ドコモ光新規お申込みで合計最大137,280円相当おトク!特典の内訳・適用条件など詳細はこちら

大阪市住吉区内の各駅の住みやすさ

住宅ローンの返済額一覧

物件価格 4480万円に対して、年率 で、頭金 の場合
↓ボーナス 35年間 30年間 25年間 20年間 15年間 10年間
0万円 103,314円/月 119,077円/月 141,158円/月 174,297円/月 229,552円/月 340,096円/月
5万円 94,229円/月 110,101円/月 132,291円/月 165,539円/月 220,900円/月 331,551円/月
10万円 85,144円/月 101,126円/月 123,425円/月 156,780円/月 212,249円/月 323,006円/月
15万円 76,058円/月 92,150円/月 114,558円/月 148,021円/月 203,598円/月 314,461円/月
20万円 66,973円/月 83,174円/月 105,691円/月 139,262円/月 194,946円/月 305,915円/月
25万円 57,887円/月 74,198円/月 96,824円/月 130,504円/月 186,295円/月 297,370円/月
30万円 ローン不可 65,223円/月 87,958円/月 121,745円/月 177,643円/月 288,825円/月
支払い利息合計 3,610,220円~ 3,086,440円~ 2,563,100円~ 2,043,760円~ 1,528,690円~ 1,017,740円~
※元利均等返済方式で試算しています。 「円」の単位以下の端数金額は「切り捨て」として計算しております。
※金利は、固定金利として計算しております。
※上記の住宅ローン返済額一覧は、あくまで試算であり、将来の金利動向により、実際のご返済額とは異なります。
※ボーナス支払総額が総支払額の50%を超えている場合、上記の表では「ローン不可」となります。
※住宅ローン返済額一覧の数値は、住宅ローンのお申し込みやご融資をお約束するものではございません。
物件を見たい、物件や住環境の詳しい情報やローン相談など、
お問い合わせ先
積水ハウス不動産(株)大阪南第二営業所

掲載情報の著作権は提供元企業等に帰属します。
Copyright:(C) 2025 Recruit Co., Ltd.
アプリで簡単 物件探し 大手不動産サイトの情報から一括検!プッシュ通知で物件を見逃さない
App Storeからダウンロード Google Playで手に入れよう QRコード