アプリで簡単 物件探し 通知 共有 アプリならではの機能を使ってみる
新築一戸建て

神奈川県高座郡寒川町一之宮4 寒川駅 新築一戸建て・分譲住宅

情報提供元
SUUMO
神奈川県高座郡寒川町一之宮4 寒川駅 新築一戸建て・分譲住宅
価格 3280万円
交通
所在地 神奈川県高座郡寒川町一之宮4周辺地図
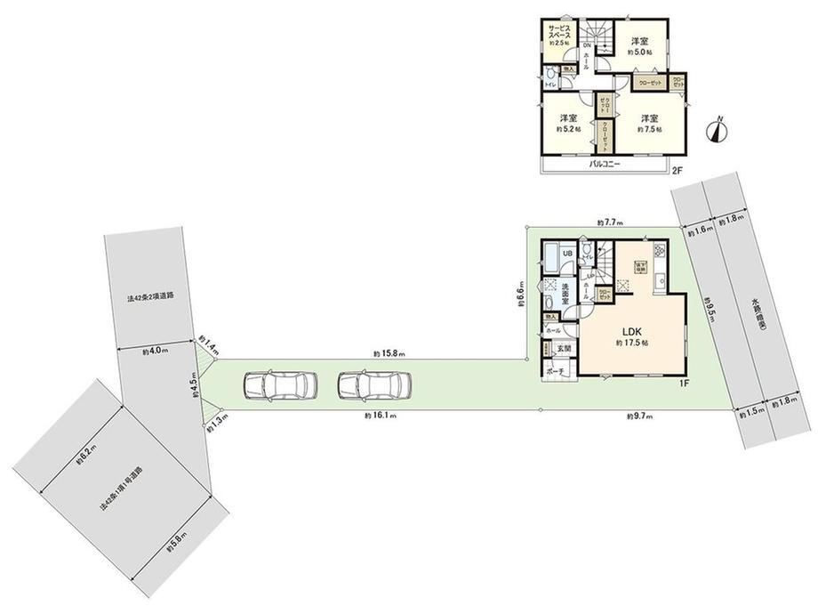
間取り 3SLDK
建物面積 90.72m2(27.44坪)(実測) 土地面積 125.64m2(38.00坪)(実測)、路地状部分:45m2
築年月 2025年11月 築年数 新築
おすすめポイント
-物件のおすすめポイント-▼特徴・制震装置「SAFE365」搭載・ご家族が集うLDKは3面採光、リビングスルー設計・作業に集中しやすい壁付キッチン、床下収納付・サービススペース約2.5帖は窓付で多目的に利用可能・2部屋に面する南向きバルコニー・駐車2台可能(車種による)▼設備・全居室にペアガラスを採用・浴室乾燥機・TVモニタ付インターホン▼周辺環境・セブンイレブン寒川一之宮3丁目店 徒歩7分(約500m)※容積率は前面道路幅員により160%に制限■ ご希望の住まい探しをお手伝いします ━━━━━・・・物件の詳細・ご相談はお気軽にお問い合わせください。
駐車場2台分
お問い合わせ先
三井のリハウス茅ヶ崎センター三井不動産リアルティ(株)
物件を見たい、物件や住環境の詳しい情報やローン相談など、
お問い合わせ先
三井のリハウス茅ヶ崎センター三井不動産リアルティ(株)

詳細情報

価格 3280万円
所在地 神奈川県高座郡寒川町一之宮4周辺地図
交通
間取り 3SLDK 築年月(築年数) 2025年11月新築
建物面積 90.72m2(27.44坪)(実測) 建物構造・規模 木造2階建
土地面積 125.64m2(38.00坪)(実測)、路地状部分:45m2 土地権利 所有権
私道面積 借地期間・地代
接道状況 西4m接面4.5m 駐車場
用途地域 準工業 都市計画
建ぺい率/容積率 60%/200% 現況
地目 引渡可能時期 相談
情報提供元 SUUMO [030Z78590973] 情報公開日
情報更新日 次回更新予定日 随時

設備など

1種低層地域 - 即入居可 - 売主・代理 -
駐車2台以上 平屋 - 本下水
都市ガス - カウンターキッチン - 床暖房 -
ウォークインクローゼット - バリアフリー -
設備 バルコニー・トイレ・収納スペース・洗面所・浴室乾燥機・シャンプードレッサ・温水洗浄便座・システムキッチン・モニタ付インターホン・風呂・LPガス・トイレ2ヶ所・床下収納・衣類乾燥機・上水道・本下水・駐車場2台分
リフォーム履歴 -
リノベーション履歴 -
備考 <物件名>一之宮4(寒川駅) 3280万円/<土地権利>所有権/<間取り>3LDK+S(納戸)/<特徴>■三井のリハウス■LDKは約17.5帖の広さ全居室2面以上の採光設計、省エネルギー対策・フラット35Sに対応・高気密高断熱住宅・駐車2台可・リバーサイド
建築確認:有/NO.第KBI-SGM25-10-3028号
販売戸数:1戸
法令等制限:※敷地内に電柱、及び支線が入る場合があります。※容積率は前面道路幅員により160%に制限
特記事項 駐車場2台分

省エネ性能

エネルギー消費性能 ★★★★(削減率30%達成)
断熱性能 5段階/7段階中
目安光熱費 -

神奈川県高座郡寒川町一之宮4 周辺地図情報

地図
※地図上に表示される物件の位置は付近住所に所在することを表すものであり、実際の物件所在地とは異なる場合がございます。
   正確な物件所在地は、取扱い不動産会社にお問い合わせください。
物件を見たい、物件や住環境の詳しい情報やローン相談など、
お問い合わせ先
三井のリハウス茅ヶ崎センター三井不動産リアルティ(株)

不動産会社情報

お問い合わせ先 商号:三井のリハウス茅ヶ崎センター三井不動産リアルティ(株)
免許番号:国土交通大臣(15)第000777号
所在地:神奈川県茅ヶ崎市幸町22-8 S-FORT茅ヶ崎1階
TEL:00786-01793957
取引態様:媒介
管理コード:F99AGB91
共有する
QRコード
物件を見たい、物件や住環境の詳しい情報やローン相談など、
お問い合わせ先
三井のリハウス茅ヶ崎センター三井不動産リアルティ(株)
OCN×ドコモ光新規お申込みで合計最大137,280円相当おトク!特典の内訳・適用条件など詳細はこちら

高座郡寒川町内の各駅の住みやすさ

他のエリアから探す

高座郡寒川町の詳細地域から新築一戸建て物件を探す

一之宮岡田倉見小谷小動田端中瀬宮山

近辺の市区から探す

横浜市泉区平塚市藤沢市茅ヶ崎市厚木市伊勢原市海老名市綾瀬市中郡大磯町

周辺の駅から探す

相模線
社家門沢橋倉見宮山寒川香川北茅ケ崎茅ケ崎

住宅ローンの返済額一覧

物件価格 3280万円に対して、年率 で、頭金 の場合
↓ボーナス 35年間 30年間 25年間 20年間 15年間 10年間
0万円 72,164円/月 83,174円/月 98,598円/月 121,745円/月 160,340円/月 237,554円/月
5万円 63,079円/月 74,198円/月 89,731円/月 112,986円/月 151,689円/月 229,009円/月
10万円 53,993円/月 65,223円/月 80,864円/月 104,228円/月 143,037円/月 220,464円/月
15万円 44,908円/月 56,247円/月 71,997円/月 95,469円/月 134,386円/月 211,919円/月
20万円 ローン不可 47,271円/月 63,131円/月 86,710円/月 125,734円/月 203,374円/月
25万円 ローン不可 ローン不可 54,264円/月 77,952円/月 117,083円/月 194,829円/月
30万円 ローン不可 ローン不可 ローン不可 69,193円/月 108,431円/月 186,284円/月
支払い利息合計 2,519,940円~ 2,155,000円~ 1,792,300円~ 1,431,280円~ 1,070,530円~ 712,820円~
※元利均等返済方式で試算しています。 「円」の単位以下の端数金額は「切り捨て」として計算しております。
※金利は、固定金利として計算しております。
※上記の住宅ローン返済額一覧は、あくまで試算であり、将来の金利動向により、実際のご返済額とは異なります。
※ボーナス支払総額が総支払額の50%を超えている場合、上記の表では「ローン不可」となります。
※住宅ローン返済額一覧の数値は、住宅ローンのお申し込みやご融資をお約束するものではございません。
物件を見たい、物件や住環境の詳しい情報やローン相談など、
お問い合わせ先
三井のリハウス茅ヶ崎センター三井不動産リアルティ(株)

掲載情報の著作権は提供元企業等に帰属します。
Copyright:(C) 2025 Recruit Co., Ltd.
アプリで簡単 物件探し 大手不動産サイトの情報から一括検!プッシュ通知で物件を見逃さない
App Storeからダウンロード Google Playで手に入れよう QRコード