アプリで簡単 物件探し 通知 共有 アプリならではの機能を使ってみる
新築一戸建て

神奈川県藤沢市弥勒寺3 藤沢駅 新築一戸建て・分譲住宅

情報提供元
SUUMO
神奈川県藤沢市弥勒寺3 藤沢駅 新築一戸建て・分譲住宅
価格 5780万円
交通
所在地 神奈川県藤沢市弥勒寺3周辺地図
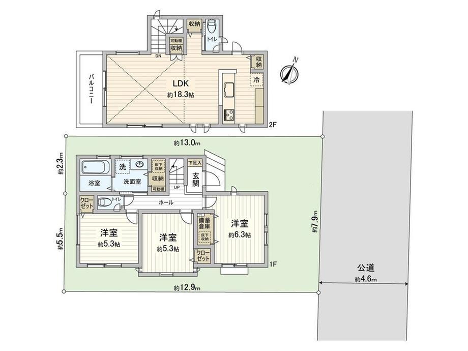
間取り 3LDK
建物面積 84.04m2(25.42坪)(実測)、倉庫付住宅(倉庫部分1.65m2 土地面積 103.08m2(31.18坪)(登記)
築年月 2025年8月 築年数 新築
おすすめポイント
-物件のおすすめポイント-▼立地・第一種低層住居専用地域▼特徴・プライバシーに配慮された2階リビング設計・全居室南東側からの採光を確保・LDKは3面採光設計、勾配天井で開放感有・LDを見渡せる対面式キッチン・各居室収納付、住空間をすっきりと整理可能・駐車スペース有(車種による)▼設備・食洗機・浴室換気乾燥機・TVモニタ付インターホン▼周辺環境・スーパー「オリンピック 藤沢店」徒歩5分(約370m)・小塚公園(鶴巻公園) 徒歩3分(約230m)■ ご希望の住まい探しをお手伝いします ━━━━━・・・物件の詳細・ご相談はお気軽にお問い合わせください。
日当り良好・閑静な住宅街
お問い合わせ先
三井のリハウス藤沢センター三井不動産リアルティ(株)
物件を見たい、物件や住環境の詳しい情報やローン相談など、
お問い合わせ先
三井のリハウス藤沢センター三井不動産リアルティ(株)

詳細情報

価格 5780万円
所在地 神奈川県藤沢市弥勒寺3周辺地図
交通
間取り 3LDK 築年月(築年数) 2025年8月新築
建物面積 84.04m2(25.42坪)(実測)、倉庫付住宅(倉庫部分1.65m2 建物構造・規模 木造2階建
土地面積 103.08m2(31.18坪)(登記) 土地権利 所有権
私道面積 借地期間・地代
接道状況 北東4.6m接面7.9m 駐車場
用途地域 1種低層 都市計画
建ぺい率/容積率 50%/80% 現況
地目 引渡可能時期 即時
情報提供元 SUUMO [030Z78131785] 情報公開日
情報更新日 次回更新予定日 随時

設備など

1種低層地域 即入居可 売主・代理 -
駐車2台以上 - 平屋 - 本下水
都市ガス カウンターキッチン - 床暖房 -
ウォークインクローゼット - バリアフリー -
設備 トイレ・収納スペース・洗面所・都市ガス・浴室乾燥機・シャンプードレッサ・温水洗浄便座・システムキッチン・モニタ付インターホン・風呂・対面K・トイレ2ヶ所・床下収納・浄水器・衣類乾燥機・食器洗浄乾燥機・上水道・本下水・フローリング
リフォーム履歴 -
リノベーション履歴 -
備考 <物件名>弥勒寺3(藤沢駅) 5780万円/<駐車場>カースペース/<土地権利>所有権/<間取り>3LDK/<特徴>■三井のリハウス■LDKは約18.3帖、陽当り良好室内随所に収納を設置、2沿線以上利用可・LDK18畳以上・スーパー 徒歩10分以内・システムキッチン・浴室乾燥機
建築確認:有/NO.第24KAK建確04045号
販売戸数:1戸
法令等制限:宅地造成工事規制区域、法22条区域※建物面積には備蓄倉庫1.65平米含む
特記事項 日当り良好・閑静な住宅街

省エネ性能

エネルギー消費性能 -
断熱性能 -
目安光熱費 -

神奈川県藤沢市弥勒寺3 周辺地図情報

地図
※地図上に表示される物件の位置は付近住所に所在することを表すものであり、実際の物件所在地とは異なる場合がございます。
   正確な物件所在地は、取扱い不動産会社にお問い合わせください。
物件を見たい、物件や住環境の詳しい情報やローン相談など、
お問い合わせ先
三井のリハウス藤沢センター三井不動産リアルティ(株)

不動産会社情報

お問い合わせ先 商号:三井のリハウス藤沢センター三井不動産リアルティ(株)
免許番号:国土交通大臣(15)第000777号
所在地:神奈川県藤沢市南藤沢3-12 クリオ藤沢駅前4階
TEL:00786-01793951
取引態様:媒介
管理コード:F90AGB14
共有する
QRコード
物件を見たい、物件や住環境の詳しい情報やローン相談など、
お問い合わせ先
三井のリハウス藤沢センター三井不動産リアルティ(株)

藤沢市の暮らしデータ

人口などの統計情報

世帯数 192960世帯
人口総数 445172人
転入者数 19958人
転入率(人口1000人当たり)
44.83人
転出者数 18277人
転出率(人口1000人当たり)
41.06人
土地平均価格
住宅地
230734円/m2
商業地
420444円/m2

結婚・育児の助成金

子育て関連の独自の取り組み 神奈川県が運用しているスマートフォンの子育て情報アプリを活用した「子育てアプリふじさわ」により子育て情報を配信している。
出産祝い あり
公立保育所数 14所(うち0歳児保育を実施している保育所:12所)
私立保育所数 75所(うち0歳児保育を実施している保育所:75所)
保育所入所待機児童数 11人
認定こども園数 2園 預かり保育実施園数 公立:- 私立:29園
学校給食 【小学校】完全給食【中学校】家庭弁当等との選択制/デリバリー形式[運搬:ランチボックス、内容:完全給食]
公立中学校の学校選択制 一部実施(特定地域選択制)
子ども・学生等医療費助成<通院>対象年齢 18歳3月末まで 子ども・学生等医療費助成<入院>対象年齢 18歳3月末まで

藤沢市の治安・ごみ収集情報

公共料金・インフラ

ガス料金(22m3使用した場合の月額) 東京瓦斯株式会社(東京地区等)3926円
水道料金(口径20mmで20m3の月額) 神奈川県営水道2988円
下水道料金(20m3を使用した場合の月額) 藤沢市2487円
下水道普及率 96.1%

安心・安全

建物火災出火件数 64件
人口10000人当たり
1.46件
刑法犯認知件数 2101件
人口1000人当たり
4.81件
ハザード・防災マップ あり

医療

一般病院総数 14ヶ所
一般診療所総数 437ヶ所
小児科医師数 76人
小児人口10000人当たり
13.47人
産婦人科医師数 39人
15~49歳女性人口1万人当たり
4.41人
介護保険料基準額(月額) 6300円

ごみ

家庭ごみ収集(可燃ごみ) 有料
備考
指定ごみ袋有料(可燃・不燃ごみのみ)。
家庭ごみの分別方式 3分別20種〔可燃ごみ 不燃ごみ(蛍光管、ガスボンベ・スプレー、電池類、テープ類、ライター、水銀体温計、加熱式たばこ) 資源(新聞・折込広告、本・雑紙、段ボール、飲料用紙パック、古布類、ビン、カン・鍋類、ペットボトル、廃食用油、プラスチック製容器包装、商品プラスチック、剪定枝)〕
家庭ごみの戸別収集 実施(市全域で実施。集合住宅については敷地内の専用集積所)
粗大ごみ収集 あり
備考
有料。大型ごみ500円/点。特別大型ごみ1,000円/点。
生ごみ処理機助成金制度 あり
上限金額
30000円
上限比率
75.0%

藤沢市の住まいの給付金

新築購入

利子補給制度 なし
補助/助成金制度 なし
暮らしデータ提供元:生活ガイド.com
※行政機関により公表していない地域及びデータがございます。東京23区以外の政令指定都市は、市全体のデータとして表示しています。
※提供データには細心の注意を払っておりますが、調査後に変更がある場合があります。 最新の情報につきましては各市区役所までお問い合わせいただくか、自治体HPなどをご確認ください。
OCN×ドコモ光新規お申込みで合計最大137,280円相当おトク!特典の内訳・適用条件など詳細はこちら

藤沢市内の各駅の住みやすさ

住宅ローンの返済額一覧

物件価格 5780万円に対して、年率 で、頭金 の場合
↓ボーナス 35年間 30年間 25年間 20年間 15年間 10年間
0万円 137,061円/月 157,972円/月 187,265円/月 231,229円/月 304,531円/月 451,183円/月
5万円 127,975円/月 148,996円/月 178,398円/月 222,470円/月 295,880円/月 442,638円/月
10万円 118,890円/月 140,020円/月 169,532円/月 213,711円/月 287,228円/月 434,093円/月
15万円 109,804円/月 131,045円/月 160,665円/月 204,953円/月 278,577円/月 425,547円/月
20万円 100,719円/月 122,069円/月 151,798円/月 196,194円/月 269,926円/月 417,002円/月
25万円 91,633円/月 113,093円/月 142,931円/月 187,435円/月 261,274円/月 408,457円/月
30万円 82,548円/月 104,117円/月 134,065円/月 178,677円/月 252,623円/月 399,912円/月
支払い利息合計 4,787,390円~ 4,088,280円~ 3,395,200円~ 2,707,440円~ 2,025,090円~ 1,348,180円~
※元利均等返済方式で試算しています。 「円」の単位以下の端数金額は「切り捨て」として計算しております。
※金利は、固定金利として計算しております。
※上記の住宅ローン返済額一覧は、あくまで試算であり、将来の金利動向により、実際のご返済額とは異なります。
※ボーナス支払総額が総支払額の50%を超えている場合、上記の表では「ローン不可」となります。
※住宅ローン返済額一覧の数値は、住宅ローンのお申し込みやご融資をお約束するものではございません。
物件を見たい、物件や住環境の詳しい情報やローン相談など、
お問い合わせ先
三井のリハウス藤沢センター三井不動産リアルティ(株)

掲載情報の著作権は提供元企業等に帰属します。
Copyright:(C) 2025 Recruit Co., Ltd.
アプリで簡単 物件探し 大手不動産サイトの情報から一括検!プッシュ通知で物件を見逃さない
App Storeからダウンロード Google Playで手に入れよう QRコード