アプリで簡単 物件探し 通知 共有 アプリならではの機能を使ってみる
新築一戸建て

神奈川県横浜市瀬谷区相沢3 瀬谷駅 新築一戸建て・分譲住宅

情報提供元
SUUMO
神奈川県横浜市瀬谷区相沢3 瀬谷駅 新築一戸建て・分譲住宅
価格 4580万円
交通
所在地 神奈川県横浜市瀬谷区相沢3周辺地図
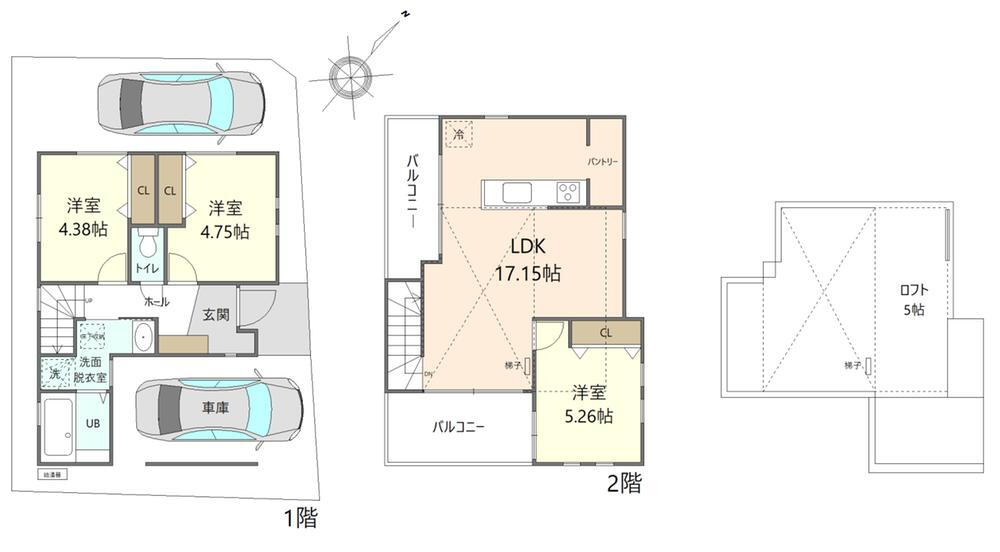
間取り 3SLDK
建物面積 88.05m2(26.63坪)(登記)、うち1階車庫12.42m2 土地面積 79.22m2(23.96坪)(登記)
築年月 2026年3月 築年数 新築
おすすめポイント
~~おすすめポイント~~■駐車場2台付き(車種によります)■前面道路との高低差ありません♪■3LDK+ロフト付き!LDK 約17帖!■収納豊富なパントリー付きの対面式システムキッチン♪■物件より10分以内に小学校、スーパー、コンビニ、公園があり子育て環境に良い物件です♪■周辺は閑静な住宅街が広がり住環境も良好♪■北西、北東角地につき解放感ございます♪
日当り良好・閑静な住宅街・駐車場2台分・セットバック済・角地・整形地・浴室1坪以上
物件を見たい、物件や住環境の詳しい情報やローン相談など、
お問い合わせ先
(株)ARS

詳細情報

価格 4580万円
所在地 神奈川県横浜市瀬谷区相沢3周辺地図
交通
間取り 3SLDK 築年月(築年数) 2026年3月新築
建物面積 88.05m2(26.63坪)(登記)、うち1階車庫12.42m2 建物構造・規模 木造2階建
土地面積 79.22m2(23.96坪)(登記) 土地権利 所有権
私道面積 2.51m2 借地期間・地代
接道状況 北西4.8m 北東4m 二方道路 駐車場
用途地域 1種低層 都市計画
建ぺい率/容積率 50%/100% 現況
地目 引渡可能時期 相談
情報提供元 SUUMO [030Z78736264] 情報公開日
情報更新日 次回更新予定日 随時

設備など

1種低層地域 即入居可 - 売主・代理 -
駐車2台以上 平屋 - 本下水
都市ガス カウンターキッチン - 床暖房 -
ウォークインクローゼット - バリアフリー -
設備 ロフト・バルコニー・トイレ・収納スペース・洗面所・都市ガス・浴室乾燥機・シャンプードレッサ・温水洗浄便座・システムキッチン・モニタ付インターホン・風呂・対面K・床下収納・浄水器・2面バルコニー・衣類乾燥機・食器洗浄乾燥機・複層ガラス・上水道・本下水・駐車場2台分・フローリング・シューズインクローク
リフォーム履歴 -
リノベーション履歴 -
備考 <物件名>相沢3(瀬谷駅) 4580万円/<駐車場>カースペース/<土地権利>所有権/<間取り>3LDK+S(納戸)/<特徴>☆ARS専任物件!3LDK+ロフト付き新築戸建!☆瀬谷駅徒歩9分の角地!、駐車2台可・スーパー 徒歩10分以内・システムキッチン・浴室乾燥機・陽当り良好
建築確認:有/NO.第25KAK建確01967号
販売戸数:1戸
法令等制限:景観法、宅地造成工事規制区域、高度地区、準防火地域、高さ最高限度有、日影制限有、隅切り有
特記事項 日当り良好・閑静な住宅街・駐車場2台分・セットバック済・角地・整形地・浴室1坪以上

省エネ性能

エネルギー消費性能 -
断熱性能 -
目安光熱費 -

神奈川県横浜市瀬谷区相沢3 周辺地図情報

地図
※地図上に表示される物件の位置は付近住所に所在することを表すものであり、実際の物件所在地とは異なる場合がございます。
   正確な物件所在地は、取扱い不動産会社にお問い合わせください。
物件を見たい、物件や住環境の詳しい情報やローン相談など、
お問い合わせ先
(株)ARS

不動産会社情報

お問い合わせ先 商号:(株)ARS
免許番号:東京都知事(1)第109487号
所在地:東京都江東区東砂8-7-14-102
TEL:03-6824-5333
取引態様:専任媒介
共有する
QRコード
物件を見たい、物件や住環境の詳しい情報やローン相談など、
お問い合わせ先
(株)ARS

横浜市瀬谷区の暮らしデータ

人口などの統計情報

世帯数 1744208世帯
人口総数 3752969人
転入者数 217258人
転入率(人口1000人当たり)
57.89人
転出者数 201570人
転出率(人口1000人当たり)
53.71人
土地平均価格
住宅地
254434円/m2
商業地
1043863円/m2

結婚・育児の助成金

子育て関連の独自の取り組み 横浜市私立幼稚園等預かり保育事業(横浜市が定めた基準(実施日、時間、職員配置等)を満たし、横浜市の認定を受けた幼稚園・認定こども園が実施する事業。市内在住の園児の保護者が就労や病気等で、園の正規教育時間の前後に家庭で保育ができない場合に、利用可能。3歳児~5歳児は無料、満3歳児は(a)私学助成を受ける幼稚園の場合、月額9,000円、(b)新制度に移行した園の場合、0円~9,000円)。
出産祝い あり
公立保育所数 56所(うち0歳児保育を実施している保育所:41所)
私立保育所数 813所(うち0歳児保育を実施している保育所:716所)
保育所入所待機児童数 5人
認定こども園数 70園 預かり保育実施園数 公立:- 私立:213園
学校給食 【小学校】完全給食【中学校】家庭弁当等・業者弁当との選択制/デリバリー形式[運搬:ランチボックス、内容:完全給食]
公立中学校の学校選択制 一部実施(特定地域選択制[特別調整通学区域])
子ども・学生等医療費助成<通院>対象年齢 中学校卒業まで 子ども・学生等医療費助成<入院>対象年齢 中学校卒業まで

横浜市瀬谷区の治安・ごみ収集情報

公共料金・インフラ

ガス料金(22m3使用した場合の月額) 東京瓦斯株式会社(東京地区等)3926円
水道料金(口径20mmで20m3の月額) 横浜市3017円
下水道料金(20m3を使用した場合の月額) 横浜市2035円
下水道普及率 100.0%

安心・安全

建物火災出火件数 438件
人口10000人当たり
1.16件
刑法犯認知件数 16059件
人口1000人当たり
4.25件
ハザード・防災マップ あり

医療

一般病院総数 113ヶ所
一般診療所総数 3201ヶ所
小児科医師数 682人
小児人口10000人当たり
15.98人
産婦人科医師数 346人
15~49歳女性人口1万人当たり
4.58人
介護保険料基準額(月額) 6620円

ごみ

家庭ごみ収集(可燃ごみ) 無料
備考
-
家庭ごみの分別方式 7分別9種〔燃やすごみ 燃えないごみ スプレー缶 乾電池 プラスチック製容器包装 缶・びん・ペットボトル(缶、びん、ペットボトル) 小さな金属類〕
家庭ごみの戸別収集 一部実施(【ふれあい収集】家庭ごみ・粗大ごみを集積場所まで持ち出すことができない高齢者や障害のある方などを対象にごみ出しの支援を実施。【狭あい道路収集】道路が狭く収集車が通行することができないため、集積場所が自宅近くに設けられない地域において、軽四輪車でごみを収集)
粗大ごみ収集 あり
備考
有料。事前申込制。自宅近くまでもしくは市内4ヶ所に設置されている自己搬入ヤードへ持ち込み。申し込みは電話、またはインターネット。
生ごみ処理機助成金制度 なし
上限金額
-
上限比率
-

横浜市瀬谷区の住まいの給付金

新築購入

利子補給制度 なし
補助/助成金制度 なし
暮らしデータ提供元:生活ガイド.com
※行政機関により公表していない地域及びデータがございます。東京23区以外の政令指定都市は、市全体のデータとして表示しています。
※提供データには細心の注意を払っておりますが、調査後に変更がある場合があります。 最新の情報につきましては各市区役所までお問い合わせいただくか、自治体HPなどをご確認ください。
OCN×ドコモ光新規お申込みで合計最大137,280円相当おトク!特典の内訳・適用条件など詳細はこちら

横浜市瀬谷区内の各駅の住みやすさ

住宅ローンの返済額一覧

物件価格 4580万円に対して、年率 で、頭金 の場合
↓ボーナス 35年間 30年間 25年間 20年間 15年間 10年間
0万円 105,910円/月 122,069円/月 144,705円/月 178,677円/月 235,320円/月 348,641円/月
5万円 96,825円/月 113,093円/月 135,838円/月 169,918円/月 226,668円/月 340,096円/月
10万円 87,739円/月 104,117円/月 126,971円/月 161,159円/月 218,017円/月 331,551円/月
15万円 78,654円/月 95,142円/月 118,105円/月 152,400円/月 209,365円/月 323,006円/月
20万円 69,568円/月 86,166円/月 109,238円/月 143,642円/月 200,714円/月 314,461円/月
25万円 60,483円/月 77,190円/月 100,371円/月 134,883円/月 192,062円/月 305,915円/月
30万円 ローン不可 68,215円/月 91,504円/月 126,124円/月 183,411円/月 297,370円/月
支払い利息合計 3,700,540円~ 3,163,560円~ 2,626,900円~ 2,094,720円~ 1,566,930円~ 1,043,140円~
※元利均等返済方式で試算しています。 「円」の単位以下の端数金額は「切り捨て」として計算しております。
※金利は、固定金利として計算しております。
※上記の住宅ローン返済額一覧は、あくまで試算であり、将来の金利動向により、実際のご返済額とは異なります。
※ボーナス支払総額が総支払額の50%を超えている場合、上記の表では「ローン不可」となります。
※住宅ローン返済額一覧の数値は、住宅ローンのお申し込みやご融資をお約束するものではございません。
物件を見たい、物件や住環境の詳しい情報やローン相談など、
お問い合わせ先
(株)ARS

掲載情報の著作権は提供元企業等に帰属します。
Copyright:(C) 2025 Recruit Co., Ltd.
アプリで簡単 物件探し 大手不動産サイトの情報から一括検!プッシュ通知で物件を見逃さない
App Storeからダウンロード Google Playで手に入れよう QRコード